64 500 000 Р 835 600 $ или 704 500

Информация об помещении

1
Этаж

Состояние и оснащение

Количество этажей
18
Развернуть
Агент
+7 (938) 656-74-88
Начать чат с агентом

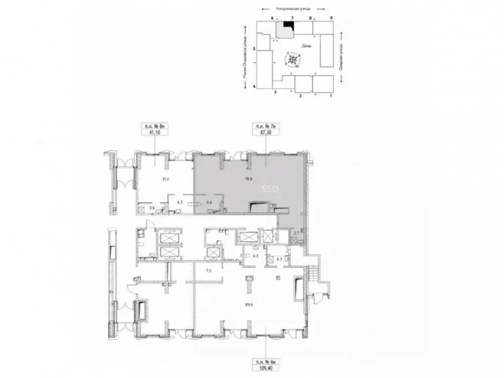
Торговая площадь в Москва Березовая аллея, 19к3 (240 м)

675395-f . Предлагаем к приобретению помещение свободного назначения формата Street Retail, площадью 240 кв. м., расположенное на первом этаже жилого дома в ЖК Легендарный квартал . Корпус 3. Без комиссии для покупателя.Преимущества объекта: -первая линия;-ЖК состоит из 6 корпусов переменной этажности (от 17 до 18 этажей), рассчитанных на 3 144 квартир;-пешая доступность от станции метро Ботанический сад (15 минут пешком);-3 км до Алтуфьевского шоссе и 4 км до Ярославского и Дмитровского шоссе;-отлично просматривается, находится в легком доступе для потенциальных клиентов;-развитая инфраструктура в окружении;-гибкая планировка, позволяющая адаптировать пространство под различные нужды;-витринное остекление;-место для вывески;-парковка на улице;-рядом остановка общественного транспорта.Технические параметры объекта:-3 отдельные входные группы;-электрическая мощность: 50 кВт;-высота потолков: 3.5 м.Свяжитесь с нами для получения дополнительной информации

Читать полностью
    Позвонить Написать
    64 500 000 Р835 600 $ или 704 500
    Агент
    +7 (938) 656-74-88
    Начать чат с агентом
    Похожие предложения
    Торговая площадь в Москва Озерная ул., 42 (87 м) - Фото 1
    Торговая площадь в Москва Озерная ул., 42 (87 м) - Фото 2
    Лот 152475.Продажа торгового помещения по адресу: Москва, Озёрная 42. Жилой комплекс бизнес-класса на 1240 квартир на Западе Москвы. 1,6 км до МКАД, на машине путь до центра Москвы 33 минуты. 2 минуты пешком до метро Озерная Выдача ключей - 2 кв. 2026Помещение...
    • 1/30 эт.
    65 475 000 Р
    Агент
    +7 (985) Показать номер
    Посмотреть контакты
    Продажа торгового помещения, м. Деловой центр, Пресненская наб - Фото 1
    Продажа торгового помещения, м. Деловой центр, Пресненская наб - Фото 2
    Продажа торгового помещения, м. Деловой центр, Пресненская наб - Фото 3
    Продажа торгового помещения, м. Деловой центр, Пресненская наб - Фото 4
    Продажа торгового помещения, м. Деловой центр, Пресненская наб - Фото 5
    Продажа торгового помещения, м. Деловой центр, Пресненская наб - Фото 6
    Продажа торгового помещения, м. Деловой центр, Пресненская наб - Фото 7
    Продажа торгового помещения, м. Деловой центр, Пресненская наб - Фото 8
    общая площадь 51.1м², реализуемая площадь 51.1м²

    Торговое помещение площадью 51,1 масположено на -1 этаже, в торговой галерее Башни Федерация. Помещение с отдельным входом, высота потолков 3 м, с отделкой. Зона расположения - блок на плане № 24.3 а. Выделенная мощность 20 кВт. Есть мокрая точка. Помещение...
    • 51.1 м²
    • -1/97 эт.
    66 000 000 Р
    Агент
    +7 (903) Показать номер
    Посмотреть контакты
    Продажа торгового помещения, м. Беговая, Хорошёвский 1-й проезд - Фото 1
    Продажа торгового помещения, м. Беговая, Хорошёвский 1-й проезд - Фото 2
    Продажа торгового помещения, м. Беговая, Хорошёвский 1-й проезд - Фото 3
    Продажа торгового помещения, м. Беговая, Хорошёвский 1-й проезд - Фото 4
    общая площадь 68.4м², реализуемая площадь 68.4м²

    Готовый арендный бизнес в 2-х минутах от метро Беговая. 1-я линия домов. Помещение площадью 68,4 кв.м расположено на 1-ом этаже жилого дома. Большие окна по фасаду, два отдельных входа с фасада, зальная планировка, санузел, центральные городские коммуникации,...
    • 68.4 м²
    • 1/4 эт.
    65 000 000 Р
    PRO
    +7 (903) Показать номер
    Посмотреть контакты
    Продажа торгового помещения, м. Водный стадион, Головинское ш. - Фото 1
    Продажа торгового помещения, м. Водный стадион, Головинское ш. - Фото 2
    Продажа торгового помещения, м. Водный стадион, Головинское ш. - Фото 3
    Продажа торгового помещения, м. Водный стадион, Головинское ш. - Фото 4
    Продажа торгового помещения, м. Водный стадион, Головинское ш. - Фото 5
    общая площадь 90м², реализуемая площадь 90м²

    Продажа торгового помещения. 270 м от станции метро Водный стадион. Первая линия, отдельный вход с фасада, полностью на 1-м этаже. Площадь помещения 90 кв.м, витрина, высокие потолки - 3.2 м, все городские коммуникации, зальная планировка. Электрическая...
    • 90 м²
    • 1/5 эт.
    64 000 000 Р
    Агент
    +7 (903) Показать номер
    Посмотреть контакты
    ТАО, деревня Кресты, 6000 м2, Комплекс зданий и участок 17 Га (ном. ... - Фото 1
    ТАО, деревня Кресты, 6000 м2, Комплекс зданий и участок 17 Га (ном. ... - Фото 2
    ТАО, деревня Кресты, 6000 м2, Комплекс зданий и участок 17 Га (ном. ... - Фото 3
    ТАО, деревня Кресты, 6000 м2, Комплекс зданий и участок 17 Га (ном. ... - Фото 4
    ТАО, деревня Кресты, 6000 м2, Комплекс зданий и участок 17 Га (ном. ... - Фото 5
    ТАО, деревня Кресты, 6000 м2, Комплекс зданий и участок 17 Га (ном. ... - Фото 6
    ТАО, деревня Кресты, 6000 м2, Комплекс зданий и участок 17 Га (ном. ... - Фото 7
    ТАО, деревня Кресты, 6000 м2, Комплекс зданий и участок 17 Га (ном. ... - Фото 8
    ТАО, деревня Кресты, 6000 м2, Комплекс зданий и участок 17 Га (ном. ... - Фото 9
    ТАО, деревня Кресты, 6000 м2, Комплекс зданий и участок 17 Га (ном. ... - Фото 10
    ТАО, деревня Кресты, 6000 м2, Комплекс зданий и участок 17 Га (ном. ... - Фото 11
    ТАО, деревня Кресты, 6000 м2, Комплекс зданий и участок 17 Га (ном. ... - Фото 12
    ТАО, деревня Кресты, 6000 м2, Комплекс зданий и участок 17 Га (ном. ... - Фото 13
    ТАО, деревня Кресты, 6000 м2, Комплекс зданий и участок 17 Га (ном. ... - Фото 14
    ТАО, деревня Кресты, 6000 м2, Комплекс зданий и участок 17 Га (ном. ... - Фото 15
    ТАО, деревня Кресты, 6000 м2, Комплекс зданий и участок 17 Га (ном. ... - Фото 16
    общая площадь 6000м², реализуемая площадь 6000м²

    Продается комплекс зданий , общей площадью 6000 м2 , расположенный на земельном участке 17 Га в аренде до 2061 года(90 тыс руб в год), выкуп участка составляет 10..ВРИ участка - Для размещения объектов, характерных для населённых пунктов.Комплекс включает...
    • 6 000 м²
    65 000 000 Р
    Агент
    +7 (968) Показать номер
    Агентство
    Телус
    Посмотреть контакты

    Не нашли подходящего объявления?

    Оставьте заявку, и наши риэлторы подберут торговое помещение в районе Москвы

    (0)