Россия, Москва, ш. Остафьевское, 14к1
25 520 000 Р 330 600 $ или 278 300

Информация об помещении

1
Этаж

Состояние и оснащение

Количество этажей
14
Развернуть
Агент
+7 (989) 561-49-37
Начать чат с агентом

Торговая площадь в Москва ш. Остафьевское, 14к1 (88 м)

Арт.Помещение свободного назначения в ЖК Остафьево Москва, пос. Рязановское, с.Остафьево, Остафьевское шоссе, д.14 корп.1О помещении: Общая площадь 87,7 м2Центральные коммуникацииВитринное остекление1 этаж, 1 входная группаО локации:ЖК Остафьево большой современный жилой кварталНеподалеку от усадьбы Остафьево и парка Барышево.Развитая собственная инфраструктураУгловое помещение на пересечении основных пешеходных троп ЖК, рядом супермаркетПлотный жилой массив13 мин транспортом до станции метро Бунинская аллея 9 мин транспортом до станции метро Остафьево Стоимость:Звоните

Читать полностью
    Позвонить Написать
    25 520 000 Р330 600 $ или 278 300
    Агент
    +7 (989) 561-49-37
    Начать чат с агентом
    Похожие предложения
    Торговая площадь в Москва ш. Остафьевское, 14к4 (88 м) - Фото 1
    Торговая площадь в Москва ш. Остафьевское, 14к4 (88 м) - Фото 2
    Продажа торгового помещения 88,03 м2 на Остафьевском шоссе, д.14 корпус 4 (15 минут транспортом от метро Бунинская аллея). 1 линия домов.Помещение 88,03 масполагается на 1 этаже, открытая планировка, отдельный вход с фасада, высота потолка 4,5 м, витринные...
    • 1/11 эт.
    25 500 000 Р
    Агент
    +7 (916) Показать номер
    Посмотреть контакты
    Торговая площадь в Москва Шипиловская ул., 50К3С1 (83 м) - Фото 1
    Торговая площадь в Москва Шипиловская ул., 50К3С1 (83 м) - Фото 2
    Продажа торгового помещения 80 м2 с арендатором магазин Семейное кафе на ул. Шипиловская, д. 50к3с1 (2 минуты пешком от метро Шипиловская). Помещение 80, располагается на 1 этаже, открытая планировка, отдельный вход с фасада, высота потолка 3,5 м, витринные...
    • 1/11 эт.
    25 000 000 Р
    Агент
    +7 (916) Показать номер
    Посмотреть контакты
    Торговая площадь в Москва Уральская ул., 12/21 (90 м) - Фото 1
    Торговая площадь в Москва Уральская ул., 12/21 (90 м) - Фото 2
    Продажа торгового помещения 90 м2 c арендатором аптека Апрель на ул. Уральская, д. 12/21 (10 минут пешком от м. Щелковская). 1-я линия 90 м2 на 1 этаже, открытая планировка, отдельный вход с фасада, высота потолка 3,5 м, витринные окна по фасаду. Электрическая...
    • 1/9 эт.
    25 600 000 Р
    Агент
    +7 (916) Показать номер
    Посмотреть контакты
    Торговая площадь в Москва Международная ул., 38 (50 м) - Фото 1
    Торговая площадь в Москва Международная ул., 38 (50 м) - Фото 2
    Продажа торгового помещения 50,2 м2 с арендатором аптека Здравсити на ул. Международная, д.38 (9 минут пешком от метро Римская). 1 линия домов.Помещение 50,2 м2, располагается на 1 этаже отдельно стоящего здания, открытая планировка, вход рядом с супермаркетом...
    • 1/1 эт.
    26 600 000 Р
    Агент
    +7 (916) Показать номер
    Посмотреть контакты
    Продажа торгового помещения, м. Бауманская, ул. Бауманская - Фото 1
    Продажа торгового помещения, м. Бауманская, ул. Бауманская - Фото 2
    Продажа торгового помещения, м. Бауманская, ул. Бауманская - Фото 3
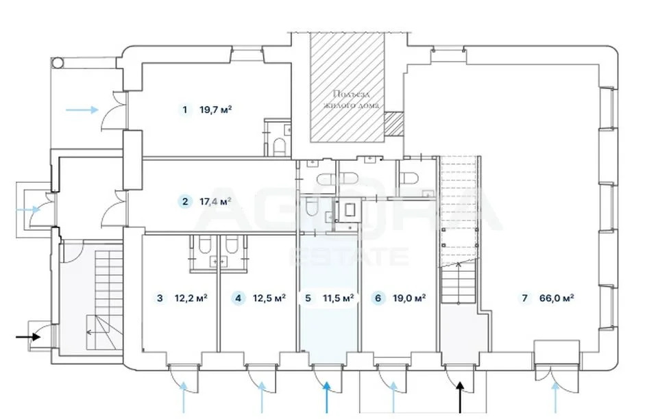
    общая площадь 11.5м², реализуемая площадь 11.5м²

    Продажа торгового помещения На выходе из метро, станция Бауманская Площадь - 11,5 м2. Полностью на 1-м этаже (на плане - блок 5). Отдельный вход с улицы. Планировка - открытая (сетка колонн). Состояние - под чистовую отделку. Все городские коммуникации....
    • 11.5 м²
    • 1/3 эт.
    25 080 000 Р
    Агент
    +7 (903) Показать номер
    Посмотреть контакты

    Не нашли подходящего объявления?

    Оставьте заявку, и наши риэлторы подберут торговое помещение в районе Москвы

    (0)