177 876 490 Р 2 304 500 $ или 1 939 500

Информация об помещении

4
Этаж

Состояние и оснащение

Количество этажей
12
Развернуть
Агент
+7 (931) 554-86-04
Начать чат с агентом

Торговая площадь в Москва проезд Жуков, вл8 (330 м)

Комфортабельное помещение площадью 330.29 м на 4 этаже инновационного делового центра TALLER. Бизнес-пространство TALLER расположено в центре Павелецкого делового района. Оно станет первым за 14 лет офисным проектом А класса в данной локации, что делает его уникальным как в целях покупки для собственного использования, так и для инвестиций. Исключительность проекта подчеркивает и гармоничное сочетание современного экстерьера с богатым архитектурным наследием прошлого: один из фасадов делового центра украшает знаковый элемент района - воссозданная по исходным чертежам водонапорная башня, некогда венчавшая ведущее промышленное предприятие XX столетия. Хорошая транспортная доступность TALLER обеспечена близостью к Садовому кольцу (1,2 км), метро Павелецкая и Павелецкому ж/д вокзалу, откуда регулярно курсируют экспрессы до международного аэропорта Домодедово. Характеристики помещений и делового центра Taller:1) Авторская архитектура от бюро СПИЧ, объединяющая в себе историческую башню, прозрачные фасады и настоящий сад по периметру экстерьера2) Ввод в эксплуатацию 2026 г.3) Реализация по ДДУ с эскроу-счетами4) Гибкие условия покупки5) Современная инженерия - приточно-вытяжная вентиляция, центральная система кондиционирования ( чиллер-фанкойл ), центральная система отопления6) Высокие потолки - 3,75 м7) Панорамное остекление от премиального бренда8) 12 высокоскоростных лифтов9) Зеленыеекреационные зоны во дворе делового центра10) Возможность аренды серверного оборудования в собственном data-центре11) Широкий набор сервисов для резидентов от УК с доступом через мобильное приложение: от заказа пропусков и бронирования переговорных до мониторинга потребления ресурсов и рекомендаций для снижения затрат на администрирование и улучшения комфорта.

Читать полностью
    Позвонить Написать
    177 876 490 Р2 304 500 $ или 1 939 500
    Агент
    +7 (931) 554-86-04
    Начать чат с агентом
    Похожие предложения
    Торговая площадь в Москва проезд Жуков, вл8 (353 м) - Фото 1
    Торговая площадь в Москва проезд Жуков, вл8 (353 м) - Фото 2
    Комфортабельное помещение площадью 353.49 м на 3 этаже инновационного делового центра TALLER. Бизнес-пространство TALLER расположено в центре Павелецкого делового района. Оно станет первым за 14 лет офисным проектом А класса в данной локации, что делает...
    • 3/12 эт.
    189 563 113 Р
    Агент
    +7 (931) Показать номер
    Посмотреть контакты
    Торговая площадь в Москва проезд Жуков, вл8 (331 м) - Фото 1
    Торговая площадь в Москва проезд Жуков, вл8 (331 м) - Фото 2
    Комфортабельное помещение площадью 330.74 м на 7 этаже инновационного делового центра TALLER. Бизнес-пространство TALLER расположено в центре Павелецкого делового района. Оно станет первым за 14 лет офисным проектом А класса в данной локации, что делает...
    • 7/12 эт.
    185 116 236 Р
    Агент
    +7 (931) Показать номер
    Посмотреть контакты
    м. Павелецкая, Летниковская ул., 716 м2, Здание (ном. объекта: 7818) - Фото 1
    м. Павелецкая, Летниковская ул., 716 м2, Здание (ном. объекта: 7818) - Фото 2
    м. Павелецкая, Летниковская ул., 716 м2, Здание (ном. объекта: 7818) - Фото 3
    м. Павелецкая, Летниковская ул., 716 м2, Здание (ном. объекта: 7818) - Фото 4
    м. Павелецкая, Летниковская ул., 716 м2, Здание (ном. объекта: 7818) - Фото 5
    м. Павелецкая, Летниковская ул., 716 м2, Здание (ном. объекта: 7818) - Фото 6
    м. Павелецкая, Летниковская ул., 716 м2, Здание (ном. объекта: 7818) - Фото 7
    м. Павелецкая, Летниковская ул., 716 м2, Здание (ном. объекта: 7818) - Фото 8
    м. Павелецкая, Летниковская ул., 716 м2, Здание (ном. объекта: 7818) - Фото 9
    м. Павелецкая, Летниковская ул., 716 м2, Здание (ном. объекта: 7818) - Фото 10
    м. Павелецкая, Летниковская ул., 716 м2, Здание (ном. объекта: 7818) - Фото 11
    м. Павелецкая, Летниковская ул., 716 м2, Здание (ном. объекта: 7818) - Фото 12
    м. Павелецкая, Летниковская ул., 716 м2, Здание (ном. объекта: 7818) - Фото 13
    м. Павелецкая, Летниковская ул., 716 м2, Здание (ном. объекта: 7818) - Фото 14
    м. Павелецкая, Летниковская ул., 716 м2, Здание (ном. объекта: 7818) - Фото 15
    м. Павелецкая, Летниковская ул., 716 м2, Здание (ном. объекта: 7818) - Фото 16
    м. Павелецкая, Летниковская ул., 716 м2, Здание (ном. объекта: 7818) - Фото 17
    м. Павелецкая, Летниковская ул., 716 м2, Здание (ном. объекта: 7818) - Фото 18
    м. Павелецкая, Летниковская ул., 716 м2, Здание (ном. объекта: 7818) - Фото 19
    общая площадь 716м², реализуемая площадь 716м²

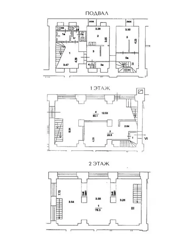
    Отдельно стоящее здание площадью 716 м2. Первая линия домов. Высота потолков 3,25 метров. Электрическая мощность 50 кВт. Инженерные коммуникации центральные. Стены кирпичные, перекрытия железобетонные. Год строительства 1903. Памятником не является....
    • 716 м²
    • 2 этажа
    190 000 000 Р
    Агент
    +7 (965) Показать номер
    Агентство
    Телус
    Посмотреть контакты
    Торговая площадь в Москва Большой Черкасский пер., 13С4 (241 м) - Фото 1
    Торговая площадь в Москва Большой Черкасский пер., 13С4 (241 м) - Фото 2
    931356-f . Предлагаем к приобретению помещение свободного назначения, площадью 240,7 кв. м., расположенное на 1, 2 этажах и подвале административного здания. Без комиссии для покупателя. Преимущества объекта: -200 метров от станции метро Китай-город и...
    • 1/5 эт.
    187 000 000 Р
    Агент
    +7 (938) Показать номер
    Посмотреть контакты
    Торговая площадь в Москва Сокольническая пл., 9 (152 м) - Фото 1
    Торговая площадь в Москва Сокольническая пл., 9 (152 м) - Фото 2
    Продажа торгового помещения 151,7 м2 с арендатором ортопедический салон Medi на пл. Сокольническая, д. 9 на выходе из метро Сокольники. 1 линия домов.Помещение 151,7 м2, располагается на 1 этаже, открытая планировка, отдельный вход с фасада, высота...
    • 1/11 эт.
    185 000 000 Р
    Агент
    +7 (916) Показать номер
    Посмотреть контакты

    Не нашли подходящего объявления?

    Оставьте заявку, и наши риэлторы подберут торговое помещение в районе Москвы

    (0)