Россия, Москва, Цветочные Поляны жилой комплекс, к9
60 400 000 Р 784 200 $ или 661 900

Информация об помещении

1
Этаж

Состояние и оснащение

Количество этажей
20
Развернуть
Агент
+7 (916) 603-02-04
Начать чат с агентом

Торговая площадь в Москва Цветочные Поляны жилой комплекс, к9 (168 м)

Продажа торгового помещения 168,67 м2 по адресу п. Филимонковское, жилой комплекс Цветочные Поляны, 9 (20 минут транспортом от метро Рассказовка). 1 линия домов.Помещение 168,67 м2, располагается на 1 этаже, открытая планировка, две входные группы, высота потолка 4 м, витринные окна по фасаду. Электрическая мощность 30 кВт. Парковка перед фасадом. Ключи 30.06.2026 год.Помещение свободного назначения формата Street Retail в новом ЖК Цветочные поляны Экопарк ,ТИНАО, Новомосковский район. 23 мин на транспорте от метро Рассказовка. Цветочные Поляны Экопарк — жилой квартал комфорт-класса из 6 монолитных корпусов с многоуровневыми благоустройством, многочисленными детскими площадками и зонами отдыха для взрослых. Большая часть квартир продаются с отделкой под ключ. В будущем планируется открытие станции метро Середнево в шаговой доступности.Арендатор: магазин Магнит рядом , подписан предварительный договор аренды, основной договор аренды согласован на 7 лет, месячная арендная плата на 1-ый год, на 2-ой год, на 3-ий год , 4 год и последующие индексация 4 по соглашению сторон. Стоимость продажи .. Без комиссии.

Читать полностью
    Позвонить Написать
    60 400 000 Р784 200 $ или 661 900
    Агент
    +7 (916) 603-02-04
    Начать чат с агентом
    Похожие предложения
    Торговая площадь в Москва Дмитровское ш., вл89 (57 м) - Фото 1
    Торговая площадь в Москва Дмитровское ш., вл89 (57 м) - Фото 2
    Предложение на продажу 62942.Предлагается на продажу помещение на Дмитровском шоссе, САО, г. Москва. Объект расположен на первом этаже, в непосредственной близости от станции метро Селигерская — менее 1 минуты пешком. Отличная пешеходная и транспортная...
    • 1/46 эт.
    60 000 000 Р
    Агент
    +7 (989) Показать номер
    Посмотреть контакты
    м. Профсоюзная, Кржижановского ул., 677 м2, Здание (ном. объекта: ... - Фото 1
    м. Профсоюзная, Кржижановского ул., 677 м2, Здание (ном. объекта: ... - Фото 2
    м. Профсоюзная, Кржижановского ул., 677 м2, Здание (ном. объекта: ... - Фото 3
    м. Профсоюзная, Кржижановского ул., 677 м2, Здание (ном. объекта: ... - Фото 4
    м. Профсоюзная, Кржижановского ул., 677 м2, Здание (ном. объекта: ... - Фото 5
    м. Профсоюзная, Кржижановского ул., 677 м2, Здание (ном. объекта: ... - Фото 6
    м. Профсоюзная, Кржижановского ул., 677 м2, Здание (ном. объекта: ... - Фото 7
    м. Профсоюзная, Кржижановского ул., 677 м2, Здание (ном. объекта: ... - Фото 8
    м. Профсоюзная, Кржижановского ул., 677 м2, Здание (ном. объекта: ... - Фото 9
    м. Профсоюзная, Кржижановского ул., 677 м2, Здание (ном. объекта: ... - Фото 10
    м. Профсоюзная, Кржижановского ул., 677 м2, Здание (ном. объекта: ... - Фото 11
    м. Профсоюзная, Кржижановского ул., 677 м2, Здание (ном. объекта: ... - Фото 12
    м. Профсоюзная, Кржижановского ул., 677 м2, Здание (ном. объекта: ... - Фото 13
    м. Профсоюзная, Кржижановского ул., 677 м2, Здание (ном. объекта: ... - Фото 14
    м. Профсоюзная, Кржижановского ул., 677 м2, Здание (ном. объекта: ... - Фото 15
    м. Профсоюзная, Кржижановского ул., 677 м2, Здание (ном. объекта: ... - Фото 16
    м. Профсоюзная, Кржижановского ул., 677 м2, Здание (ном. объекта: ... - Фото 17
    м. Профсоюзная, Кржижановского ул., 677 м2, Здание (ном. объекта: ... - Фото 18
    общая площадь 677м², реализуемая площадь 677м²

    Продается отдельно стоящее двухэтажное здание 677 м2. 2001 год постройки. Стены - кирпич, перекрытия - железобетонные. Высота потолков 2,8 метра. Инженерные коммуникации центральные. Электрическая мощность 150 кВт. Ранее располагалась Пятерочка. Сейчас...
    • 677 м²
    • 2 этажа
    60 000 000 Р
    Агент
    +7 (968) Показать номер
    Агентство
    Телус
    Посмотреть контакты
    Торговая площадь в Москва Левел Южнопортовая жилой комплекс (74 м) - Фото 1
    Торговая площадь в Москва Левел Южнопортовая жилой комплекс (74 м) - Фото 2
    Лот 156075.Предлагается в продажу помещение свободного назначения в ЖК Level Южнопортовая в ЮВАО по адресу: Москва, ул. Южнопортовая, вл.28 корп 9 в 7 мин пешком от м Кожуховская . ЖК расположен в обжитом емком районе, 14 корпусов комфорт класса рассчитаны...
    • 1/49 эт.
    59 838 408 Р
    Агент
    +7 (985) Показать номер
    Посмотреть контакты
    Торговая площадь в Москва Звенигородское ш., 7 (192 м) - Фото 1
    Торговая площадь в Москва Звенигородское ш., 7 (192 м) - Фото 2
    Продаётся нежилое помещение с действующими арендаторами на 1 линии Звенигородского шоссе Объект расположен в оживленном районе города. Всего в 5 минутах пешком от м. Улица 1905 года . Находится в непосредственной близости от остановки и делового центра...
    • -1/5 эт.
    60 000 000 Р
    Агент
    +7 (916) Показать номер
    Посмотреть контакты
    Торговая площадь в Москва 3-я оч., Шагал жилой комплекс, к10 (78 м) - Фото 1
    Торговая площадь в Москва 3-я оч., Шагал жилой комплекс, к10 (78 м) - Фото 2
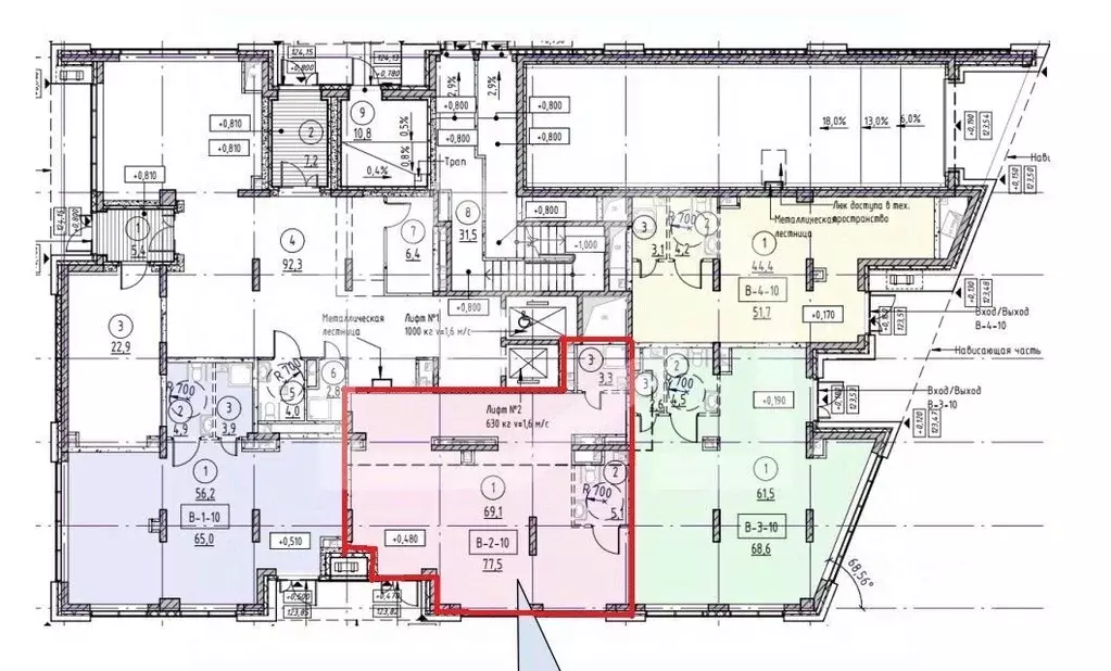
    1110360 . Предлагаем помещение свободного назначения формата street-retail в ЖК Shagal , площадью 77.5 кв. м, расположенное на первом этаже 22-этажного жилого дома. 3 очередь, 6 этап, корпус 10. Без комиссии для покупателя.Преимущества объекта:-первая...
    • 1/22 эт.
    60 953 985 Р
    Агент
    +7 (938) Показать номер
    Посмотреть контакты

    Не нашли подходящего объявления?

    Оставьте заявку, и наши риэлторы подберут торговое помещение в районе Москвы

    (0)