30 000 000 Р 387 000 $ или 330 700

Информация об помещении

1
Этаж

Состояние и оснащение

Количество этажей
14
Развернуть
Агент
+7 (938) 656-74-88
Начать чат с агентом

Торговая площадь в Москва ул. Перерва, 62К1 (100 м)

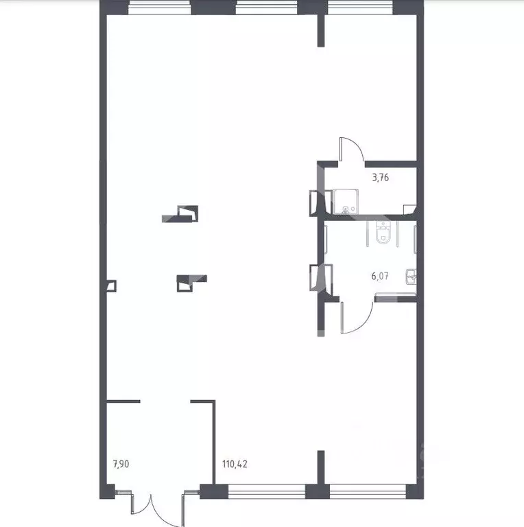
818165-f . Предлагаем к приобретению помещение свободного назначения формата Street Retail, площадью 100 кв. м., расположенное на первом этаже жилого дома. Без комиссии для покупателя.Преимущества объекта: -первая линия ул. Перерва;-пешая доступность от станции метро Братиславская (12 минут пешком);-4 км до Бесединского шоссе, 5 км до МКАД;-отлично просматривается, находится в легком доступе для потенциальных клиентов;-развитая инфраструктура в окружении;-гибкая планировка, позволяющая адаптировать пространство под различные нужды;-витринное остекление;-место для вывески;-парковка на улице;-рядом остановка общественного транспорта.Технические параметры объекта:-2 отдельные входные группы;-электрическая мощность: 20 кВт;-высота потолков: 3 м.Свяжитесь с нами для получения дополнительной информации

Читать полностью
    Позвонить Написать
    30 000 000 Р387 000 $ или 330 700
    Агент
    +7 (938) 656-74-88
    Начать чат с агентом
    Похожие предложения
    Торговая площадь в Москва 1-я Новокузьминская ул., 21К2 (24 м) - Фото 1
    Торговая площадь в Москва 1-я Новокузьминская ул., 21К2 (24 м) - Фото 2
    Продажа готового арендного бизнеса — помещение формата Street retail с сетевым арендатором Залог успеха площадью 24.2 м2 (1 этаж) - ул 1-я Новокузьминская, д. 21к2, м. Рязанский проспектАрендатор - Сеть ломбардов Залог Успеха — крупнейший ювелирный...
    • 1/12 эт.
    30 000 000 Р
    Агент
    +7 (910) Показать номер
    Посмотреть контакты
    Торговая площадь в Москва Рязановское поселение, ул. Уточкина, 5к1 ... - Фото 1
    Торговая площадь в Москва Рязановское поселение, ул. Уточкина, 5к1 ... - Фото 2
    881832-f . Предлагаем помещение свободного назначения формата street-retail в ЖК Алхимово , площадью 128.3 кв. м, расположенное на первом этаже 12-этажного жилого дома. Без комиссии для покупателя.Преимущества объекта:-ЖК состоит из 17 корпусов переменной...
    • 1/12 эт.
    29 235 120 Р
    Агент
    +7 (938) Показать номер
    Посмотреть контакты
    Торговая площадь в Москва Варшавское ш., 170Ек5 (51 м) - Фото 1
    Торговая площадь в Москва Варшавское ш., 170Ек5 (51 м) - Фото 2
    Лот 137295.Продается помещение свободного назначения по адресу: г. Москва, Варшавское шоссе, 170Ек5. Первая линия домов, станция метро Лесопарковая в 2-х минутах пешком, метро Аннино в 10 минутах пешком. Помещение на трафике, на центральной аллее...
    • 1/20 эт.
    30 790 000 Р
    Агент
    +7 (985) Показать номер
    Посмотреть контакты
    Торговая площадь в Москва Деснаречье жилой комплекс, к4.2 (94 м) - Фото 1
    Торговая площадь в Москва Деснаречье жилой комплекс, к4.2 (94 м) - Фото 2
    1101529-f . Предлагаем к приобретению помещение свободного назначения формата Street Retail, площадью 94,4 кв. м., расположенное на первом этаже жилого дома в ЖК Деснаречье. Корпус 4.2. Без комиссии для покупателя.Преимущества объекта: -первая линия;-комплекс...
    • 1/14 эт.
    30 000 000 Р
    Агент
    +7 (938) Показать номер
    Посмотреть контакты
    Продажа торгового помещения, м. Рязанский проспект, ул. ... - Фото 1
    Продажа торгового помещения, м. Рязанский проспект, ул. ... - Фото 2
    Продажа торгового помещения, м. Рязанский проспект, ул. ... - Фото 3
    Продажа торгового помещения, м. Рязанский проспект, ул. ... - Фото 4
    Продажа торгового помещения, м. Рязанский проспект, ул. ... - Фото 5
    общая площадь 24м², реализуемая площадь 24м²

    Продажа торгового помещения на выходе из метро Рязанский проспект, менее 1 минуты пешком. Помещение общей площадью 24 кв.м (блок 11 на плане) расположено на 1-м этаже жилого 12-ти этажного дома. Интенсивный пешеходный поток. Развитая инфраструктура, крупный...
    • 24 м²
    • 1/12 эт.
    30 000 000 Р
    Агент
    +7 (903) Показать номер
    Посмотреть контакты

    Не нашли подходящего объявления?

    Оставьте заявку, и наши риэлторы подберут торговое помещение в районе Москвы

    (0)