Россия, Москва, Средний Кисловский пер., 5/6С3
62 000 000 Р 796 600 $ или 684 800

Информация об помещении

цоколь
Этаж

Состояние и оснащение

Количество этажей
4
Развернуть
Агент
+7 (938) 656-74-88
Начать чат с агентом

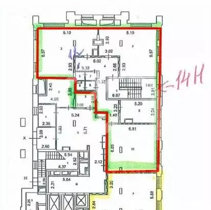
Торговая площадь в Москва Средний Кисловский пер., 5/6С3 (377 м)

667665-f . Предлагаем к приобретению помещение свободного назначения, площадью 377 кв. м., расположенное в подвале жилого дома на Среднем Кисловском пер. Без комиссии для покупателя. Преимущества объекта: -6 минут пешком от станции метро Арбатская;-1.5 км до Садового кольца, 4.7 км до ТТК, 5.4 км до Звенигородского шоссе;-исторический центр Москвы; здание является постройкой второй половины 19-го века, бывший доходный дом Якунчиковыx;-отлично просматривается, находится в легком доступе для потенциальных клиентов;-развитая инфраструктура в окружении;-подвальное помещение имеет отдельный каминный зал со входом из галереи, которое сдаётся в аренду;-отдельно располагается просторное помещение, арендуемое популярным Стрелковым клубом , со своим отдельным входом с лестницы и запасным выходом, а также кухня, которая тоже в аренде;-есть несколько С/У, один из которых расположен в середине галереи, включая мокрую точку в самом конце галереи;-наземная парковка;-огороженная и охраняемая территория;-с правой стороны от здания находится учебный корпус знаменитого ГИТИС. Технические параметры объекта:-2 отдельные входные группы;-электрическая мощность: 20 кВт;-высота потолков: 3 м. Свяжитесь с нами для получения дополнительной информации

Читать полностью
    Позвонить Написать
    62 000 000 Р796 600 $ или 684 800
    Агент
    +7 (938) 656-74-88
    Начать чат с агентом
    Похожие предложения
    Торговая площадь в Москва Денежный пер., 30 (33 м) - Фото 1
    Торговая площадь в Москва Денежный пер., 30 (33 м) - Фото 2
    957723 . Предлагаем помещение свободного назначения формата Street Retail с арендатором Цветы Весна Flowers , площадью 32.8 кв. м, расположенное на первом этаже жилого дома. Без комиссии для покупателя.Преимущества объекта:-первая линия пер. Денежный;-шаговая...
    • 1/9 эт.
    62 000 000 Р
    Агент
    +7 (938) Показать номер
    Посмотреть контакты
    Торговая площадь в Москва Денежный пер., 30 (35 м) - Фото 1
    Торговая площадь в Москва Денежный пер., 30 (35 м) - Фото 2
    957726 . Предлагаем помещение свободного назначения формата Street Retail с арендатором Дринкит , площадью 34,6 кв. м, расположенное на первом этаже жилого дома. Без комиссии для покупателя.Преимущества объекта:-первая линия пер. Денежный;-шаговая доступность...
    • 1/9 эт.
    62 000 000 Р
    Агент
    +7 (938) Показать номер
    Посмотреть контакты
    Торговая площадь в Москва ул. 1-я Бухвостова, 2к3 (107 м) - Фото 1
    Торговая площадь в Москва ул. 1-я Бухвостова, 2к3 (107 м) - Фото 2
    743329-f . Предлагаем помещение свободного назначения формата Street Retail, площадью 106,5 кв. м, расположенное на первом этаже жилого дома в ЖК Преображенская площадь . Без комиссии для покупателя. Преимущества объекта:-первая линия ул. Краснобогатырская;-ЖК...
    • 1/17 эт.
    61 344 415 Р
    Агент
    +7 (938) Показать номер
    Посмотреть контакты
    Торговая площадь в Москва Никитинская ул., 10 (221 м) - Фото 1
    Торговая площадь в Москва Никитинская ул., 10 (221 м) - Фото 2
    702251-f . Предлагаем к покупке торговое помещение формата street-retail в ЖК ИзМайЛовО , площадью 221,3 кв. м, расположенное на первом и втором этажах 19-этажного жилого дома. Без комиссии для покупателя.Преимущества объекта:-первая линия ул. Никитинская;-шаговая...
    • 2/19 эт.
    61 964 000 Р
    Агент
    +7 (938) Показать номер
    Посмотреть контакты
    Торговая площадь в Москва 4-я Гражданская ул., 33А (138 м) - Фото 1
    Торговая площадь в Москва 4-я Гражданская ул., 33А (138 м) - Фото 2
    Продажа торгового помещения 138,1 м2 на ул. 4-я Гражданская, д. 33А (20 минут пешком от метро Преображенская площадь). 1 линия домов.Помещение 138,1 м2, располагается на 1 этаже, открытая планировка, отдельный вход с фасада, высота потолка 5 м, витринные...
    • 1/11 эт.
    62 500 000 Р
    Агент
    +7 (916) Показать номер
    Посмотреть контакты

    Не нашли подходящего объявления?

    Оставьте заявку, и наши риэлторы подберут торговое помещение в районе Москвы

    (0)