Россия, Москва, Дзен-кварталы жилой комплекс, 1.3
50 000 000 Р 642 400 $ или 552 300

Информация об помещении

1
Этаж

Состояние и оснащение

Количество этажей
18
Развернуть
Агент
+7 (916) 603-02-04
Начать чат с агентом

Торговая площадь в Москва Дзен-кварталы жилой комплекс, 1.3 (183 м)

Продажа торгового помещения 183,5 м2 по адресу жилой комплекс Дзен кварталы, корпус 1.3 (12 минут пешком от метро Коммунарка). 1-я линия домов.Помещение 183,5 м2, располагается на 1 этаже, открытая планировка, два отдельный входа, высота потолка 4,9 м, витринные окна на две стороны. Электрическая мощность 53,4 кВт. Место для размещения рекламы. Технические параметры для вентиляции 700/350 300/150. Сечение 150. Пожарная сигнализация - есть.Помещение располагается в новом строящемся жилом комплексе Дзен кварталы . Дом введён в эксплуатацию, ключи получены.В непосредственной близости расположена еще одна новая станция метро Потапово . Количество жителей по завершению строительства свыше 15 000 человек. В соседнем помещении (за стенкой) будет расположен супермаркет, как центр притяжения.Стоимость .. Без комиссии.

Читать полностью
    Позвонить Написать
    50 000 000 Р642 400 $ или 552 300
    Агент
    +7 (916) 603-02-04
    Начать чат с агентом
    Похожие предложения
    Торговая площадь в Москва Скандинавия жилой комплекс, 25.3 (140 м) - Фото 1
    Торговая площадь в Москва Скандинавия жилой комплекс, 25.3 (140 м) - Фото 2
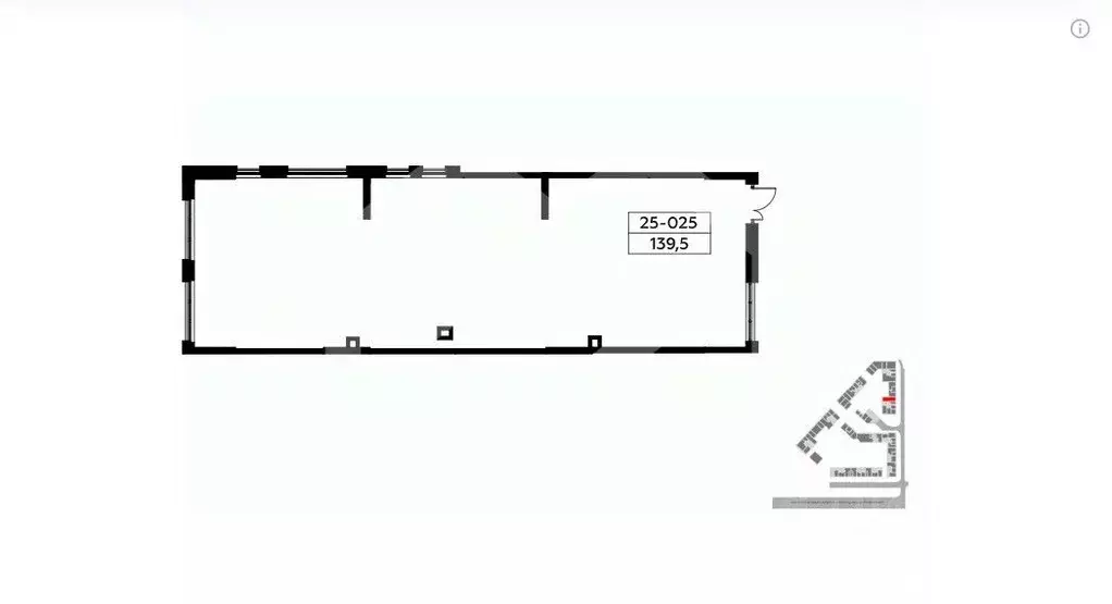
    941391 . Предлагаем к приобретению помещение свободного назначения формата Street Retail, площадью 139,5 кв. м, расположенное на первом этаже жилого дома в ЖК Скандинавия . Корпус 25.3. Без комиссии для покупателя. Преимущества объекта:-ЖК состоит из...
    • 1/17 эт.
    49 720 590 Р
    Агент
    +7 (938) Показать номер
    Посмотреть контакты
    Торговая площадь в Москва Скандинавия жилой комплекс, 18.1.2 (148 м) - Фото 1
    Торговая площадь в Москва Скандинавия жилой комплекс, 18.1.2 (148 м) - Фото 2
    941402 . Предлагаем помещение свободного назначения формата street-retail в ЖК Скандинавия , корпус 18.1.2, площадью 147.9 кв. м, расположенное на первом этаже 14-этажного жилого дома. Без комиссии для покупателя.Преимущества объекта:-ЖК состоит из 99...
    • 1/14 эт.
    49 438 533 Р
    Агент
    +7 (938) Показать номер
    Посмотреть контакты
    Торговая площадь в Москва ул. Гастелло, 30 (71 м) - Фото 1
    Торговая площадь в Москва ул. Гастелло, 30 (71 м) - Фото 2
    741612-f . Предлагаем к приобретению помещение свободного назначения формата Street Retail, площадью 71 кв. м., расположенное на первом этаже торгово-инфраструктурного блока 2 в ЖК STONE SOKOLNIKI. Так как корректный адрес отсутствует на Яндекс.Картах,...
    • 1/2 эт.
    50 978 000 Р
    Агент
    +7 (938) Показать номер
    Посмотреть контакты
    Торговая площадь в Москва Уральская ул., 5А (78 м) - Фото 1
    Торговая площадь в Москва Уральская ул., 5А (78 м) - Фото 2
    682954-f . Предлагаем помещение свободного назначения площадью 78,1 кв. м., расположенное на первом этаже административного здания. Без комиссии для покупателя. Преимущества объекта:-первая линия ул. Уральская;-4 минуты пешком от станции метро Щелковская;-объект...
    • 1/1 эт.
    50 400 000 Р
    Агент
    +7 (938) Показать номер
    Посмотреть контакты
    Продажа торгового помещения, м. Зюзино, ул. Каховка - Фото 1
    Продажа торгового помещения, м. Зюзино, ул. Каховка - Фото 2
    Продажа торгового помещения, м. Зюзино, ул. Каховка - Фото 3
    Продажа торгового помещения, м. Зюзино, ул. Каховка - Фото 4
    Продажа торгового помещения, м. Зюзино, ул. Каховка - Фото 5
    общая площадь 112м², реализуемая площадь 112м²

    Продажа торгового помещения! 250 метров от станции метро Зюзино. ЮЗАО. Площадь - 112 м2, 1 этаж 19-ти этажного монолитного жилого дома 2021 года постройки. Отдельный вход с улицы, витрины, городские коммуникации, электрическая мощность 22 кВт. Планировка...
    • 112 м²
    • 1/19 эт.
    49 000 000 Р
    Агент
    +7 (903) Показать номер
    Посмотреть контакты

    Не нашли подходящего объявления?

    Оставьте заявку, и наши риэлторы подберут торговое помещение в районе Москвы

    (0)