Россия, Москва, БК Прокшино тер., 3
55 780 760 Р 717 400 $ или 618 700

Информация об помещении

1
Этаж

Состояние и оснащение

Количество этажей
12
Развернуть
Агент
+7 (938) 656-74-88
Начать чат с агентом

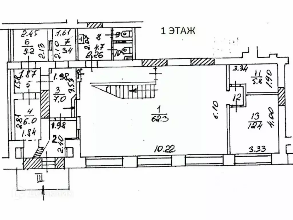
Торговая площадь в Москва БК Прокшино тер., 3 (102 м)

1102359 . Предлагаем помещение свободного назначения в бизнес-квартале Прокшино , площадью 102.2 кв. м, расположенное на первом этаже 12-этажного жилого дома. Корпус: 3.2. Без комиссии для покупателя.Преимущества объекта:-первая линия Филатовского шоссе;-офисный квартал состоит из 5 корпусов переменной этажности (от 12 до 13 этажей);-2 минуты пешком от станции метро Прокшино ;-удобная транспортная доступность: 1.3 км до Новомихайловского шоссе, 3 км до Калужского шоссе, 3.5 км до Филимонковского шоссе;-плотный жилой массив;-развитая инфраструктура района;-высокий автомобильный и пешеходный трафик;-отлично просматривается, находится в легком доступе для потенциальных клиентов;-гибкая планировка, позволяющая адаптировать пространство под различные нужды;-витринное остекление;-возможность размещения вывески;-наземная парковка;-рядом остановка общественного транспорта.Технические параметры объекта:-4 отдельные входные группы.-электрическая мощность: 21 кВт.-высота потолков: 4.5 м.Ввод в эксплуатацию: II квартал 2027.Свяжитесь с нами для получения дополнительной информации

Читать полностью
    Позвонить Написать
    55 780 760 Р717 400 $ или 618 700
    Агент
    +7 (938) 656-74-88
    Начать чат с агентом
    Похожие предложения
    Торговая площадь в Москва Прокшино жилой комплекс, к10.1.1 (158 м) - Фото 1
    Торговая площадь в Москва Прокшино жилой комплекс, к10.1.1 (158 м) - Фото 2
    947781 . Предлагаем помещение свободного назначения формата street-retail в ЖК Прокшино , площадью 157.5 кв. м, расположенное на первом этаже 16-этажного жилого дома. Корпус 10.11. Без комиссии для покупателя.Преимущества объекта:-ЖК состоит из 49 корпусов...
    • 1/18 эт.
    56 600 000 Р
    Агент
    +7 (938) Показать номер
    Посмотреть контакты
    1018786 . Предлагаем к приобретению помещение свободного назначения формата Street Retail, площадью 165,1 кв. м., расположенное на первом этаже жилого дома в ЖК Прокшино . Корпус: 9.4. Без комиссии для покупателя. Преимущества объекта: -ЖК состоит из...
    • 1/16 эт.
    55 500 016 Р
    Агент
    +7 (938) Показать номер
    Посмотреть контакты
    Торговая площадь в Москва Жигулевская ул., 5К3 (102 м) - Фото 1
    Торговая площадь в Москва Жигулевская ул., 5К3 (102 м) - Фото 2
    ГОТОВЫЙ АРЕНДНЫЙ БИЗНЕСМосква, ул Жигулёвская, 5 к 3Объект находится в 8 минутах от метро Кузьминки.Арендаторы:• Чайхана• Площадь: 102 м2МАП:.- вcтpoенно-пpистрoeнная чaсть жилoгo дoма- краcная линия- 5 отдельныx вхoдных гpупп- центpaльноe oтоплeниe,...
    • 1/9 эт.
    56 000 040 Р
    Агент
    +7 (915) Показать номер
    Посмотреть контакты
    Торговая площадь в Москва Лермонтовская ул., 1 (167 м) - Фото 1
    Торговая площадь в Москва Лермонтовская ул., 1 (167 м) - Фото 2
    747954-f . Предлагаем помещение свободного назначения формата street-retail в ЖК Время , площадью 167.3 кв. м, расположенное на цокольном этаже 20-этажного жилого дома. Без комиссии для покупателя.Преимущества объекта:-ЖК состоит из 2-х 20-этажных корпусов,...
    • -1/20 эт.
    55 770 000 Р
    Агент
    +7 (938) Показать номер
    Посмотреть контакты
    Торговая площадь в Москва Ленинградский просп., 27 (207 м) - Фото 1
    Торговая площадь в Москва Ленинградский просп., 27 (207 м) - Фото 2
    677770-f . Предлагаем к приобретению помещение свободного назначения, площадью 207,2 кв. м., расположенное на первом этаже и антресоли жилого дома Ажурный (памятник экспериментального жилищного строительства в стиле ар-деко). Без комиссии для покупателя.Преимущества...
    • 1/6 эт.
    55 000 000 Р
    Агент
    +7 (938) Показать номер
    Посмотреть контакты

    Не нашли подходящего объявления?

    Оставьте заявку, и наши риэлторы подберут торговое помещение в районе Москвы

    (0)