Россия, Москва, Чонгарский бул., 10К1
115 000 000 Р 1 470 100 $ или 1 248 700

Информация об помещении

1
Этаж

Состояние и оснащение

Количество этажей
9
Развернуть
Агент
+7 (938) 656-74-88
Начать чат с агентом

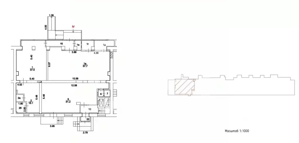
Торговая площадь в Москва Чонгарский бул., 10К1 (192 м)

1065238 . Предлагаем помещение свободного назначения формата street-retail с арендаторами Горздрав и Подружка , площадью 192.2 кв. м, расположенное на первом этаже 9-этажного жилого дома. Дом не входит в программу реновации. Без комиссии для покупателя.Преимущества объекта:-первая линия Чонгарского бульвара;-шаговая доступность от станции метро Варшавская (2 минуты пешком);-удобная транспортная доступность: 250 м до Варшавского шоссе, 2.7 км до Каширского шоссе, 6.5 км до Загородного шоссе, 7 км до ТТК;-плотный жилой массив;-развитая инфраструктура района;-высокий автомобильный и пешеходный трафик;-отлично просматривается, находится в легком доступе для потенциальных клиентов;-гибкая планировка, позволяющая адаптировать пространство под различные нужды;-витринное остекление;-возможность размещения вывески;-наземная парковка;-рядом остановка общественного транспорта.Технические параметры объекта:-2 отдельные входные группы.-электрическая мощность: 50 кВт.-высота потолков: 3.2 м.Информация об арендаторе: -арендатор: Горздрав и Подружка .-прибыль:уб/мес.-окупаемость: 10.5 лет.Свяжитесь с нами для получения дополнительной информации

Читать полностью
    Позвонить Написать
    115 000 000 Р1 470 100 $ или 1 248 700
    Агент
    +7 (938) 656-74-88
    Начать чат с агентом
    Похожие предложения
    Торговая площадь в Москва Чонгарский бул., 10К1 (192 м) - Фото 1
    Торговая площадь в Москва Чонгарский бул., 10К1 (192 м) - Фото 2
    Продажа торгового помещения 192,2 м2 с сетевыми арендаторами на Чонгарском бульваре, д. 10 корпус 1 (2 минуты пешком от метро Варшавская). 1 линия домов.Помещение 192,2 масполагается на 1 этаже, открытая планировка, один вход с первой линии и один вход...
    • 1/5 эт.
    115 000 000 Р
    Агент
    +7 (916) Показать номер
    Посмотреть контакты
    Торговая площадь в Москва Краснодарская ул., 60А (609 м) - Фото 1
    Торговая площадь в Москва Краснодарская ул., 60А (609 м) - Фото 2
    Готовый арендный бизнес от собственника.Сотрудничество с агентами Продается отдельно стоящее здание с готовым и уже работающим арендным бизнесом.Вы покупаете не просто недвижимость, а готовый источник стабильного пассивного дохода.Общий потенциальный...
    • 1/1 эт.
    130 000 000 Р
    Агент
    +7 (986) Показать номер
    Посмотреть контакты
    Торговая площадь в Москва Совхозная ул., 10Б (172 м) - Фото 1
    Торговая площадь в Москва Совхозная ул., 10Б (172 м) - Фото 2
    Продажа торгового помещения с арендаторами в новом ЖК L CLUB на ул. Совхозная, д. 10Б (2 минуты пешком от метро Люблино). 1 линия домов.Помещение 172 масполагается на 1 этаже, смешанная планировка, отдельный вход с фасада и со двора, высота потолка...
    • 1/23 эт.
    110 000 000 Р
    Агент
    +7 (916) Показать номер
    Посмотреть контакты
    Торговая площадь в Москва Сущевская ул., 29 (174 м) - Фото 1
    Торговая площадь в Москва Сущевская ул., 29 (174 м) - Фото 2
    Продаж торгового помещения 173,9 м2 с арендатором Гемотест на ул. Сущевская, д. 29 (4 минуты пешком от метро Менделеевская). 1-я линия Первый этаж 173,9 м2, открытая планировка, отдельный вход, высота потолка 3 м, окна по фасаду. Все коммуникации центральные,...
    • 1/11 эт.
    110 000 000 Р
    Агент
    +7 (916) Показать номер
    Посмотреть контакты
    Торговая площадь в Москва Профсоюзная ул., 5/9 (212 м) - Фото 1
    Торговая площадь в Москва Профсоюзная ул., 5/9 (212 м) - Фото 2
    Предложение на продажу 62859.Предлагается в продажу помещение на улице Профсоюзная, ЮЗАО, г. Москва. Шаговая доступность от ст. метро Академическая — 2 минуты пешком. Отличная пешеходная и транспортная доступность.. . Помещения подготовлены под чистовую...
    • 1/8 эт.
    114 480 000 Р
    Агент
    +7 (989) Показать номер
    Посмотреть контакты

    Не нашли подходящего объявления?

    Оставьте заявку, и наши риэлторы подберут торговое помещение в районе Москвы

    (0)