138 000 000 Р 1 774 700 $ или 1 530 600

Информация об помещении

1
Этаж

Состояние и оснащение

Количество этажей
3
Развернуть
Агент
+7 (938) 656-74-88
Начать чат с агентом

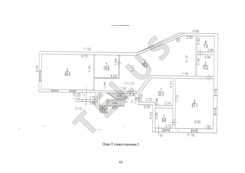
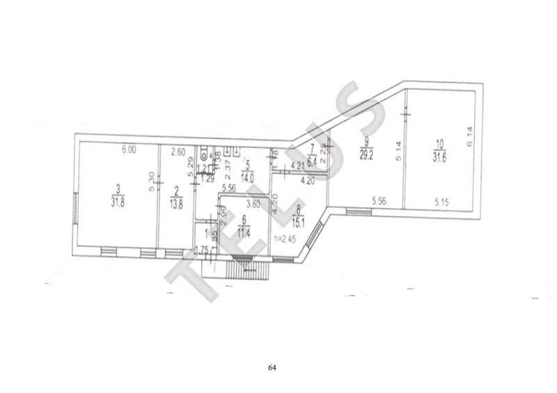
Торговая площадь в Москва ул. Кузнецкий Мост, 22с4 (119 м)

635973 . Предлагаем к приобретению помещение свободного назначения формата Street Retail, площадью 119 кв. м., расположенное на первом этаже и антресоли трехэтажного административного здания. Без комиссии для покупателя. Преимущества объекта:-первая линия;-у выхода из станции метро Кузнецкий мост;-исторический центр города, район деловой активности с жилым сектором, много бизнес-центров, государственных учреждений, памятников, музеев, высших учебных заведений, отелей и магазинов мировых брендов;-сверхинтенсивный пешеходный и автомобильный трафик;-гибкая планировка, позволяющая адаптировать пространство под различные нужды;-витринное остекление;-место для вывески;-ж/б перекрытия;-два санузла;-все центральные городские инженерные коммуникации;-в помещении имеются вытяжные воздуховоды до уровня кровли;-городская парковка. Технические параметры объекта:-отдельный вход с фасада;-электрическая мощность: 45 кВт;-высота потолков: 3.1 м. Свяжитесь с нами для получения дополнительной информации

Читать полностью
    Позвонить Написать
    138 000 000 Р1 774 700 $ или 1 530 600
    Агент
    +7 (938) 656-74-88
    Начать чат с агентом
    Похожие предложения
    м. Строгино, ул. Маршала Прошлякова, 2728 м2, Здание (ном. объекта: ... - Фото 1
    м. Строгино, ул. Маршала Прошлякова, 2728 м2, Здание (ном. объекта: ... - Фото 2
    м. Строгино, ул. Маршала Прошлякова, 2728 м2, Здание (ном. объекта: ... - Фото 3
    м. Строгино, ул. Маршала Прошлякова, 2728 м2, Здание (ном. объекта: ... - Фото 4
    м. Строгино, ул. Маршала Прошлякова, 2728 м2, Здание (ном. объекта: ... - Фото 5
    м. Строгино, ул. Маршала Прошлякова, 2728 м2, Здание (ном. объекта: ... - Фото 6
    м. Строгино, ул. Маршала Прошлякова, 2728 м2, Здание (ном. объекта: ... - Фото 7
    м. Строгино, ул. Маршала Прошлякова, 2728 м2, Здание (ном. объекта: ... - Фото 8
    м. Строгино, ул. Маршала Прошлякова, 2728 м2, Здание (ном. объекта: ... - Фото 9
    м. Строгино, ул. Маршала Прошлякова, 2728 м2, Здание (ном. объекта: ... - Фото 10
    общая площадь 2778м², реализуемая площадь 2778м²

    Складское здание площадью 2357 кв.м. (металлокаркас обшитый профлистом) и АБК 370 кв.м. (с разводкой отопления) расположенные на земельном участке площадью 47 сотки (ВРИ - участки смешанного размещения производственных объектов (1.2.7, 1.2.9) склады....
    • 2 778 м²
    • 1 этаж
    140 000 000 Р
    Агент
    +7 (926) Показать номер
    Агентство
    Телус
    Посмотреть контакты
    м. Таганская, Шелапутинский пер., 1885 м2, Здания (ном. объекта: 8036) - Фото 1
    м. Таганская, Шелапутинский пер., 1885 м2, Здания (ном. объекта: 8036) - Фото 2
    м. Таганская, Шелапутинский пер., 1885 м2, Здания (ном. объекта: 8036) - Фото 3
    м. Таганская, Шелапутинский пер., 1885 м2, Здания (ном. объекта: 8036) - Фото 4
    м. Таганская, Шелапутинский пер., 1885 м2, Здания (ном. объекта: 8036) - Фото 5
    м. Таганская, Шелапутинский пер., 1885 м2, Здания (ном. объекта: 8036) - Фото 6
    м. Таганская, Шелапутинский пер., 1885 м2, Здания (ном. объекта: 8036) - Фото 7
    м. Таганская, Шелапутинский пер., 1885 м2, Здания (ном. объекта: 8036) - Фото 8
    м. Таганская, Шелапутинский пер., 1885 м2, Здания (ном. объекта: 8036) - Фото 9
    м. Таганская, Шелапутинский пер., 1885 м2, Здания (ном. объекта: 8036) - Фото 10
    м. Таганская, Шелапутинский пер., 1885 м2, Здания (ном. объекта: 8036) - Фото 11
    м. Таганская, Шелапутинский пер., 1885 м2, Здания (ном. объекта: 8036) - Фото 12
    м. Таганская, Шелапутинский пер., 1885 м2, Здания (ном. объекта: 8036) - Фото 13
    м. Таганская, Шелапутинский пер., 1885 м2, Здания (ном. объекта: 8036) - Фото 14
    м. Таганская, Шелапутинский пер., 1885 м2, Здания (ном. объекта: 8036) - Фото 15
    общая площадь 1884.7м², реализуемая площадь 1884.7м²

    Единый комплекс зданий 1884,7 м2. Первое здание 1478,6 м2 - трехэтажное, высота потолков 3 метра, второе здание 406,1 м2 - двухэтажное, высота потолков 3 метра. Год строительства - до 1917. Стены - кирпичные. Инженерные коммуникации - водопровод, канализация,...
    • 1 884.7 м²
    • 2 этажа
    140 000 000 Р
    Агент
    +7 (965) Показать номер
    Агентство
    Телус
    Посмотреть контакты
    м. Люблино ул. Краснодарская, 543 м2, Здание, ГАБ (ном. объекта: 6630) - Фото 1
    м. Люблино ул. Краснодарская, 543 м2, Здание, ГАБ (ном. объекта: 6630) - Фото 2
    м. Люблино ул. Краснодарская, 543 м2, Здание, ГАБ (ном. объекта: 6630) - Фото 3
    м. Люблино ул. Краснодарская, 543 м2, Здание, ГАБ (ном. объекта: 6630) - Фото 4
    м. Люблино ул. Краснодарская, 543 м2, Здание, ГАБ (ном. объекта: 6630) - Фото 5
    м. Люблино ул. Краснодарская, 543 м2, Здание, ГАБ (ном. объекта: 6630) - Фото 6
    м. Люблино ул. Краснодарская, 543 м2, Здание, ГАБ (ном. объекта: 6630) - Фото 7
    м. Люблино ул. Краснодарская, 543 м2, Здание, ГАБ (ном. объекта: 6630) - Фото 8
    общая площадь 543м², реализуемая площадь 543м²

    Готовый арендный бизнес. Одноэтажное здание общей площадью 543м2, расположен в 10 минутах от ст. м. Люблино. Здание свободного назначения полностью сдан в аренду. Арендаторы: сетевой продуктовый магазин "Пятерочка" и сетевой алкогольный магазин. Планировка...
    • 543 м²
    • 1 этаж
    130 000 000 Р
    Агент
    +7 (905) Показать номер
    Агентство
    Телус
    Посмотреть контакты
    м. Кутузовская, Кутузовский проспект 379,4 м2, Помещение (ном. ... - Фото 1
    м. Кутузовская, Кутузовский проспект 379,4 м2, Помещение (ном. ... - Фото 2
    м. Кутузовская, Кутузовский проспект 379,4 м2, Помещение (ном. ... - Фото 3
    м. Кутузовская, Кутузовский проспект 379,4 м2, Помещение (ном. ... - Фото 4
    м. Кутузовская, Кутузовский проспект 379,4 м2, Помещение (ном. ... - Фото 5
    м. Кутузовская, Кутузовский проспект 379,4 м2, Помещение (ном. ... - Фото 6
    м. Кутузовская, Кутузовский проспект 379,4 м2, Помещение (ном. ... - Фото 7
    м. Кутузовская, Кутузовский проспект 379,4 м2, Помещение (ном. ... - Фото 8
    м. Кутузовская, Кутузовский проспект 379,4 м2, Помещение (ном. ... - Фото 9
    м. Кутузовская, Кутузовский проспект 379,4 м2, Помещение (ном. ... - Фото 10
    м. Кутузовская, Кутузовский проспект 379,4 м2, Помещение (ном. ... - Фото 11
    м. Кутузовская, Кутузовский проспект 379,4 м2, Помещение (ном. ... - Фото 12
    м. Кутузовская, Кутузовский проспект 379,4 м2, Помещение (ном. ... - Фото 13
    м. Кутузовская, Кутузовский проспект 379,4 м2, Помещение (ном. ... - Фото 14
    общая площадь 379.4м², реализуемая площадь 379.4м²

    Торговое помещение на первой линии домов по Кутузовскому проспекту, раньше был Банк. Первый этаж 198.2 метра потолки 4.5 метра, подвал 181, 2 метра Объект №.
    • 379.4 м²
    • 1 этаж
    148 000 000 Р
    Агент
    +7 (965) Показать номер
    Агентство
    Телус
    Посмотреть контакты
    м. Печатники, ул. Гурьянова, 1201 м2, "Продажа торгового помещения" ... - Фото 1
    м. Печатники, ул. Гурьянова, 1201 м2, "Продажа торгового помещения" ... - Фото 2
    м. Печатники, ул. Гурьянова, 1201 м2, "Продажа торгового помещения" ... - Фото 3
    м. Печатники, ул. Гурьянова, 1201 м2, "Продажа торгового помещения" ... - Фото 4
    м. Печатники, ул. Гурьянова, 1201 м2, "Продажа торгового помещения" ... - Фото 5
    м. Печатники, ул. Гурьянова, 1201 м2, "Продажа торгового помещения" ... - Фото 6
    м. Печатники, ул. Гурьянова, 1201 м2, "Продажа торгового помещения" ... - Фото 7
    м. Печатники, ул. Гурьянова, 1201 м2, "Продажа торгового помещения" ... - Фото 8
    м. Печатники, ул. Гурьянова, 1201 м2, "Продажа торгового помещения" ... - Фото 9
    м. Печатники, ул. Гурьянова, 1201 м2, "Продажа торгового помещения" ... - Фото 10
    м. Печатники, ул. Гурьянова, 1201 м2, "Продажа торгового помещения" ... - Фото 11
    м. Печатники, ул. Гурьянова, 1201 м2, "Продажа торгового помещения" ... - Фото 12
    м. Печатники, ул. Гурьянова, 1201 м2, "Продажа торгового помещения" ... - Фото 13
    м. Печатники, ул. Гурьянова, 1201 м2, "Продажа торгового помещения" ... - Фото 14
    общая площадь 1201.4м², реализуемая площадь 1201.4м²

    Встроенно-пристроенное помещение в юго-восточном районе города Москвы общей площадью 1200 кв.м. Зона плотной жилой застройки, спальный район Печатники. Удалённость от метро не более 15 минут пешком иди 5-7 минут на общественном транспорте. Центральные...
    • 1 201.4 м²
    • 11 этажей
    150 000 000 Р
    Агент
    +7 (926) Показать номер
    Агентство
    Телус
    Посмотреть контакты

    Не нашли подходящего объявления?

    Оставьте заявку, и наши риэлторы подберут торговое помещение в районе Москвы

    (0)