Россия, Москва, Сосенское поселение, просп. Куприна, 7к1
23 976 239 Р 308 000 $ или 264 800

Информация об помещении

1
Этаж

Состояние и оснащение

Количество этажей
17
Развернуть
Агент
+7 (938) 656-74-88
Начать чат с агентом

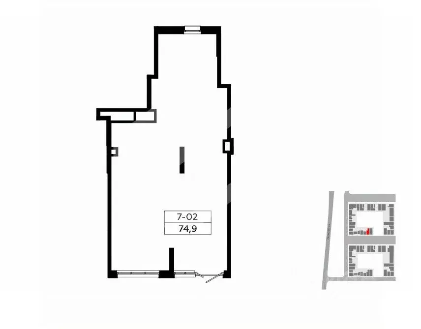
Торговая площадь в Москва Сосенское поселение, просп. Куприна, 7к1 (75 ...

1094701 . Предлагаем помещение свободного назначения формата Street Retail, площадью 74,9 кв. м, расположенное на первом этаже 17-этажного жилого дома в ЖК Бунинские кварталы . Корпус: 7.1. Без комиссии для покупателя. Преимущества объекта:-ЖК состоит из 31 корпусов переменной этажности (от 7 до 22 этажей);-25 минут пешком от станции метро Потапово ;-плотный жилой массив;-высокий автомобильный и пешеходный трафик;-отлично просматривается, находится в легком доступе для потенциальных клиентов;-гибкая планировка, позволяющая адаптировать пространство под различные нужды;-витринное остекление;-возможность размещения вывески;-наземная парковка. Технические параметры объекта:-отдельный вход;-электрическая мощность: 15 кВт;-высота потолков: 5 м. Срок сдачи - IV квартал 2025 г.Свяжитесь с нами для получения дополнительной информации

Читать полностью
    Позвонить Написать
    23 976 239 Р308 000 $ или 264 800
    Агент
    +7 (938) 656-74-88
    Начать чат с агентом
    Похожие предложения
    Торговая площадь в Москва Скандинавия жилой комплекс, 37.2.3 (57 м) - Фото 1
    Торговая площадь в Москва Скандинавия жилой комплекс, 37.2.3 (57 м) - Фото 2
    Лот 153890.Продается помещение свободного назначения в ЖК Скандинавия по адресу: Москва, НАО, улица Эдварда Грига, к. 37.2.3, площадью 57.4 м. ЖК Расположен в юго-западной части Москвы 9 км от МКАД и 1,7 км от ст. метро Потапово (2024 г.). Вдоль...
    • 1/18 эт.
    23 059 302 Р
    Агент
    +7 (985) Показать номер
    Посмотреть контакты
    Торговая площадь в Москва Скандинавия жилой комплекс, 37.2.3 (57 м) - Фото 1
    Торговая площадь в Москва Скандинавия жилой комплекс, 37.2.3 (57 м) - Фото 2
    Лот 148371.Продается помещение свободного назначения в ЖК Скандинавия по адресу: Москва, НАО, улица Эдварда Грига, к. 37.2.3, площадью 57.4 м. ЖК Расположен в юго-западной части Москвы 9 км от МКАД и 1,7 км от ст. метро Потапово (2024 г.). Вдоль...
    • 1/18 эт.
    23 059 302 Р
    Агент
    +7 (985) Показать номер
    Посмотреть контакты
    Торговая площадь в Москва Кокошкино дп, ул. Стожарова, 11 (86 м) - Фото 1
    Торговая площадь в Москва Кокошкино дп, ул. Стожарова, 11 (86 м) - Фото 2
    Арт.Продажа торговой площади 86.2мЖК Новое Внуковоулица Стожарова дом 11Локация:Густонаселенный район;в центре жилого массива.Расположение:Первая линия прогулочной зоны;Интенсивный пешеходный и автомобильный трафик;Хорошо просматривается со стороны проезжей...
    • 1/1 эт.
    24 500 000 Р
    Агент
    +7 (916) Показать номер
    Посмотреть контакты
    Торговая площадь в Москва ул. Лавочкина, 6 (57 м) - Фото 1
    Торговая площадь в Москва ул. Лавочкина, 6 (57 м) - Фото 2
    Продажа торгового помещения 56,5 м2 с арендатором пвз Wildberries на ул. Лавочкина, д. 6 (17 минут пешком от метро Коптево). 1 линия домов.Помещение 56,5 м2, располагается на 1 этаже, открытая планировка, отдельный вход с фасада, высота потолка 3 м,...
    • 1/11 эт.
    24 480 000 Р
    Агент
    +7 (916) Показать номер
    Посмотреть контакты
    Продажа торгового помещения, м. Бульвар Рокоссовского, Погонный проезд - Фото 1
    Продажа торгового помещения, м. Бульвар Рокоссовского, Погонный проезд - Фото 2
    Продажа торгового помещения, м. Бульвар Рокоссовского, Погонный проезд - Фото 3
    Продажа торгового помещения, м. Бульвар Рокоссовского, Погонный проезд - Фото 4
    Продажа торгового помещения, м. Бульвар Рокоссовского, Погонный проезд - Фото 5
    Продажа торгового помещения, м. Бульвар Рокоссовского, Погонный проезд - Фото 6
    Продажа торгового помещения, м. Бульвар Рокоссовского, Погонный проезд - Фото 7
    Продажа торгового помещения, м. Бульвар Рокоссовского, Погонный проезд - Фото 8
    Продажа торгового помещения, м. Бульвар Рокоссовского, Погонный проезд - Фото 9
    Продажа торгового помещения, м. Бульвар Рокоссовского, Погонный проезд - Фото 10
    Продажа торгового помещения, м. Бульвар Рокоссовского, Погонный проезд - Фото 11
    Продажа торгового помещения, м. Бульвар Рокоссовского, Погонный проезд - Фото 12
    Продажа торгового помещения, м. Бульвар Рокоссовского, Погонный проезд - Фото 13
    общая площадь 48.8м², реализуемая площадь 48.8м²

    Продажа торгового помещения с арендатором в плотном жилом массиве в Восточном округе Москвы. Станция метро Бульвар Рокоссовского - 10 минут пешком. Площадь помещения - 48,8 м2, 1-й - этаж, свободная планировка, отдельный вход с улицы, высота потолка...
    • 48.8 м²
    • 1/25 эт.
    24 000 000 Р
    Агент
    +7 (903) Показать номер
    Посмотреть контакты

    Не нашли подходящего объявления?

    Оставьте заявку, и наши риэлторы подберут торговое помещение в районе Москвы

    (0)