Россия, Москва, Сосенское поселение, просп. Куприна, 9к1
21 029 058 Р 270 200 $ или 232 300

Информация об помещении

1
Этаж

Состояние и оснащение

Количество этажей
19
Развернуть
Агент
+7 (938) 656-74-88
Начать чат с агентом

Торговая площадь в Москва Сосенское поселение, просп. Куприна, 9к1 (96 ...

1094755 . Предлагаем помещение свободного назначения формата Street Retail, площадью 95,8 кв. м, расположенное на первом этаже 19-этажного жилого дома в ЖК Бунинские кварталы . Корпус: 9.1. Без комиссии для покупателя. Преимущества объекта:-ЖК состоит из 31 корпусов переменной этажности (от 7 до 22 этажей);-15 минут на автомобиле от станции метро Потапово ;-плотный жилой массив;-высокий автомобильный и пешеходный трафик;-отлично просматривается, находится в легком доступе для потенциальных клиентов;-гибкая планировка, позволяющая адаптировать пространство под различные нужды;-витринное остекление;-возможность размещения вывески;-наземная парковка. Технические параметры объекта:-отдельный вход;-электрическая мощность: 19 кВт;-высота потолков: 5 м. Срок сдачи - IV квартал 2025 г.Свяжитесь с нами для получения дополнительной информации

Читать полностью
    Позвонить Написать
    21 029 058 Р270 200 $ или 232 300
    Агент
    +7 (938) 656-74-88
    Начать чат с агентом
    Похожие предложения
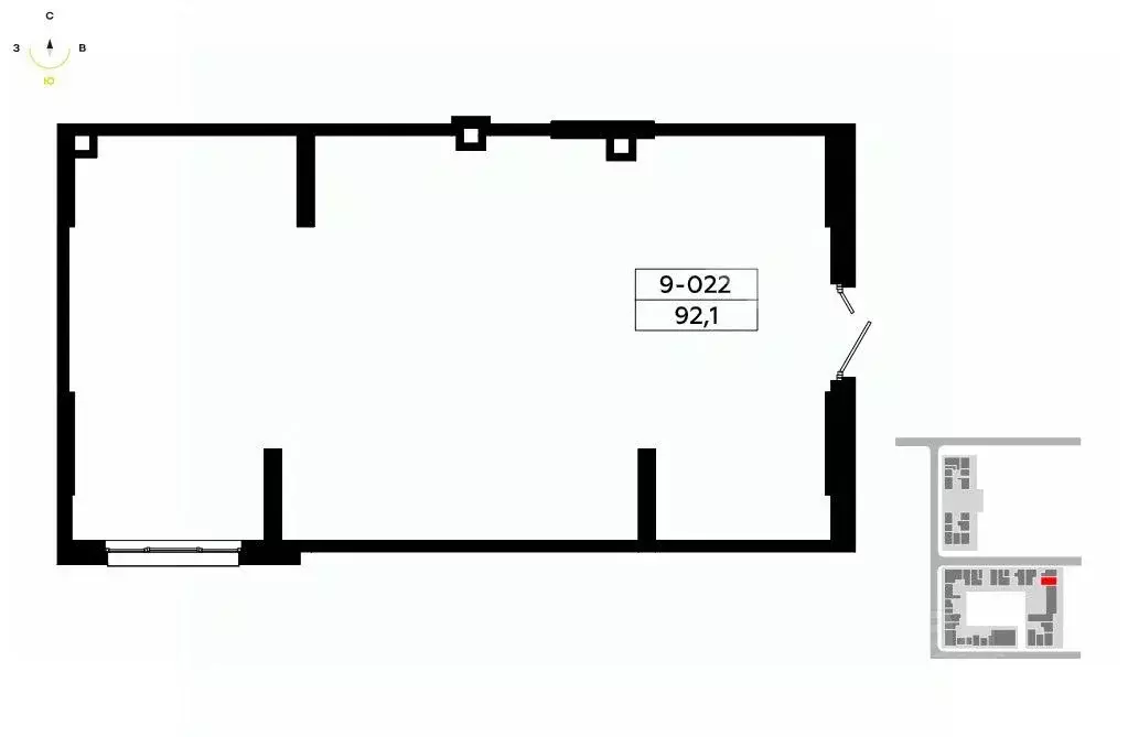
    Торговая площадь в Москва Сосенское поселение, просп. Куприна, 9к1 (92 ... - Фото 1
    Торговая площадь в Москва Сосенское поселение, просп. Куприна, 9к1 (92 ... - Фото 2
    1094734 . Предлагаем помещение свободного назначения формата Street Retail, площадью 92,1 кв. м, расположенное на первом этаже 19-этажного жилого дома в ЖК Бунинские кварталы . Корпус: 9.1. Без комиссии для покупателя. Преимущества объекта:-ЖК состоит...
    • 1/19 эт.
    21 937 299 Р
    Агент
    +7 (938) Показать номер
    Посмотреть контакты
    Торговая площадь в Москва Дзен-кварталы жилой комплекс, 6.1.1 (38 м) - Фото 1
    Торговая площадь в Москва Дзен-кварталы жилой комплекс, 6.1.1 (38 м) - Фото 2
    БЕЗ КОМИССИИ Элитный жилой дом. Продаётся блок с санузлом на первом этаже площадью 38 кв.м с отдельным входом с улицы. Новое помещение под чистовую отделку (Shell Core). Электрическая мощность 12 кВт.УСН. ЖК Дзен-кварталы, 6.1.1, метро Бунинская аллея....
    • 1/18 эт.
    21 417 180 Р
    Агент
    +7 (915) Показать номер
    Посмотреть контакты
    Продажа торгового помещения, м. Таганская, Александра Солженицына ул - Фото 1
    Продажа торгового помещения, м. Таганская, Александра Солженицына ул - Фото 2
    Продажа торгового помещения, м. Таганская, Александра Солженицына ул - Фото 3
    Продажа торгового помещения, м. Таганская, Александра Солженицына ул - Фото 4
    Продажа торгового помещения, м. Таганская, Александра Солженицына ул - Фото 5
    Продажа торгового помещения, м. Таганская, Александра Солженицына ул - Фото 6
    Продажа торгового помещения, м. Таганская, Александра Солженицына ул - Фото 7
    Продажа торгового помещения, м. Таганская, Александра Солженицына ул - Фото 8
    Продажа торгового помещения, м. Таганская, Александра Солженицына ул - Фото 9
    общая площадь 44.7м², реализуемая площадь 44.7м²

    Продажа торгового помещения в историческом центре Москвы. Площадь 44,68 м2 (блок на плане Р-1.4), 1-й этаж 5-ти этажного клубного БЦ в ЦАО, район Таганский, в 10 минутах пешком от метро Таганская и Марксистская. Помещение расположено в торговой галерее...
    • 44.7 м²
    • 1/5 эт.
    21 414 740 Р
    Агент
    +7 (903) Показать номер
    Посмотреть контакты
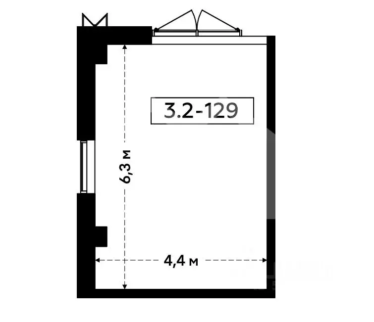
    Торговая площадь в Москва БК Прокшино тер., 3 (27 м) - Фото 1
    Торговая площадь в Москва БК Прокшино тер., 3 (27 м) - Фото 2
    1102322 . Предлагаем помещение свободного назначения в бизнес-квартале Прокшино , площадью 27.4 кв. м, расположенное на первом этаже 12-этажного жилого дома. Корпус: 3.2. Без комиссии для покупателя.Преимущества объекта:-первая линия Филатовского шоссе;-офисный...
    • 1/12 эт.
    20 305 592 Р
    Агент
    +7 (938) Показать номер
    Посмотреть контакты
    Продажа торгового помещения, м. Деловой центр, Пресненская наб - Фото 1
    Продажа торгового помещения, м. Деловой центр, Пресненская наб - Фото 2
    Продажа торгового помещения, м. Деловой центр, Пресненская наб - Фото 3
    Продажа торгового помещения, м. Деловой центр, Пресненская наб - Фото 4
    Продажа торгового помещения, м. Деловой центр, Пресненская наб - Фото 5
    Продажа торгового помещения, м. Деловой центр, Пресненская наб - Фото 6
    Продажа торгового помещения, м. Деловой центр, Пресненская наб - Фото 7
    Продажа торгового помещения, м. Деловой центр, Пресненская наб - Фото 8
    общая площадь 11.7м², реализуемая площадь 11.7м²

    От собственника. Торговое помещение площадью 11,7 масположено на -1 этаже, в торговой галерее Башни Федерация. Высота потолков 3 м, помещение расположено рядом с входом/выходом в Афимолл. Выделенная мощность 5 кВт. Зона расположения - блок на плане №...
    • 11.7 м²
    • -1/97 эт.
    21 900 000 Р
    Агент
    +7 (903) Показать номер
    Посмотреть контакты

    Не нашли подходящего объявления?

    Оставьте заявку, и наши риэлторы подберут торговое помещение в районе Москвы

    (0)