Россия, Москва, ул. Андреевка, 1с2
120 000 000 Р 1 512 500 $ или 1 291 200

Информация об помещении

1
Этаж

Состояние и оснащение

Количество этажей
2
Развернуть
Агент
+7 (938) 656-74-88
Начать чат с агентом

Торговая площадь в Москва, Москва, Зеленоград ул. Андреевка, 1с2 (410 ...

715436 . Предлагаем помещение свободного назначения с арендатором Смешные цены в торговом центре, площадью 410 кв. м, расположенное на первом этаже 2-этажного административного здания. Без комиссии для покупателя.Преимущества объекта:-первая линия ул. Андреевка;-20 минут пешком от станции МЦД-2 Зеленоград-Крюково ;-удобная транспортная доступность: 890 м до Георгиевского шоссе, 3 км до Кутузовского шоссе, 4 км до Пятницкого шоссе;-плотный жилой массив;-развитая инфраструктура района;-по соседству есть супермаркет Пятерочка , а также Детский мир ;-высокий автомобильный и пешеходный трафик;-отлично просматривается, находится в легком доступе для потенциальных клиентов;-гибкая планировка, позволяющая адаптировать пространство под различные нужды;-витринное остекление;-возможность размещения вывески;-наземная парковка;-рядом остановка общественного транспорта;-ЗУ в общедолевой собственности.Технические параметры объекта:-отдельный вход с улицы.-электрическая мощность: 100 кВт.-высота потолков: 4 м.Информация об арендаторе: -арендатор: Смешные цены.-прибыль:уб/мес.-окупаемость: 7.9 лет.-доходность: 12.6 Свяжитесь с нами для получения дополнительной информации

Читать полностью
    Позвонить Написать
    120 000 000 Р1 512 500 $ или 1 291 200
    Агент
    +7 (938) 656-74-88
    Начать чат с агентом
    Похожие предложения
    Торговая площадь в Москва Профсоюзная ул., 5/9 (212 м) - Фото 1
    Торговая площадь в Москва Профсоюзная ул., 5/9 (212 м) - Фото 2
    Жилой дом Профсоюзная, 5/9 класса BПлощадь: 212 м2Стоимость за 1 м2:. включая НДССтоимость площади:. включая НДССистема налогообложения: НДСГотовность: готово к въездуЭтаж: 1Наличие с/у: , ВнутриСтатус: свободенОтдельный входХарактеристики зданияАдрес:...
    • 1/8 эт.
    114 480 000 Р
    Агент
    +7 (911) Показать номер
    Посмотреть контакты
    Торговая площадь в Москва Новинский бул., 1/2 (147 м) - Фото 1
    Торговая площадь в Москва Новинский бул., 1/2 (147 м) - Фото 2
    700535 . Предлагаем помещение свободного назначения формата street-retail с арендатором сетевой Салон красоты MON PONEY , площадью 147 кв. м, расположенное на первом этаже 5-этажного жилого дома. Без комиссии для покупателя.Преимущества объекта:-первая...
    • 1/5 эт.
    125 000 000 Р
    Агент
    +7 (938) Показать номер
    Посмотреть контакты
    Торговая площадь в Москва Братиславская ул., 27К1 (589 м) - Фото 1
    Торговая площадь в Москва Братиславская ул., 27К1 (589 м) - Фото 2
    676835 . Предлагаем торговое помещение с арендатором Бильярдный клуб, площадью 589,1 кв. м., расположенное на втором этаже жилого дома. Без комиссии для покупателя.Преимущества объекта:-первая линия домов;-пешая доступность от станции метро Братиславская...
    • 2/17 эт.
    120 000 000 Р
    Агент
    +7 (938) Показать номер
    Посмотреть контакты
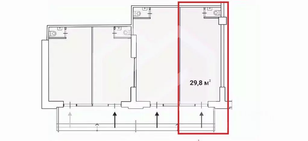
    Торговая площадь в Москва Кожевническая ул., 4 (30 м) - Фото 1
    Торговая площадь в Москва Кожевническая ул., 4 (30 м) - Фото 2
    636116 . Предлагаем торговое помещение формата Street Retail с сетевым арендатором - магазин косметики Natura Siberica , площадью 29,8 кв. м., расположенное на первом этаже бизнес-центра. Без комиссии для покупателя. Преимущества объекта:-2 минуты пешком...
    • 1/7 эт.
    126 150 000 Р
    Агент
    +7 (938) Показать номер
    Посмотреть контакты
    Торговая площадь в Москва Профсоюзная ул., 5/9 (212 м) - Фото 1
    Торговая площадь в Москва Профсоюзная ул., 5/9 (212 м) - Фото 2
    1094557 . Предлагаем к приобретению помещение свободного назначения формата Street Retail, площадью 212 кв. м., расположенное на первом этаже и в подвале 8-этажного жилого дома. Без комиссии для покупателя. Преимущества объекта: -первая линия;-3 минуты...
    • -1/8 эт.
    114 480 000 Р
    Агент
    +7 (938) Показать номер
    Посмотреть контакты

    Не нашли подходящего объявления?

    Оставьте заявку, и наши риэлторы подберут торговое помещение в районе Москвы

    (0)