225 000 000 Р 2 836 800 $ или 2 422 900

Информация об помещении

1
Этаж

Состояние и оснащение

Количество этажей
1
Развернуть
Агент
+7 (495) 764-67-18
Начать чат с агентом

Торговая площадь (452 м)

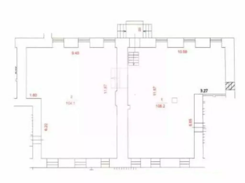
Лот №994748 Предложение от Собственника Напишите нам в Ватсап, чтобы получить ПОДРОБНУЮ ПРЕЗЕНТАЦИЮ С ПЛАНИРОВКОЙ И ФОТОГРАФИЯМИ Продам ОСЗ на первой линии Амундсена - окупаемость 9.9 лет Описание объекта:- Площадь: 451,6 кв.м.- 1-й этаж отдельно стоящего нежилого здания. - Расположение: первая линия домов, 7 минут от метро Свиблово.- Планировка: смешанная - 3 отдельных больших помещения.- Фасад: панорамное остекление.- Входы: 3 отдельных входа, зона разгрузки.- Алкогольная лицензия: есть.Арендаторы:- Даркстор Самокат - 481.500 (+ндс)- м-н Ярче - 590.000(+ндс)- Алкомаркет Ароматный мир- 350,000(+ндс)- Производство обои- 430.000- Постомат - 7.000- Сампрачка - 22.000- Арендаторы в основной на долгосрочных договорах с пролонгацией.- Коммунальные платежи:на арендаторах.- Индексация: 5 ежегодно.- Земельный участок в Аренде у города с правом пролонгации.- Здание стационарное, сносу не подлежит (выкуп у города).Финансовые показатели:- Сумма продажи.- МАП (минимальный арендный платеж): в месяц.- Годовой арендный платеж (ГАБ): в год.- Окупаемость:9,9 лет года без учета индексации.Локация и инфраструктура:- Первая линия жилых домов.- Район с устоявшимся жилым массивом - многоэтажные дома).- Высокий пешеходный трафик.- Близость к метро (7 минут пешком).Преимущества:1. Удобное расположение: Вблизи метро, что обеспечивает хорошую проходимость и доступность для клиентов.2. Многофункциональное использование: Три отдельных помещения позволяют разместить различные виды бизнеса.3. Панорамное остекление: Привлекает внимание и создает современный внешний вид.4. Долгосрочные арендаторы: Стабильный доход и предсказуемость финансовых потоков.5. Земельный участок: Долгосрочная аренда с возможностью продления, что обеспечивает стабильность владения.6. Инфраструктура: Наличие зоны разгрузки упрощает логистику для арендаторов.7. Для ЭДС ной компании срок окупаемости будет еще меньше.Чтобы получить ПОДРОБНУЮ ПРЕЗЕНТАЦИЮ С ПЛАНИРОВКОЙ И ФОТОГРАФИЯМИ на этот объект, напишите нам в Ватсап. Высылаем в течение 15 минут по запросу Конт. лицо: Оксана Станиславовна, доб. 244, ЛОТ №994748

Читать полностью
    Позвонить Написать
    225 000 000 Р2 836 800 $ или 2 422 900
    Агент
    +7 (495) 764-67-18
    Начать чат с агентом
    Похожие предложения
    Торговая площадь в Москва ул. Амундсена, 7С2 (452 м) - Фото 1
    Торговая площадь в Москва ул. Амундсена, 7С2 (452 м) - Фото 2
    Лот 994748 Предложение от Собственника Продам ОСЗ на первой линии Амундсена - окупаемость 9.9 лет Описание объекта:- Площадь: 451,6 кв.м.- 1-й этаж отдельно стоящего нежилого здания. - Расположение: первая линия домов, 7 минут от метро Свиблово.-...
    • 1/1 эт.
    225 000 000 Р
    Агент
    +7 (986) Показать номер
    Посмотреть контакты
    Торговая площадь в Москва Лазаревский пер., 2 (719 м) - Фото 1
    Торговая площадь в Москва Лазаревский пер., 2 (719 м) - Фото 2
    930336 . Предлагаем к приобретению торговое помещение формата Street Retail, площадью 718,7 кв. м., расположенное на первом этаже и в подвале жилого дома. Без комиссии для покупателя.Преимущества объекта: -пешая доступность от станции метро Марьина Роща...
    • 1/9 эт.
    225 000 000 Р
    Агент
    +7 (938) Показать номер
    Посмотреть контакты
    Торговая площадь в Москва Полковая ул., 1С27 (233 м) - Фото 1
    Торговая площадь в Москва Полковая ул., 1С27 (233 м) - Фото 2
    БЕЗ КОМИССИИ Элитный жилой дом. Продаётся помещение свободной планировки на первом этаже площадью 233 кв.м с отдельным входом с улицы. Новое помещение под чистовую отделку (Shell Core). Полковая улица, 1с27, 14 минут пешком от метро Марьина роща. ЛОТ...
    • 1/11 эт.
    225 174 695 Р
    Агент
    +7 (915) Показать номер
    Посмотреть контакты
    Торговая площадь в Москва Страстной бул., 4С3 (212 м) - Фото 1
    Торговая площадь в Москва Страстной бул., 4С3 (212 м) - Фото 2
    664023 . Предлагаем помещение свободного назначения формата Street Retail с арендатором бар Север , площадью 212,3 кв. м., расположенное на первом этаже административного здания. Без комиссии для покупателя.Преимущества объекта:-первая линия Страстного...
    • 1/4 эт.
    230 000 000 Р
    Агент
    +7 (938) Показать номер
    Посмотреть контакты
    Торговая площадь в Москва Домодедовская ул., к1Авл34 (1135 м) - Фото 1
    Торговая площадь в Москва Домодедовская ул., к1Авл34 (1135 м) - Фото 2
    657295 . Предлагаем торговое помещение формата Street Retail с якорными арендаторами Магнит, Магнит Косметик, субаренда. Ozon, WildBerries, Хмель и Солод, Салон красоты - Барбершоп, Сигареты, площадью 1 135 кв. м., расположенное на первом этаже жилого...
    • 1/12 эт.
    240 000 000 Р
    Агент
    +7 (938) Показать номер
    Посмотреть контакты

    Не нашли подходящего объявления?

    Оставьте заявку, и наши риэлторы подберут торговое помещение в районе Москвы

    (0)