28 980 000 Р 357 700 $ или 308 500

Информация об помещении

1
Этаж

Состояние и оснащение

Количество этажей
9
Развернуть
Агент
+7 (915) 294-57-95
Начать чат с агентом

Торговая площадь в Москва Старокалужское ш., 62 (104 м)

Предложение на продажу 57959.Предлагается в продажу торговое помещение в бизнес - центре Vallex по адресу Старокалужское шоссе, 62. Общая площадь помещения 103.5 м2 находится на 1 этаже, высота потолков составляет 3,4 м, электрическая мощность 35 кВт.. . На плане под 5. . Бизнес-центр расположен в р-не Коньково (ЮЗАО) в 30 м от входа в метро Воронцовская . . Сохраняем профессиональное управление зданием и инженерными системами. Парковка наземная, круглосуточно охраняемая с пропускной системой. Внутренняя инфраструктура комплекса:. медицинский центр. салон красоты. столовая и пр.Торговая недвижимость, Street Retail. 1 линия домов. Витрины. Место для рекламы. Проходное и проездное место.Без комиссии.

Читать полностью
    Позвонить Написать
    28 980 000 Р357 700 $ или 308 500
    Агент
    +7 (915) 294-57-95
    Начать чат с агентом
    Похожие предложения
    Торговая площадь в Москва Старокалужское ш., 64 (34 м) - Фото 1
    Торговая площадь в Москва Старокалужское ш., 64 (34 м) - Фото 2
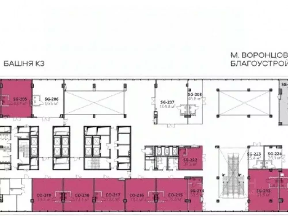
    Предложение на продажу 62147.Продажа street retail помещения 33.5 м2 на 2 этаже в STONE Калужская. Башня К3. . . STONE Калужская — офисный квартал на выходе из м. Калужская с высоким инвестиционным потенциалом. Три офисные башни с торговой галереей...
    • 2/23 эт.
    29 212 000 Р
    Агент
    +7 (915) Показать номер
    Посмотреть контакты
    Торговая площадь в Москва ул. Академика Семенихина, 2 (58 м) - Фото 1
    Торговая площадь в Москва ул. Академика Семенихина, 2 (58 м) - Фото 2
    Цена указана с учётом скидки 15 . Выгодный актив: 50 средний рост стоимости за период строительства. На проекте полностью завершены монолитные работы.Возможность возврата ндс после покупки.Продаётся помещение площадью 57.80 кв. м в Level work Воронцовская...
    • 8/23 эт.
    29 742 760 Р
    Агент
    +7 (916) Показать номер
    Посмотреть контакты
    Продажа торгового помещения, м. Рязанский проспект, ул. ... - Фото 1
    Продажа торгового помещения, м. Рязанский проспект, ул. ... - Фото 2
    Продажа торгового помещения, м. Рязанский проспект, ул. ... - Фото 3
    Продажа торгового помещения, м. Рязанский проспект, ул. ... - Фото 4
    Продажа торгового помещения, м. Рязанский проспект, ул. ... - Фото 5
    общая площадь 24м², реализуемая площадь 24м²

    Продажа торгового помещения на выходе из метро Рязанский проспект, менее 1 минуты пешком. Помещение общей площадью 24 кв.м (блок 11 на плане) расположено на 1-м этаже жилого 12-ти этажного дома. Интенсивный пешеходный поток. Развитая инфраструктура, крупный...
    • 24 м²
    • 1/12 эт.
    30 000 000 Р
    Агент
    +7 (903) Показать номер
    Посмотреть контакты
    Продажа торгового помещения, 6-я Радиальная улица - Фото 1
    Продажа торгового помещения, 6-я Радиальная улица - Фото 2
    Продажа торгового помещения, 6-я Радиальная улица - Фото 3
    Продажа торгового помещения, 6-я Радиальная улица - Фото 4
    Продажа торгового помещения, 6-я Радиальная улица - Фото 5
    Продажа торгового помещения, 6-я Радиальная улица - Фото 6
    Продажа торгового помещения, 6-я Радиальная улица - Фото 7
    Продажа торгового помещения, 6-я Радиальная улица - Фото 8
    общая площадь 115.1м², реализуемая площадь 115.1м²

    . Нежилое помещение, 115,1 м | ЮАО, р-н Бирюлево Восточное, 6-я Радиальная ул., д. 3, корп. 11, этаж 1, пом. 9Н | Метро: Царицыно (пешком 25 мин., транспортом 23 мин., расстояние 1.33 км) Характеристики: Функциональное назначение: Свободное Тип входа:...
    • 115.1 м²
    • 1/25 эт.
    28 673 000 Р
    PRO
    +7 (922) Показать номер
    Посмотреть контакты
    Продажа торгового помещения, ул. Загорьевская - Фото 1
    Продажа торгового помещения, ул. Загорьевская - Фото 2
    Продажа торгового помещения, ул. Загорьевская - Фото 3
    Продажа торгового помещения, ул. Загорьевская - Фото 4
    Продажа торгового помещения, ул. Загорьевская - Фото 5
    Продажа торгового помещения, ул. Загорьевская - Фото 6
    Продажа торгового помещения, ул. Загорьевская - Фото 7
    Продажа торгового помещения, ул. Загорьевская - Фото 8
    общая площадь 144.2м², реализуемая площадь 144.2м²

    . Нежилое помещение, 144,2 м | ЮАО, Загорьевская ул., д. 8, этаж 1, пом. 1Н | Метро: Улица Академика Янгеля (пешком 74 мин., транспортом 47 мин., расстояние 4.94 км) Характеристики: Функциональное назначение: Свободное Тип входа: Отдельный
    • 144.2 м²
    • 1/19 эт.
    28 510 000 Р
    PRO
    +7 (922) Показать номер
    Посмотреть контакты

    Не нашли подходящего объявления?

    Оставьте заявку, и наши риэлторы подберут торговое помещение в районе Москвы

    (0)