Россия, Москва, д. Толстопальцево, ул. Советская, 1с1
725 000 000 Р 9 557 900 $ или 8 122 700

Информация об помещении

1
Этаж

Состояние и оснащение

Количество этажей
2
Развернуть
Агент
+7 (915) 374-57-90
Начать чат с агентом

Склад в Москва д. Толстопальцево, ул. Советская, 1с1 (4907 м)

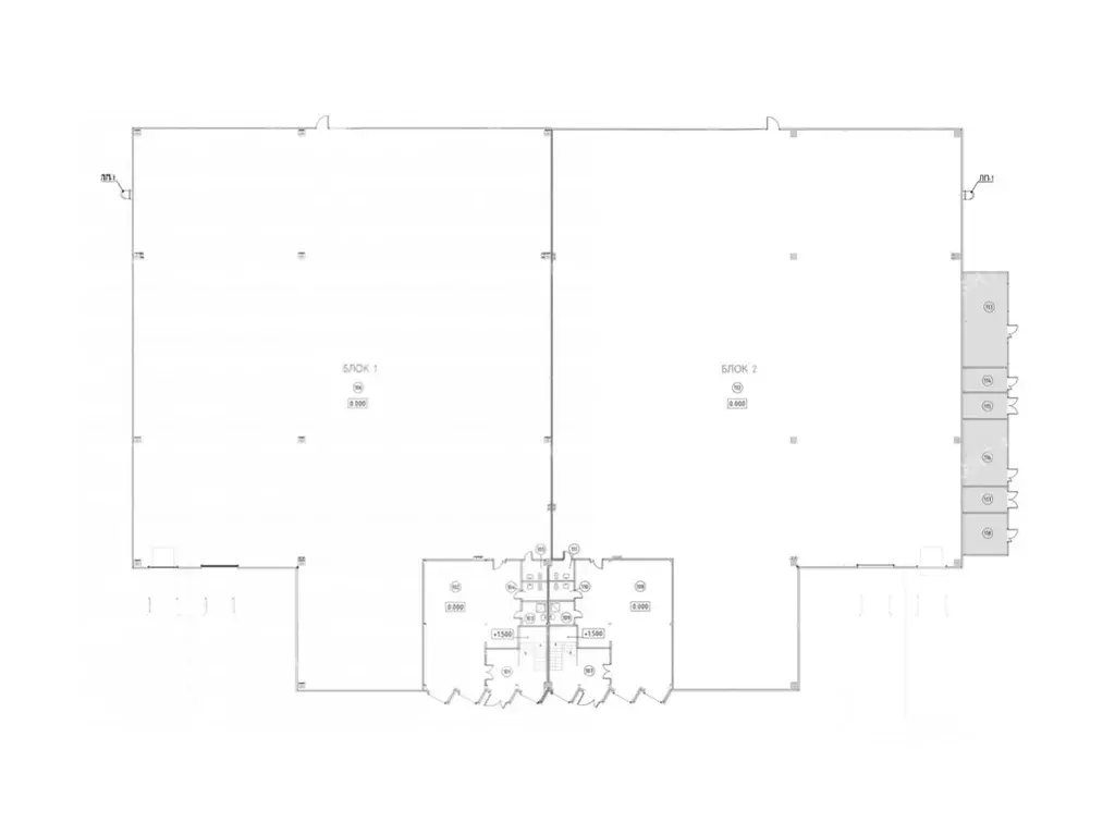
Арт.Промышленный склад 4907 м2 с удобной транспортной доступностью с выездом на Киевское шоссе, и прочие транспортные артерии.Есть возможность приобретения меньшей площади .Материал стен: СППС панелиНагрузка на пол 5 т/м2 (антипылевое покрытие)Большая площадь остекления, также имеется офисные помещения Колонны железобетонные, шаг 12х18 мРасстояние от пола до ферм 8 мПросторная зона разгрузкиВ каждом блоке — погрузочные доки на уровне 1,2 мот земли или ворота на уровне 0 м.Противопожарная сигнализация, пожарные гидранты, система АУТП.Ввод в эксплуатацию запланирован на 12.2026г Возможна продажа в рассрочку.

Читать полностью
    Позвонить Написать
    725 000 000 Р9 557 900 $ или 8 122 700
    Агент
    +7 (915) 374-57-90
    Начать чат с агентом
    Похожие предложения
    Склад в Московская область, Подольск городской округ, д. Большое ... - Фото 1
    Склад в Московская область, Подольск городской округ, д. Большое ... - Фото 2
    Отапливаемый склад на продажу от собственника без комиссии. Класс А в формате Light Industrial. Объявление актуально. 28 км от МКАД. Никаких скрытых платежей. Открыты к диалогу по условиям продажи. ID объекта 4387. Добавьте в избранное, чтобы не потерять...
    • 1/1 эт.
    731 025 000 Р
    Агент
    +7 (923) Показать номер
    Посмотреть контакты
    Склад в Московская область, Наро-Фоминский городской округ, д. Котово  ... - Фото 1
    Склад в Московская область, Наро-Фоминский городской округ, д. Котово  ... - Фото 2
    1100076. Предлагается производственная база (битумохранилище) общей площадью 82 174 кв. м. в Наро-Фоминске.Преимущества:30 км от ЦКАД, 60 км от МКАД.Удобный прямой выезд на Киевское шоссе в 2 км.Рядом остановки общественного транспорта.Технологические...
    • 1/1 эт.
    731 520 426 Р
    Агент
    +7 (938) Показать номер
    Посмотреть контакты
    Склад в Московская область, Ногинск Богородский городской округ, ул. ... - Фото 1
    Склад в Московская область, Ногинск Богородский городской округ, ул. ... - Фото 2
    Производственно-складской комплекс И.Волга Парк класса AПлощадь: 6 000 м2Стоимость за 1 м2:. включая НДССтоимость площади:. включая НДССистема налогообложения: НДСГотовность: готово к въездуЭтаж: 1Планировка: открытаяНаличие с/у: , ВнутриСтатус: свободенВысота...
    • 1/2 эт.
    732 000 000 Р
    Агент
    +7 (911) Показать номер
    Посмотреть контакты
    Склад в Московская область, Высоковск Клин городской округ, ул. ... - Фото 1
    Склад в Московская область, Высоковск Клин городской округ, ул. ... - Фото 2
    Электричество: 75 кВт на одно здание (возможно увеличение).Центральное водоснабжениеЦентральное водоотведениеГаз (автономная котельная), мощность 406,604м/чВозможный температурный режим: сухой/ холодильныйВысота потолков —9 м.Антипылевые топпинговые полы...
    • 1/1 эт.
    720 000 000 Р
    Агент
    +7 (916) Показать номер
    Посмотреть контакты
    Склад в Московская область, Солнечногорск городской округ, ... - Фото 1
    Склад в Московская область, Солнечногорск городской округ, ... - Фото 2
    Складское помещение 4 347.8 кв. м в ICPARK Есипово . Прямая продажа, без комиссии.Направление: Северо-Запад. Шоссе: Ленинградское. Округ: Московская область. Расстояние от МКАД: 32 км. Характеристики:- Класс: A; - Ворота: Доки; - Тип склада: Light Industrial;...
    • 1/1 эт.
    738 990 041 Р
    Агент
    +7 (915) Показать номер
    Посмотреть контакты

    Не нашли подходящего объявления?

    Оставьте заявку, и наши риэлторы подберут склад в районе Москвы

    (0)