525 000 000 Р 6 471 300 $ или 5 520 600

Информация об помещении

1
Этаж

Состояние и оснащение

Количество этажей
1
Развернуть
Агент
+7 (915) 164-56-43
Начать чат с агентом

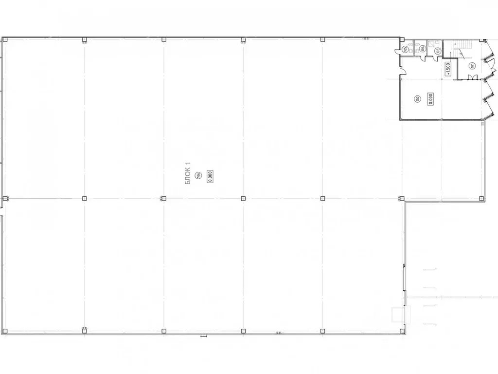
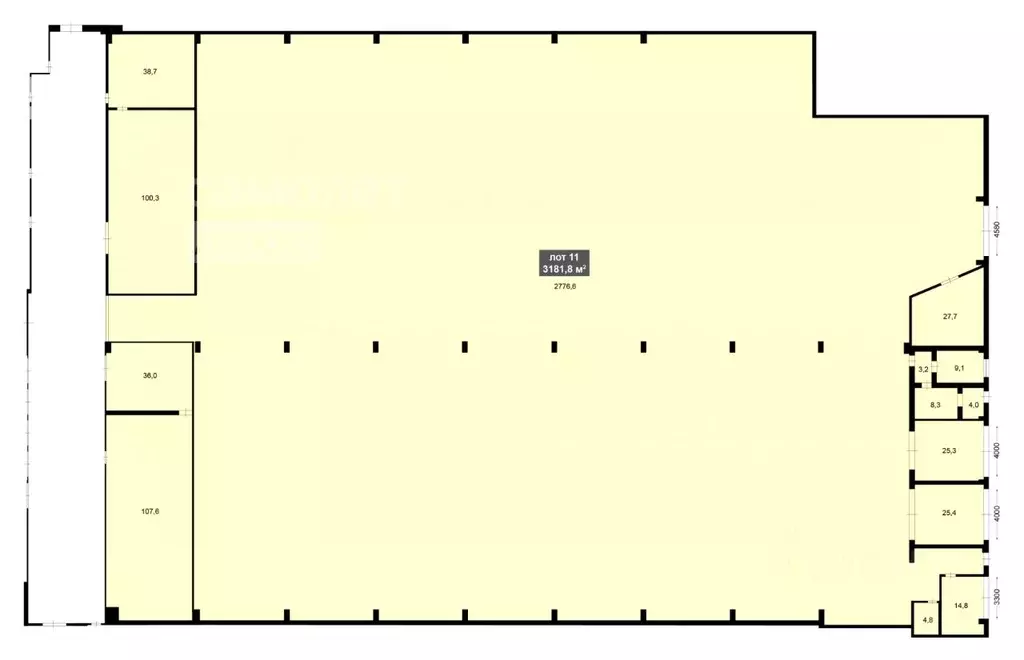
Склад в Москва Электродная ул., 2с12 (3182 м)

Предлагается в покупку нежилое помещение, склад общей площадью 3181.8 м2 по адресу: шоссе Энтузиастов, 2 стр. 12, рядом с северо-восточной хордой, связывающей три округа Москвы: север, восток и юго-восток, в пешей доступности от станции метро шоссе Энтузиастов.Склад располагается в офисно-складском комплексе в престижном районепервый этажпотолки от 11 до 12 мвъезд внутрь помещения для большегрузных машин и длинномеровдоступ 24/7теплый склад с антипылевыми поламисклад действующий, есть арендаторы. наземная парковка.близость к основным транспортным развязкам.шаговая доступность от метровозможность добраться без светофоров в любой район городацентральные коммуникациикруглосуточное наблюдение и охранаПомещения свободного назначения подходят для складирования, а также под производство. Общая площадь и размеры обсуждаются индивидуально. В наличии мощная электросеть — 4000 кВт, что позволяет подключать современное оборудование.Также есть городская канализация и все необходимые коммуникации, что обеспечивает комфортное и эффективное использование пространства. Идеальное решение для компаний, ищущих удобное и оснащённое помещение недалеко от транспортных магистралей.Есть возможность приобретения помещения от 800 м2 (помещение 3 на плане).Земельный участок 24115 м2 в аренде на 25 лет до 2030 года с последующей пролонгацией.Продажа с НДС.Быстрый выход на сделку. Готовы предложить юридическое оформление и сопровождение сделки.Звоните, записывайтесь на показ.Рады ответить на ваши вопросы с 9:00 до 21:00 часа.Арт.

Читать полностью
    Позвонить Написать
    525 000 000 Р6 471 300 $ или 5 520 600
    Агент
    +7 (915) 164-56-43
    Начать чат с агентом
    Похожие предложения
    Склад в Москва Алтуфьевское ш., 27АС2 (1912 м) - Фото 1
    Склад в Москва Алтуфьевское ш., 27АС2 (1912 м) - Фото 2
    Предложение на продажу 61420.Продажа складского помещения на 1 этаже, площадью 1911.7 м2 в многоэтажном производственном здании формата Лайт Индастриал в AFI ПРОМ Алтуфьево. . Здание состоит из автономных коммерческих блоков (юнитов), которые можно...
    • 1/8 эт.
    535 276 000 Р
    Агент
    +7 (915) Показать номер
    Посмотреть контакты
    Склад в Московская область, Ногинск Богородский городской округ, ул. ... - Фото 1
    Склад в Московская область, Ногинск Богородский городской округ, ул. ... - Фото 2
    Отапливаемый склад на продажу от собственника без комиссии. Класс А. Объявление актуально. 45 км от МКАД. Никаких скрытых платежей. Открыты к диалогу по условиям продажи. ID объекта 3617. Добавьте в избранное, чтобы не потерять Площадь: 4 392 кв. мСклад:...
    • 1/1 эт.
    527 040 000 Р
    Агент
    +7 (916) Показать номер
    Посмотреть контакты
    Склад в Ленинградская область, Всеволожский район, Муринское городское ... - Фото 1
    Склад в Ленинградская область, Всеволожский район, Муринское городское ... - Фото 2
    Складское помещение 3 839 кв. м в ПСК Афонская от собственника. Объект на стадии активного строительства, готовность ко въезду уточняется по запросу. Направление: Северо-Восток. Шоссе: Токсовское. Расстояние от КАД: 5 км. Характеристики:- Класс: A;...
    • 1/1 эт.
    529 782 000 Р
    Агент
    +7 (981) Показать номер
    Посмотреть контакты
    Склад в Московская область, Ленинский городской округ, Булатниковское ... - Фото 1
    Склад в Московская область, Ленинский городской округ, Булатниковское ... - Фото 2
    Складское помещение 3 140.5 кв. м в ICPARK Титан от собственника. Объект на стадии активного строительства, готовность ко въезду уточняется по запросу. Направление: Юг. Шоссе: Симферопольское, Трасса М4 Дон. Расстояние от МКАД: 5 км. Характеристики:-...
    • 1/1 эт.
    533 881 600 Р
    Агент
    +7 (915) Показать номер
    Посмотреть контакты
    Склад в Московская область, Ленинский городской округ, Булатниковское ... - Фото 1
    Склад в Московская область, Ленинский городской округ, Булатниковское ... - Фото 2
    Складское помещение 3 140.5 кв. м в ICPARK Титан от собственника. Объект на стадии активного строительства, готовность ко въезду уточняется по запросу. Направление: Юг. Шоссе: Симферопольское, Трасса М4 Дон. Расстояние от МКАД: 5 км. Характеристики:-...
    • 1/1 эт.
    533 881 600 Р
    Агент
    +7 (915) Показать номер
    Посмотреть контакты

    Не нашли подходящего объявления?

    Оставьте заявку, и наши риэлторы подберут склад в районе Москвы

    (0)