82 790 500 Р 1 020 300 $ или 886 200

Информация об помещении

141.4 м2
Площадь
1
Этаж

Состояние и оснащение

Общая площадь складского комплекса, м2
141.4
Развернуть
Агент
Наталья
+7 (903) 170-18-68
Начать чат с агентом

Продажа ПСН, м. Озёрная, ул. Озерная

Продажа помещения свободного назначения в ЖК бизнес-класса в районе Очаково-Матвеевское (ЗАО), в 2-х минутах пешком от метро Озерная. Площадь помещения 141,4 м2, планировка открытая (блок № 5н). Помещение расположено на 1-м этаже, есть собственный отдельный вход с улицы, все коммуникации: системы ГВС и ХВС, вентиляция, противопожарные системы оповещения и пожаротушения. Есть 2 мокрые точки. Высота потолков 4,25 м, панорамное витринное остекление, много витрин, помещение выходит витринами на 2 стороны здания. Помещение без отделки.
Помещение расположено в 9-ти этажной секции № 8 корпуса Байкал, с отличной визуализацией для рекламы – на 2-х сторонах здания. Возможное использование помещения: торговое помещение, кондитерская, кулинария, пункт выдачи заказов, сервис. Готовность – 2 квартал 2026 года.
ЖК "Страна.Озерная" - это жилой комплекс с квартирами, состоит из 2-х корпусов: Дом Байкал и Дом Селигер, из 9 секций переменной этажности – от 9 до 30 этажей. Дома образуют внутренний двор, внутренняя территория благоустроена, есть детские и спортивные площадки, зона для занятий йогой и настольным теннисом. Парковка подземная на 367 м/м. Поблизости расположено несколько зон отдыха: ландшафтный заказник «Долина реки Очаковки» (Очаковский парк), Парк Школьников, Парк Олимпийской деревни, Тропарёвский лес, Воробьёвы горы.
Объект № 551621Номер объекта: 5/551621/310

Читать полностью

    Для того, чтобы купить ПСН площадью 141 кв. метр по адресу: ЗАО, Очаково-Матвеевское, м. Озёрная, ул. Озерная, 42, позвоните по телефону +7 (903) 170-18-68. Торопитесь! Объявление №901104806 о продаже ПСН площадью 141 кв. метр опубликовано Сегодня.

    Позвонить Написать
    82 790 500 Р1 020 300 $ или 886 200
    Агент
    Наталья
    +7 (903) 170-18-68
    Начать чат с агентом
    Похожие предложения
    Продается ПСН 141.4 м2 - Фото 1
    полезная площадь 141.4м²

    Продам помещение свободного назначения площадью 141.4 кв. м в 7 мин. пешком от м. Озёрная. Помещение располагается в 30-этажном здании, находится на 1 этаже здания. Возможное назначение - коммерция, высота потолков 3 м, внутри типовой ремонт, год постройки...
    • 141.4 м²
    • 1/30 эт.
    82 790 400 Р
    Агент
    +7 (495) Показать номер
    Посмотреть контакты
    Помещение свободного назначения в Москва Большая Садовая ул., вл6-8 ... - Фото 1
    Помещение свободного назначения в Москва Большая Садовая ул., вл6-8 ... - Фото 2
    687062. Предлагаем к приобретению торговое помещение, площадью 27 кв. м., расположенное на первом этаже административного здания. Без комиссии для покупателя. Преимущества объекта: -первая линия Садового кольца;-пешая доступность от станции метро Маяковская...
    • 1/2 эт.
    82 500 000 Р
    Агент
    +7 (938) Показать номер
    Посмотреть контакты
    Помещение свободного назначения в Москва Большая Садовая ул., вл6-8 ... - Фото 1
    Помещение свободного назначения в Москва Большая Садовая ул., вл6-8 ... - Фото 2
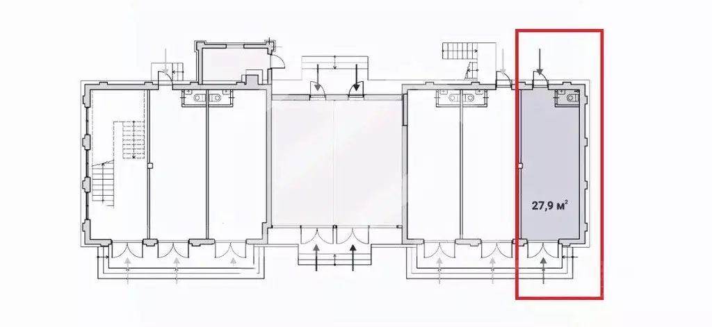
    687065. Предлагаем к приобретению торговое помещение, площадью 27.9 кв. м., расположенное на первом этаже 2-этажного административного здания. Без комиссии для покупателя. Преимущества объекта:-первая линия Садового кольца;-пешая доступность от станции...
    • 1/2 эт.
    84 000 000 Р
    Агент
    +7 (938) Показать номер
    Посмотреть контакты
    Помещение свободного назначения в Москва Большая Садовая ул., вл6-8 ... - Фото 1
    Помещение свободного назначения в Москва Большая Садовая ул., вл6-8 ... - Фото 2
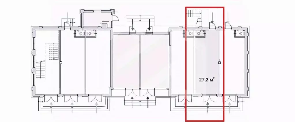
    687064. Предлагаем к приобретению торговое помещение, площадью 27.2 кв. м., расположенное на первом этаже 2-этажного административного здания. Без комиссии для покупателя. Преимущества объекта:-первая линия Садового кольца;-пешая доступность от станции...
    • 1/2 эт.
    82 500 000 Р
    Агент
    +7 (938) Показать номер
    Посмотреть контакты
    Помещение свободного назначения в Москва Складочная ул., 6С36 (127 м) - Фото 1
    Помещение свободного назначения в Москва Складочная ул., 6С36 (127 м) - Фото 2
    904110. Предлагаем к приобретению торговое помещение в бизнес-квартале Gustav , площадью 126.92 кв. м., расположенное на первом этаже 7-этажного здания. Без комиссии для покупателя. Преимущества объекта:-первая линия ул. Складочная;-10 минут пешком от...
    • 1/7 эт.
    82 662 996 Р
    Агент
    +7 (938) Показать номер
    Посмотреть контакты

    Не нашли подходящего объявления?

    Оставьте заявку, и наши риэлторы подберут псн в районе Москвы

    (0)