258 016 000 Р 3 343 300 $ или 2 843 800

Информация об помещении

1145 м2
Площадь

Состояние и оснащение

Общая площадь складского комплекса, м2
1145
Развернуть
Окулов Андрей Иванович
PRO
+7 (922) 204-22-27
Профессионал AFY.ru с 2013 г.
Начать чат с агентом

Продажа ПСН, ул. Мельникова

.
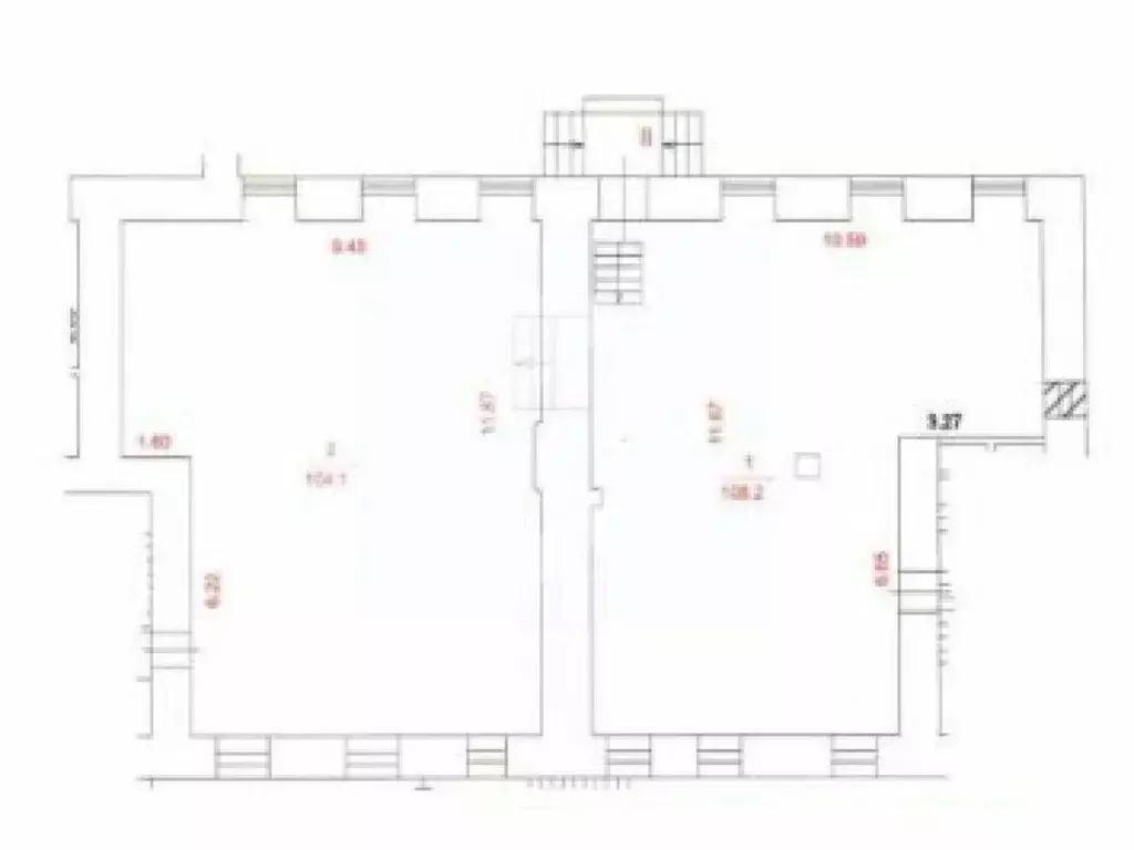
Объект незавершенного строительства 1144,5 м (2 очередь, 3 этап) на территории бывшего Завода ЖБИ-5 — редкий актив для завершения жилого/коммерческого комплекса в черте Москвы с коммуникациями.

Описание объекта
ОНС по ул. Мельникова, вл.3 — каркас готов, фундамент, коммуникации (трубопроводы 6+127+24+196 м). Освобожденная промзона ЮВАО — под жилой дом, апартаменты, офисы или смешанный формат. Готова к достройке за 6-12 мес.

Москва ЮВАО — точка редевелопмента
Рядом ТТК, метро "Волгоградский проспект" (15 мин), развивающийся кластер (IKEA, Ашан). Бывший ЖБИ-5 — идеальная локация для возрождения под современный ЖК.



Цена по запросу. Ваш редевелопмент в столице!

Читать полностью

    Для того, чтобы купить ПСН площадью 1145 кв. метров по адресу: ул. Мельникова, 3к4, позвоните по телефону +7 (922) 204-22-27. Торопитесь! Объявление №901104388 о продаже ПСН площадью 1145 кв. метров опубликовано Сегодня.

    Позвонить Написать
    258 016 000 Р3 343 300 $ или 2 843 800
    Окулов Андрей Иванович
    PRO
    +7 (922) 204-22-27
    Профессионал AFY.ru с 2013 г.
    Начать чат с агентом
    Похожие предложения
    Помещение свободного назначения в Москва ул. Нижние Мневники, 37АС17 ... - Фото 1
    Помещение свободного назначения в Москва ул. Нижние Мневники, 37АС17 ... - Фото 2
    881041. Предлагаем офисное помещение площадью 496 кв. м, расположенное на 9 этаже БЦ Stone Мневники Преимущества объекта:- Бизнес-центр класса А- Шаговая доступность от станции метро Терехово (7 минут пешком)- Этаж: 9- Помещение предлагается в состоянии...
    • 9/12 эт.
    263 872 000 Р
    Агент
    +7 (938) Показать номер
    Посмотреть контакты
    Продажа ПСН, м. Тульская, Холодильный пер. - Фото 1
    Продажа ПСН, м. Тульская, Холодильный пер. - Фото 2
    Продажа ПСН, м. Тульская, Холодильный пер. - Фото 3
    Продажа ПСН, м. Тульская, Холодильный пер. - Фото 4
    Продажа ПСН, м. Тульская, Холодильный пер. - Фото 5
    Продажа ПСН, м. Тульская, Холодильный пер. - Фото 6
    Продажа ПСН, м. Тульская, Холодильный пер. - Фото 7
    Продажа ПСН, м. Тульская, Холодильный пер. - Фото 8
    Продажа ПСН, м. Тульская, Холодильный пер. - Фото 9
    Продажа ПСН, м. Тульская, Холодильный пер. - Фото 10
    общая площадь 596.5м², полезная площадь 596.5м²

    Арендный бизнес. ПСН площадью 596,5 масположено в ЛОФТ- квартале Товарищество Рябовской Мануфактуры, в 3-х минутах пешком от метро Тульская. Помещение на 1-м этаже в 2-х этажном здании (строение 3), №3105. Помещение с высокими потолками 5 метров, большими...
    • 596.5 м²
    • 1-й эт.
    262 460 000 Р
    Агент
    +7 (903) Показать номер
    Посмотреть контакты
    Продажа ПСН, м. Сретенский бульвар, ул. Сретенка - Фото 1
    Продажа ПСН, м. Сретенский бульвар, ул. Сретенка - Фото 2
    Продажа ПСН, м. Сретенский бульвар, ул. Сретенка - Фото 3
    Продажа ПСН, м. Сретенский бульвар, ул. Сретенка - Фото 4
    Продажа ПСН, м. Сретенский бульвар, ул. Сретенка - Фото 5
    Продажа ПСН, м. Сретенский бульвар, ул. Сретенка - Фото 6
    общая площадь 240.2м², полезная площадь 240.2м²

    Продажа помещения свободного назначения на Сретенке.1-я линия домов, вся площадь на 1-м этаже. Шаговая доступность от метро Сретенский бульвар и Сухаревская. Исторический центр города, респектабельное окружение, интенсивный пешеходный и автомобильный...
    • 240.2 м²
    • 1-й эт.
    260 000 000 Р
    Агент
    +7 (903) Показать номер
    Посмотреть контакты
    Помещение свободного назначения в Москва проезд Жуков, вл8 (171 м) - Фото 1
    Помещение свободного назначения в Москва проезд Жуков, вл8 (171 м) - Фото 2
    928307. Предлагаем к приобретению торговое помещение, площадью 170,9 кв. м., расположенное в стилобате на первом этаже бизнес-центра класса А TALLER . Восточный корпус. Без комиссии для покупателя.Преимущества объекта:-первая линия;-пешая доступность...
    • 1/12 эт.
    256 350 000 Р
    Агент
    +7 (938) Показать номер
    Посмотреть контакты
    Прямая продажа от застройщика - Фото 1
    Прямая продажа от застройщика - Фото 2
    Прямая продажа от застройщика - Фото 3
    Прямая продажа от застройщика - Фото 4
    Прямая продажа от застройщика - Фото 5
    Прямая продажа от застройщика - Фото 6
    Прямая продажа от застройщика - Фото 7
    Прямая продажа от застройщика - Фото 8
    Прямая продажа от застройщика - Фото 9
    Прямая продажа от застройщика - Фото 10
    Прямая продажа от застройщика - Фото 11
    Прямая продажа от застройщика - Фото 12
    Прямая продажа от застройщика - Фото 13
    Прямая продажа от застройщика - Фото 14
    Прямая продажа от застройщика - Фото 15
    Прямая продажа от застройщика - Фото 16
    Прямая продажа от застройщика - Фото 17
    Прямая продажа от застройщика - Фото 18
    Прямая продажа от застройщика - Фото 19
    Прямая продажа от застройщика - Фото 20
    полезная площадь 606.5м²

    Продажа отдельно стоящего здания в ЖК «Режиссер» Относится к комплексу зданий, входящих в ЖК «Режиссер» РнВ получено в 4 кв. 2024 г. Преимущества: Уникальное расположение: Единственный отдельно стоящий торговый объект на территории ЖК "Режиссер",...
    • 606.5 м²
    • 1/2 эт.
    258 217 375 Р
    Агент
    +7 (495) Показать номер
    Посмотреть контакты

    Не нашли подходящего объявления?

    Оставьте заявку, и наши риэлторы подберут псн в районе Москвы

    (0)