361 947 000 Р 4 511 600 $ или 3 934 900

Информация об помещении

2129 м2
Площадь
1
Этаж
a
Класс здания

Состояние и оснащение

Класс здания
a
Количество этажей
3
Высота потолков
5

Оснащённость

Водоснабжение
центральное
Отопление
центральное отопление
Развернуть
Зайцева Ольга Леонидовна
PRO
+7 (964) 638-81-81
Профессионал AFY.ru с 2014 г.
Начать чат с агентом

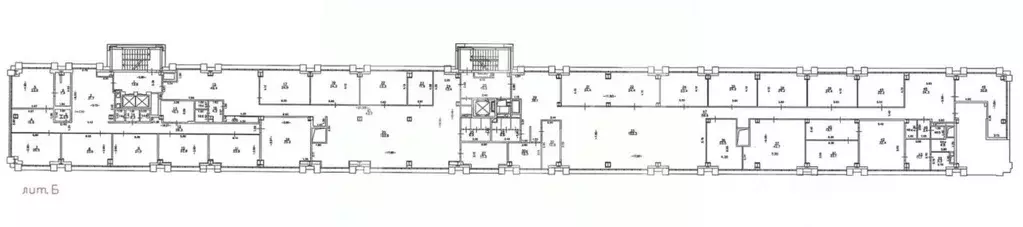
Продаем помещение под детский садик 2129.1 м2

Продаем помещение под детский садик площадью 2129.1 м2 расположенное по адресу Москва, ул. Тагильская, 48, цена 361 947 000 руб.
Помещение представляет собой трехэтажное нежилое здание общей площадью 2129,10 кв.м., предназначенное для детской образовательной организации (ДОО), с кадастровым номером 77:03:0002005:3697.

Распределение площади
1 этаж: 687,00 кв.м.

2 этаж: 721,40 кв.м.

3 этаж: 720,70 кв.м.


Технические характеристики
Здание оснащено системами горячего (ГВС) и холодного (ХВС) водоснабжения, отоплением, вентиляцией и пожарными системами. Доступна электрическая мощность 100 кВт, высота потолков варьируется от 3,3 до 4,2 м, предусмотрено 4 входа. Состояние — с частичной отделкой.

Коммерческие условия
Предлагается к продаже по договору купли-продажи за 361 947 000 руб. (НДС 20% включен в стоимость).

Читать полностью

    Для того, чтобы купить ПСН площадью 2129 кв. метров по адресу: ВАО, Богородское, м. Бульвар Рокоссовского, ул. Тагильская, 48, позвоните по телефону +7 (964) 638-81-81. Торопитесь! Объявление №901103709 о продаже ПСН площадью 2129 кв. метров опубликовано 2 дня назад.

    Позвонить Написать
    361 947 000 Р4 511 600 $ или 3 934 900
    Зайцева Ольга Леонидовна
    PRO
    +7 (964) 638-81-81
    Профессионал AFY.ru с 2014 г.
    Начать чат с агентом
    Похожие предложения
    Продажа ПСН, м. Бульвар Рокоссовского, ул. Тагильская - Фото 1
    Продажа ПСН, м. Бульвар Рокоссовского, ул. Тагильская - Фото 2
    Продажа ПСН, м. Бульвар Рокоссовского, ул. Тагильская - Фото 3
    Продажа ПСН, м. Бульвар Рокоссовского, ул. Тагильская - Фото 4
    Продажа ПСН, м. Бульвар Рокоссовского, ул. Тагильская - Фото 5
    Продажа ПСН, м. Бульвар Рокоссовского, ул. Тагильская - Фото 6
    Продажа ПСН, м. Бульвар Рокоссовского, ул. Тагильская - Фото 7
    Продажа ПСН, м. Бульвар Рокоссовского, ул. Тагильская - Фото 8
    Продажа ПСН, м. Бульвар Рокоссовского, ул. Тагильская - Фото 9
    Продажа ПСН, м. Бульвар Рокоссовского, ул. Тагильская - Фото 10
    общая площадь 2129.1м², полезная площадь 2129.1м²

    Продажа ОСЗ в новом жилом комплексе, в районе Богородское, ВАО, в 12 минутах пешком от м. Бульвар Рокоссовского. Здание 3-х этажное, общей площадью 2 129,10 м2 (687,00 м2 – 1 этаж, 721,40 м2 – 2 этаж, 720,70 м2 – 3 этаж). Назначение здания – нежилое...
    • 2 129.1 м²
    • 1-й эт.
    361 947 000 Р
    Агент
    +7 (903) Показать номер
    Посмотреть контакты
    Помещение свободного назначения в Москва ул. Бутырский Вал, 68/70С1 ... - Фото 1
    Помещение свободного назначения в Москва ул. Бутырский Вал, 68/70С1 ... - Фото 2
    1065778. Предлагаем офисное помещение площадью 853,7 кв. м, расположенное на 3 этаже БЦ Бейкер Плаза Преимущества объекта:- Бизнес-центр класса В+- Шаговая доступность от станции метро Савеловская (8 минут пешком)- Этаж: 3- Помещение предлагается с отделкой-...
    • 3/6 эт.
    358 554 000 Р
    Агент
    +7 (938) Показать номер
    Посмотреть контакты
    Помещение свободного назначения в Москва пер. Любучанский, 1к3 (2845 ... - Фото 1
    Помещение свободного назначения в Москва пер. Любучанский, 1к3 (2845 ... - Фото 2
    991969. Предлагается складское помещение общей площадью 2845 кв. м. находящееся в составе производственно-складского комплекса в НАО. 1, 2, 3 этаж.Преимущества: Объект расположен в Новой Москве вблизи аэропорта Остафьево. 14 км от МКАД и 3 км от Варшавского...
    • 1/3 эт.
    368 783 125 Р
    Агент
    +7 (938) Показать номер
    Посмотреть контакты
    Помещение свободного назначения в Москва Новая Басманная ул., 14С4 ... - Фото 1
    Помещение свободного назначения в Москва Новая Басманная ул., 14С4 ... - Фото 2
    646258. Предлагаем отдельно стоящее административное здание, площадью 1534 кв. м. Без комиссии для покупателя.Преимущества объекта:-шаговая доступность от станций метро Красные ворота и Комсомольская (8 минут пешком);-удобная транспортная доступность:...
    • 3/3 эт.
    370 000 000 Р
    Агент
    +7 (938) Показать номер
    Посмотреть контакты
    Помещение свободного назначения в Москва ул. Бутлерова, 17 (1282 м) - Фото 1
    Помещение свободного назначения в Москва ул. Бутлерова, 17 (1282 м) - Фото 2
    728920. Предлагаем офисное помещение площадью 1 282 кв. м, расположенное на 8 этаже БЦ Нео Гео Преимущества объекта:- Бизнес-центр класса В+- Шаговая доступность от станции метро Калужская (10 минут пешком)- Этаж: 8- Помещение предлагается с отделкой-...
    • 8/21 эт.
    360 000 000 Р
    Агент
    +7 (938) Показать номер
    Посмотреть контакты

    Не нашли подходящего объявления?

    Оставьте заявку, и наши риэлторы подберут псн в районе Москвы

    (0)