400 000 000 Р

Информация об помещении

2856.0 м2
Площадь
1
Этаж

Состояние и оснащение

Общая площадь складского комплекса, м2
2856.0
Развернуть
Давыдюк Данил Николаевич
+7 (903) 589-03-59
Профессионал AFY.ru с 2018 г.
Начать чат с агентом

Продажа ПСН, м. Преображенская площадь, ул. Стромынка

Лот 9635.

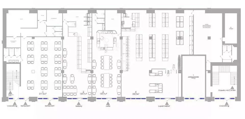
Продается 3-х этажное здание целиком, общей площадью 2856 м2, расположенное по адресу: ул. Стромынка, 25с1.
Торговый центр с набором арендаторов. Стабильный арендный поток. Первая линия домов со стороны Колодезного переулка. В шаговой доступности от станции метро Преображенская площадь. Интенсивный пешеходный и автомобильный трафики. Удобная транспортная доступность.

Ближайшие станции метро: м. Преображенская и м. Сокольники.

Технические характеристики:
Общая площадь здания: 2 856 кв.м.
Витринное остекление по фасаду.
Высота потолков: 3 метра.
Зальная, свободная планировка.
Все центральные коммуникации.
Здание имеет несколько отдельных групп.
Зона разгрузки/погрузки.
Есть парковка.

Коммерческие условия:
Стоимость объекта: + НДС;
Стоимость за 1 кв.м -.
МАП:уб/мес.
ГАП:уб/мес.
Окупаемость: 8,3 лет.

Читать полностью

    Для того, чтобы купить ПСН площадью 2856 кв. метров по адресу: м. Преображенская площадь, ул. Стромынка, 25с1, позвоните по телефону +7 (903) 589-03-59. Торопитесь! Объявление №901102102 о продаже ПСН площадью 2856 кв. метров опубликовано Вчера.

    Позвонить Написать
    400 000 000 Р
    Давыдюк Данил Николаевич
    +7 (903) 589-03-59
    Профессионал AFY.ru с 2018 г.
    Начать чат с агентом
    Похожие предложения
    Помещение свободного назначения (2528 м) - Фото 1
    Помещение свободного назначения (2528 м) - Фото 2
    ПОКАЗ В УДОБНОЕ ВРЕМЯ. Агентам платим за клиента. Готовый арендный бизнес (ГАБ). Доходность 15 , окупаемость до 6.64 лет. Жилой дом расположен в районе Марьино ЮВАО Москвы, что обеспечивает удобную транспортную доступность. Рядом находится станция...
    • 1/14 эт.
    390 000 000 Р
    Агент
    +7 (981) Показать номер
    Посмотреть контакты
    Помещение свободного назначения (2104 м) - Фото 1
    Помещение свободного назначения (2104 м) - Фото 2
    Продам офисно-складское помещение 2104мПомещение занимает первый и второй этажи четырехэтажного здания 1983 года постройки. Это практичное решение для тех, кто ищет многофункциональное пространство под различные задачи.Технические параметры-Железобетонные...
    • 1/1 эт.
    396 153 120 Р
    Агент
    +7 (962) Показать номер
    Посмотреть контакты
    Помещение свободного назначения в Москва ул. Покровка, 1/13/6С2 (429 ... - Фото 1
    Помещение свободного назначения в Москва ул. Покровка, 1/13/6С2 (429 ... - Фото 2
    Лот: 37804. Помещение свободного назначения формата Street Retail в ЦАО Москвы. 1 минута пешком до станции метро Китай-город. Первая линия улицы Покровка. Интенсивный пешеходный трафикАрендатор: Харатс договор аренды на пять лет с 01.08.2017 г. МАП:/мес....
    • 1/5 эт.
    390 000 000 Р
    Агент
    +7 (981) Показать номер
    Посмотреть контакты
    Помещение свободного назначения в Москва ул. Арбат, 39 (406 м) - Фото 1
    Помещение свободного назначения в Москва ул. Арбат, 39 (406 м) - Фото 2
    Лот: 37819. Торговое помещение в новом клубном доме на Арбате, 39-41. Новый клубный дом расположился на первой линии домов Арбата - самой известной пешеходной улицы Москвы с самым высоким пешеходным трафиком. Входы в магазины со стороны ул. Арбат. Электричество...
    • 1/5 эт.
    394 146 000 Р
    Агент
    +7 (981) Показать номер
    Посмотреть контакты
    Помещение свободного назначения в Москва 2-я Звенигородская ул., 13С4 ... - Фото 1
    Помещение свободного назначения в Москва 2-я Звенигородская ул., 13С4 ... - Фото 2
    Лот: 37765. Предлагается к продаже готовый арендный бизнес в Пресненском районе Москвы, вблизи ЖК Лакки. Интенсивный пешеходный и автомобильный трафик, высокий рекламный потенциал, сложившееся торговое окружение. Объект расположен в центре деловой активности,...
    • 2/5 эт.
    400 000 000 Р
    Агент
    +7 (981) Показать номер
    Посмотреть контакты

    Не нашли подходящего объявления?

    Оставьте заявку, и наши риэлторы подберут псн в районе Москвы

    (0)