Узнать последнюю цену

Реализация объекта недвижимости приостановлена

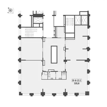
Информация об помещении

461.4 м2
Площадь
1
Этаж

Состояние и оснащение

Общая площадь складского комплекса, м2
461.4
Развернуть

Продажа ПСН, м. Южная, ул. Кировоградская

Лот 146395.

Продается Готовый Арендный Бизнес по адресу: Москва, ЮАО, Кировоградская ул., 4к3А, площадью 461,4 м.
11 минут пешком от станции метро Южная. Центр густонаселённого плотного спального жилого массива. Сверхинтенсивный пешеходный и автомобильный трафик.

Технические характеристики:
2-ух этажное отдельно стоящее административное здание, общей площадью 461,4 м, электрическая мощность 70 кВт, высота потолков: 4 м. Несколько отдельных входных групп. Зальная планировка. Все центральные коммуникации: водоснабжение, водоотведение, отопление. Витринные окна по фасаду, есть места для размещения рекламных вывесок. Своя зона погрузки/разгрузки. Имеется парковка возле помещения. Земельный участок 320 м в долгосрочной аренде у города с 2012 года.

Арендаторы:
сетевой продуктовый супермаркет "ЯРЧЕ" ( ДДА до 19.10.2030 года), салон красоты "ЦИРЮЛЬНИК" (КДА на 11 месяцев, ежегодно пролангируется).
МАП - 700 000 , ГАП.
Все коммунальные услуги оплачиваются арендаторами отдельно.

Коммерческие условия:
Стоимость объекта:
Стоимость объекта за м: 195 059

Читать полностью
    Узнать последнюю цену

    Реализация объекта недвижимости приостановлена

    Не нашли подходящего объявления?

    Оставьте заявку, и наши риэлторы подберут псн в районе Москвы

    (0)