Россия, Москва, Большая Почтовая ул, 30 к.15
м. Электрозаводская, 6 мин. пешком
70 347 360 Р 893 400 $ или 765 500

Информация об помещении

125.8 м2
Площадь
1
Этаж

Состояние и оснащение

Общая площадь складского комплекса, м2
125.8
Развернуть
Агент
Наталья
+7 (903) 170-18-68
Начать чат с агентом

Продажа ПСН, м. Электрозаводская, Большая Почтовая ул

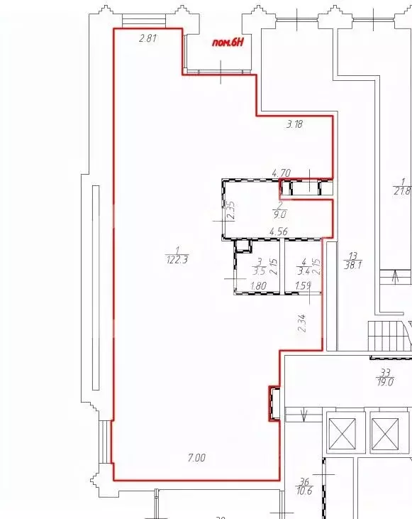
От собственника. Продажа помещения свободного назначения в готовом ЖК премиум - класса Резиденции Архитекторов, в Басманном районе, ЦАО, в 6 минутах пешком от метро Электрозаводская. Площадь помещения 125,8 м2, 1-й этаж 13-ти этажного жилого дома – корпус 15 (4-я очередь, сдан во 2-м квартале 2024 года). 2 отдельных входа в помещение, панорамное остекление, высокие потолки 4.78 м, выделенная мощность 60 кВт, все инженерные коммуникации центральные, проведена мокрая точка, помещение свободной планировки, без отделки, Shell&core. Отличная визуализация для рекламы. Помещение угловое, панорамное остекление с 2-х сторон.
Помещение подходит под ведение любого бизнеса: магазин, кофейня, ресторан, салон красоты, кафе, аптека.
ЖК Резиденции архитекторов находится на берегу реки Яузы, между Рубцовской набережной и Большой Почтовой улицей, в историческом Басманном районе Москвы. ЖК состоит из 15 монолитно-кирпичных корпусов разной этажности. Это масштабный проект, сдача корпусовг.г. ЖК спроектирован как мини-город с собственной инфраструктурой. На территории расположено 2 благоустроенных двора, есть центральная прогулочная аллея. В жилых корпусах на 1-х этажах расположены торговые помещения. Здесь высокий спрос на услуги и товары высокого класса.
Объект № 550363Номер объекта: 5/550363/310

Читать полностью

    Для того, чтобы купить ПСН площадью 125 кв. метров по адресу: ЦАО, Басманный, м. Электрозаводская, Большая Почтовая ул, 30 к.15, позвоните по телефону +7 (903) 170-18-68. Торопитесь! Объявление №901091822 о продаже ПСН площадью 125 кв. метров опубликовано Сегодня.

    Позвонить Написать
    70 347 360 Р893 400 $ или 765 500
    Агент
    Наталья
    +7 (903) 170-18-68
    Начать чат с агентом
    Похожие предложения
    Продажа ПСН, м. Белорусская, ул. Грузинский Вал - Фото 1
    Продажа ПСН, м. Белорусская, ул. Грузинский Вал - Фото 2
    Продажа ПСН, м. Белорусская, ул. Грузинский Вал - Фото 3
    Продажа ПСН, м. Белорусская, ул. Грузинский Вал - Фото 4
    общая площадь 19.7м², полезная площадь 19.7м²

    Продажа помещения свободного назначения напротив выхода из метро и Белорусского вокзала, 10 метров до станции метро Белорусская. 1-я линия домов. Сверхинтенсивный пешеходный и автомобильный трафик, отличная транспортная доступность, сложившееся торговое...
    • 19.7 м²
    • 1-й эт.
    71 000 000 Р
    Агент
    +7 (903) Показать номер
    Посмотреть контакты
    Помещение свободного назначения в Москва ул. Зорге, вл25 (121 м) - Фото 1
    Помещение свободного назначения в Москва ул. Зорге, вл25 (121 м) - Фото 2
    636432. Предлагаем к приобретению помещение свободного назначения, площадью 121,2 кв. м., расположенное на первом этаже жилого дома в ЖК Дом на Зорге . Без комиссии для покупателя.Преимущества объекта: -ЖК состоит из 16-этажного корпуса;-пешая доступность...
    • 1/16 эт.
    69 962 700 Р
    Агент
    +7 (938) Показать номер
    Посмотреть контакты
    Помещение свободного назначения в Москва Высоковольтный проезд, 1С21 ... - Фото 1
    Помещение свободного назначения в Москва Высоковольтный проезд, 1С21 ... - Фото 2
    901480. Предлагаем к приобретению отдельно стоящее здание, площадью 289,9 кв. м., расположенное на Высоковольтном проезде в СВАО. Без комиссии для покупателя.Преимущества объекта: -22 минуты пешком от станции метро Отрадное;-отлично просматривается, находится...
    • 1/1 эт.
    70 000 000 Р
    Агент
    +7 (938) Показать номер
    Посмотреть контакты
    Помещение свободного назначения в Москва Ленинский просп., 105 (190 м) - Фото 1
    Помещение свободного назначения в Москва Ленинский просп., 105 (190 м) - Фото 2
    Продаётся помещение в монолитном доме 2012 года постройки. 2 входа. На сегодняшний день есть зарегистрированный договор аренды, арендатор - сетевой магазин. Оперативный показ.
    • 1/18 эт.
    70 000 000 Р
    Агент
    +7 (989) Показать номер
    Посмотреть контакты
    ПСН Очаково-Матвеевское - Фото 1
    ПСН Очаково-Матвеевское - Фото 2
    ПСН Очаково-Матвеевское - Фото 3
    ПСН Очаково-Матвеевское - Фото 4
    ПСН Очаково-Матвеевское - Фото 5
    полезная площадь 120м²

    Помещение 120.0 м2. Продается помещение в центре развитого района города Очаково-Матвеевское. Помещение расположено на 1 этаже жилого дома. Дом заселен и располагается в густонаселенной части района. В помещении выполнен офисный ремонт - на полу ламинат,...
    • 120 м²
    • 1/25 эт.
    69 000 000 Р
    Агент
    +7 (925) Показать номер
    Посмотреть контакты

    Не нашли подходящего объявления?

    Оставьте заявку, и наши риэлторы подберут псн в районе Москвы

    (0)