34 112 000 Р 439 300 $ или 370 700

Информация об помещении

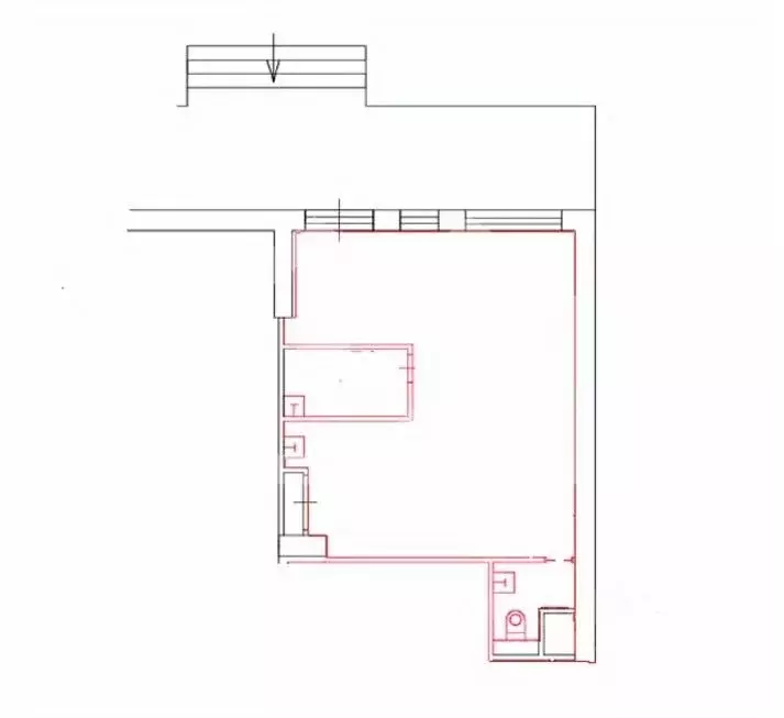
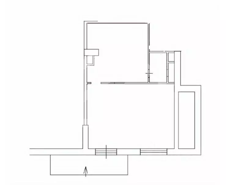
106.6 м2
Площадь
1
Этаж

Состояние и оснащение

Общая площадь складского комплекса, м2
106.6
Развернуть
Агент
Наталья
+7 (903) 170-18-68
Начать чат с агентом

Продажа ПСН, м. Воронцовская, Старокалужское ш.

От собственника. Помещение свободного назначения (ПСН) расположено на 1-м этаже в БЦ в районе Коньково (ЮЗАО), в 30 метрах от метро Воронцовская. Площадь помещения 106,6 м2 (блок на плане 11). Помещение светлое и просторное, с большими панорамными окнами, с ремонтом. Свободная планировка, 2 отдельных входа – с фасада и со стороны двора Бизнес-центра. Высокие потолки – 3 м, на полу – плитка, есть собственный с/у. Установлена приточно-вытяжная вентиляция и система центрального отопления. Выделенная мощность 7 кВт, есть возможность увеличения. Помещение подойдет под ведение любого бизнеса. Возможное использование: салон красоты, парикмахерская, бытовые услуги, кафе, кондитерская, интернет-магазин, шоу-рум.
На территории БЦ Валлекс оборудована наземная круглосуточная охраняемая парковка с пропускной системой. Внутренняя инфраструктура комплекса представлена медицинским центром, салоном красоты, столовой.
Объект № 548292Номер объекта: 5/548292/310

Читать полностью

    Для того, чтобы купить ПСН площадью 106 кв. метров по адресу: ЮЗАО, Коньково, м. Воронцовская, Старокалужское ш., 62, позвоните по телефону +7 (903) 170-18-68. Торопитесь! Объявление №901079408 о продаже ПСН площадью 106 кв. метров опубликовано Вчера.

    Позвонить Написать
    34 112 000 Р439 300 $ или 370 700
    Агент
    Наталья
    +7 (903) 170-18-68
    Начать чат с агентом
    Похожие предложения
    Прямая продажа от застройщика - Фото 1
    Прямая продажа от застройщика - Фото 2
    Прямая продажа от застройщика - Фото 3
    Прямая продажа от застройщика - Фото 4
    Прямая продажа от застройщика - Фото 5
    Прямая продажа от застройщика - Фото 6
    Прямая продажа от застройщика - Фото 7
    Прямая продажа от застройщика - Фото 8
    Прямая продажа от застройщика - Фото 9
    Прямая продажа от застройщика - Фото 10
    Прямая продажа от застройщика - Фото 11
    Прямая продажа от застройщика - Фото 12
    Прямая продажа от застройщика - Фото 13
    Прямая продажа от застройщика - Фото 14
    Прямая продажа от застройщика - Фото 15
    Прямая продажа от застройщика - Фото 16
    Прямая продажа от застройщика - Фото 17
    Прямая продажа от застройщика - Фото 18
    Прямая продажа от застройщика - Фото 19
    Прямая продажа от застройщика - Фото 20
    полезная площадь 79.6м²

    Предлагается в продажу торговое помещение, расположенное в ЖК «1-й Саларьевский»
    • 79.6 м²
    • 1/24 эт.
    33 725 504 Р
    Агент
    +7 (495) Показать номер
    Посмотреть контакты
    Продается ПСН 91.48 м2 - Фото 1
    Продается ПСН 91.48 м2 - Фото 2
    Продается ПСН 91.48 м2 - Фото 3
    Продается ПСН 91.48 м2 - Фото 4
    Продается ПСН 91.48 м2 - Фото 5
    Продается ПСН 91.48 м2 - Фото 6
    Продается ПСН 91.48 м2 - Фото 7
    Продается ПСН 91.48 м2 - Фото 8
    Продается ПСН 91.48 м2 - Фото 9
    полезная площадь 91.5м²

    Продажа от застройщика. Продается помещение свободного назначения в ЖК Аквилон Митино, 4 корпус, общей площадью 91.48 кв.м. на 1-м этаже 24 этажного дома. Благодаря большому числу жителей жилого комплекса «Аквилон Митино» и близости к активно застраивающемуся...
    • 91.5 м²
    • 1/24 эт.
    33 992 047 Р
    Агент
    +7 (495) Показать номер
    Посмотреть контакты
    Помещение свободного назначения в Москва Холодильный пер., 3к1с3 (85 ... - Фото 1
    Помещение свободного назначения в Москва Холодильный пер., 3к1с3 (85 ... - Фото 2
    714281-o . Предлагаем офисное помещение площадью 84,7 кв. м, расположенное на 4 этаже в 3 строении Лофт квартала Товарищество Рябовской Мануфактуры Преимущества объекта:- Здание класса В+- Шаговая доступность от станции метро Тульская (2 минуты пешком)-...
    • 4/5 эт.
    34 727 000 Р
    Агент
    +7 (938) Показать номер
    Посмотреть контакты
    Помещение свободного назначения в Москва ул. Неверовского, 10С3 (58 м) - Фото 1
    Помещение свободного назначения в Москва ул. Неверовского, 10С3 (58 м) - Фото 2
    1118259-o . Предлагаем офисное помещение площадью 58,3 кв. м, расположенное на 8 этаже нового строящегося бизнес-центра Цетлин Преимущества объекта:- Бизнес-центр класса А- Шаговая доступность от станции метро Парк Победы (4 минуты пешком)- Этаж: 8-...
    • 8/15 эт.
    33 837 200 Р
    Агент
    +7 (938) Показать номер
    Посмотреть контакты
    Помещение свободного назначения в Москва Сельскохозяйственная ул., ... - Фото 1
    Помещение свободного назначения в Москва Сельскохозяйственная ул., ... - Фото 2
    Id 60312. Продам ПСН в ЖК LIFE-Ботанический сад 2 1 этаж высокий трафикПредлагается к продаже помещение свободного назначения в современном, полностью заселённом жилом комплексе LIFE-Ботанический сад 2 (введён в эксплуатацию в 2020 году).Локация:•...
    • 1/23 эт.
    33 500 000 Р
    Агент
    +7 (916) Показать номер
    Посмотреть контакты

    Не нашли подходящего объявления?

    Оставьте заявку, и наши риэлторы подберут псн в районе Москвы

    (0)