79 000 000 Р 1 055 700 $ или 902 600

Информация об помещении

1
Этаж

Состояние и оснащение

Количество этажей
9
Развернуть
Агент
+7 (968) 236-49-35
Начать чат с агентом

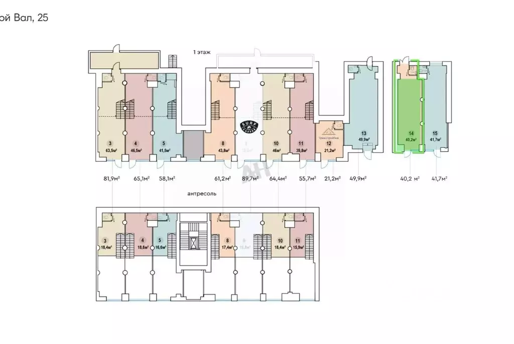
Помещение свободного назначения в Москва ул. Земляной Вал, 25 (56 м)

ЛотПредложение от Собственника Продажа помещения свободного назначения (ПСН) по адресу: Москва, Земляной Вал, 25Всего 1 минута пешком до станция метро Курская и Курский вокзалПомещение расположено в эпицентре трафика — между ТРЦ Атриум и деловым центром Ситидел , что гарантирует постоянный пешеходный трафик.Основные преимущества:•Два уровня - Антресоль 16 кв.м.•Первая линия, витринные окна — отличная визуальная доступность•Площадь: 55,7 м •Отдельный вход •Сверхинтенсивный пешеходный и автомобильный трафик•100 метров до метро•Надёжный формат street retail в топовой локации Идеально подходит под:•кофейню / пекарню•аптеку•шоурум•сервис / услуги•сетевого арендатора•ломбард•банк•авиа ж/д кассыЗвоните, покажу в удобное время максимально оперативно. АлександрЧтобы получить ПОДРОБНУЮ ПРЕЗЕНТАЦИЮ С ПЛАНИРОВКОЙ И ФОТОГРАФИЯМИ, звоните или отправьте свой email и номер телефона в сообщении на портале. Высылаем в течение 15 минут по запросу Конт. лицо: Александр Викторович, доб. 259, ЛОТ 1083548

Читать полностью
    Позвонить Написать
    79 000 000 Р1 055 700 $ или 902 600
    Агент
    +7 (968) 236-49-35
    Начать чат с агентом
    Похожие предложения
    Помещение свободного назначения в Москва ул. Земляной Вал, 25 (40 м) - Фото 1
    Помещение свободного назначения в Москва ул. Земляной Вал, 25 (40 м) - Фото 2
    ЛотПредложение от Собственника Помещение свободного назначения (ПСН) по адресу: Москва, Земляной Вал, 25Всего 1 минута пешком до станция метро Курская и Курский вокзалПомещение расположено в эпицентре трафика — между ТРЦ Атриум и деловым центром Ситидел...
    • 1/9 эт.
    78 000 000 Р
    Агент
    +7 (968) Показать номер
    Посмотреть контакты
    Помещение свободного назначения в Москва ул. Земляной Вал, 25 (58 м) - Фото 1
    Помещение свободного назначения в Москва ул. Земляной Вал, 25 (58 м) - Фото 2
    884456. Предлагаем помещение свободного назначения с арендатором салон Черника Оптика , площадью 58.2 кв. м., расположенное на первом этаже и антресоли 8-этажного жилого дома. Без комиссии для покупателя.Преимущества объекта:-первая линия ул. Земляной...
    • 1/8 эт.
    78 000 000 Р
    Агент
    +7 (938) Показать номер
    Посмотреть контакты
    Помещение свободного назначения в Москва Ленинградское ш., 228к6 (292 ... - Фото 1
    Помещение свободного назначения в Москва Ленинградское ш., 228к6 (292 ... - Фото 2
    Номер объекта: 550435. В продаже нежилое помещение свободного назначения, площадью 291,8 кв.м., расположенное на первом этаже жилого монолитного дома в новом ЖК 1-й Ленинградский. В помещении сетевой арендатор продуктовый магазин Дикси (открыт март 2024...
    • 1/15 эт.
    80 000 000 Р
    Агент
    +7 (923) Показать номер
    Посмотреть контакты
    Помещение свободного назначения (185 м) - Фото 1
    Помещение свободного назначения (185 м) - Фото 2
    Номер объекта: 551208. id: 551208 Продаются разнообразные коммерческие помещения в современном деловом комплексе Товарищество Рябовской Мануфактуры , выполненном в стильном лофт-дизайне. Комплекс удобно расположен рядом со станцией метро Тульская ,...
    • 1/2 эт.
    79 500 072 Р
    Агент
    +7 (938) Показать номер
    Посмотреть контакты
    Помещение свободного назначения (717 м) - Фото 1
    Помещение свободного назначения (717 м) - Фото 2
    Код объекта: 2142533.Продаётся ПСН возле метро «Братиславская — идеальный вариант для бизнеса Ищете выгодное вложение в коммерческой недвижимости? Предлагаем приобрести помещение свободного назначения в густонаселённом районе Марьино — по адресу: ул....
    • 1/10 эт.
    80 000 000 Р
    Агент
    +7 (939) Показать номер
    Посмотреть контакты

    Не нашли подходящего объявления?

    Оставьте заявку, и наши риэлторы подберут псн в районе Москвы

    (0)