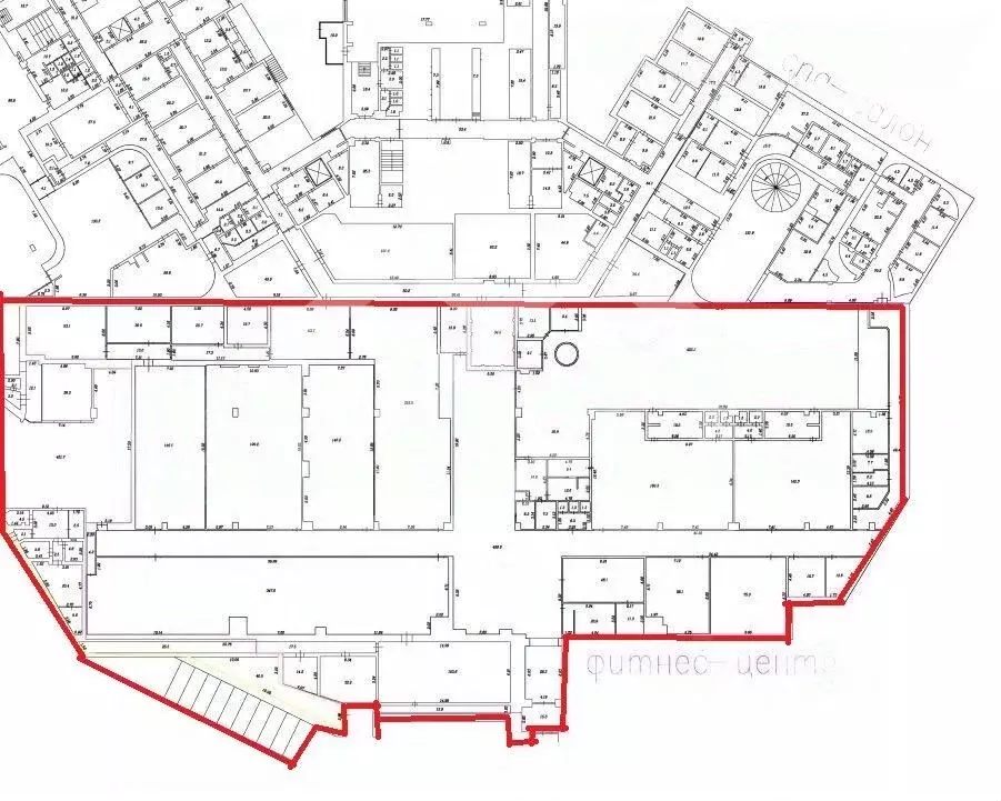
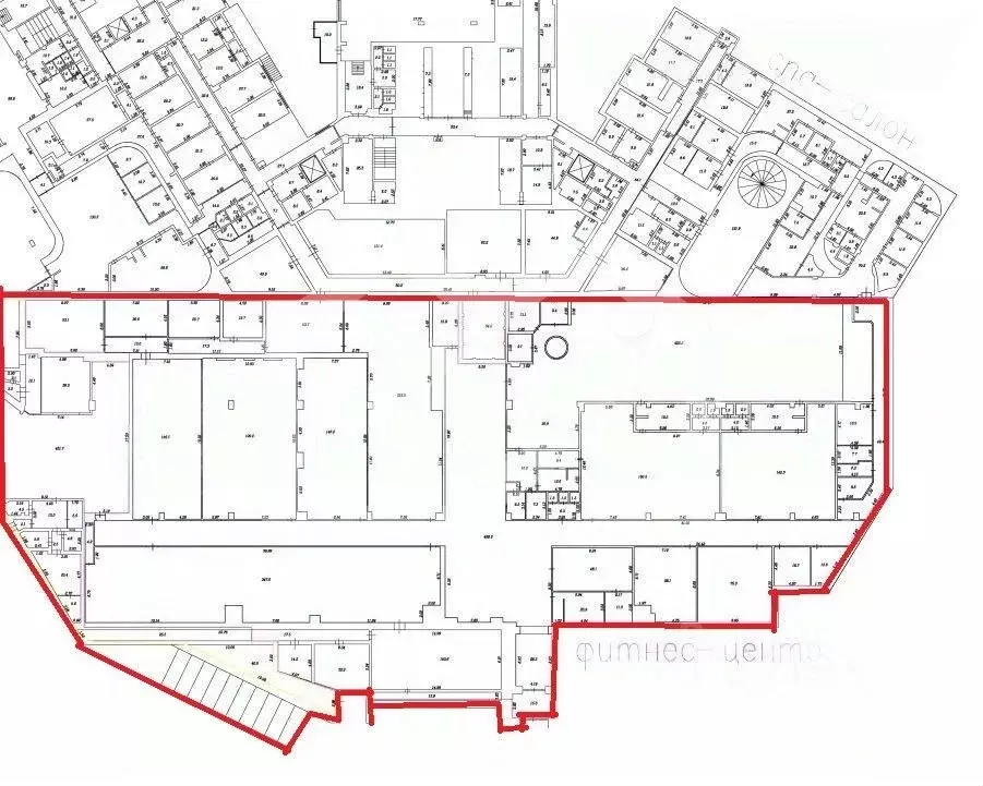
1150254. Предлагаем помещение свободного назначения с арендатором Фитнес-клуб С.C.C.P. в 4-звездочной гостинице Салют , площадью 3820 кв. м, расположенное на первом этаже 23-этажного жилого дома. Без комиссии для покупателя.Преимущества объекта:-два здания: 24-х этажный комплекс апартаментов и 3-х этажный офисный кластер;-на пересечении проспекта Вернадского и Ленинского проспекта;-первая линия;-шаговая доступность от станции метро Тропарёво (13 минут пешком);-удобная транспортная доступность: 2.5 км до МКАД, 3 км до Киевского шоссе, 3.4 км до ул. Профсоюзная, 4.4 км до Боровского шоссе;-плотный жилой массив;-формат всё включено : продуктовый магазин, аптеки, рестораны, коворкинги и конференц-залы — всё в одном месте;-развивающийся район Тропарево-Никулино с близостью к университетам РАНХиГС, РУДН и Первому МГМУ им. Сеченова;-ежедневный трафик от 9000 до 16000 человек, из которых 3000 проживают и работают в комплексе;-высокий автомобильный трафик;-отлично просматривается, находится в легком доступе для потенциальных клиентов;-гибкая планировка, позволяющая адаптировать пространство под различные нужды;-услуги:тренажерный зал;зал для йоги;зал с кардио-кинотеатром;детский зал;два бассейна;финская сауна и турецкая баня;услуги массажа, солярий и бьюти-салон.-это единственный круглосуточный фитнес-клуб с соляной пещерой и кардио-кинозалом в Юго-Западном административном округе Москвы;-время работы: круглосуточно;-круглосуточная охрана и видеонаблюдение 24/7;-витринное остекление;-возможность размещения вывески;-собственный наземный паркинг;-рядом остановка общественного транспорта.Технические параметры объекта:-отдельный вход с улицы.-электрическая мощность: 300 кВт.-высота потолков: 4 м.Информация об арендаторе: -арендатор: Фитнес-клуб С.C.C.P. , ДДА.-доход:уб/мес.Свяжитесь с нами для получения дополнительной информации
Оставьте заявку, и наши риэлторы подберут псн в районе Москвы