Россия, Москва, Большая Тульская ул., 10С26
121 560 140 Р 1 615 700 $ или 1 370 000

Информация об помещении

1
Этаж

Состояние и оснащение

Количество этажей
42
Развернуть
Агент
+7 (986) 248-24-92
Начать чат с агентом

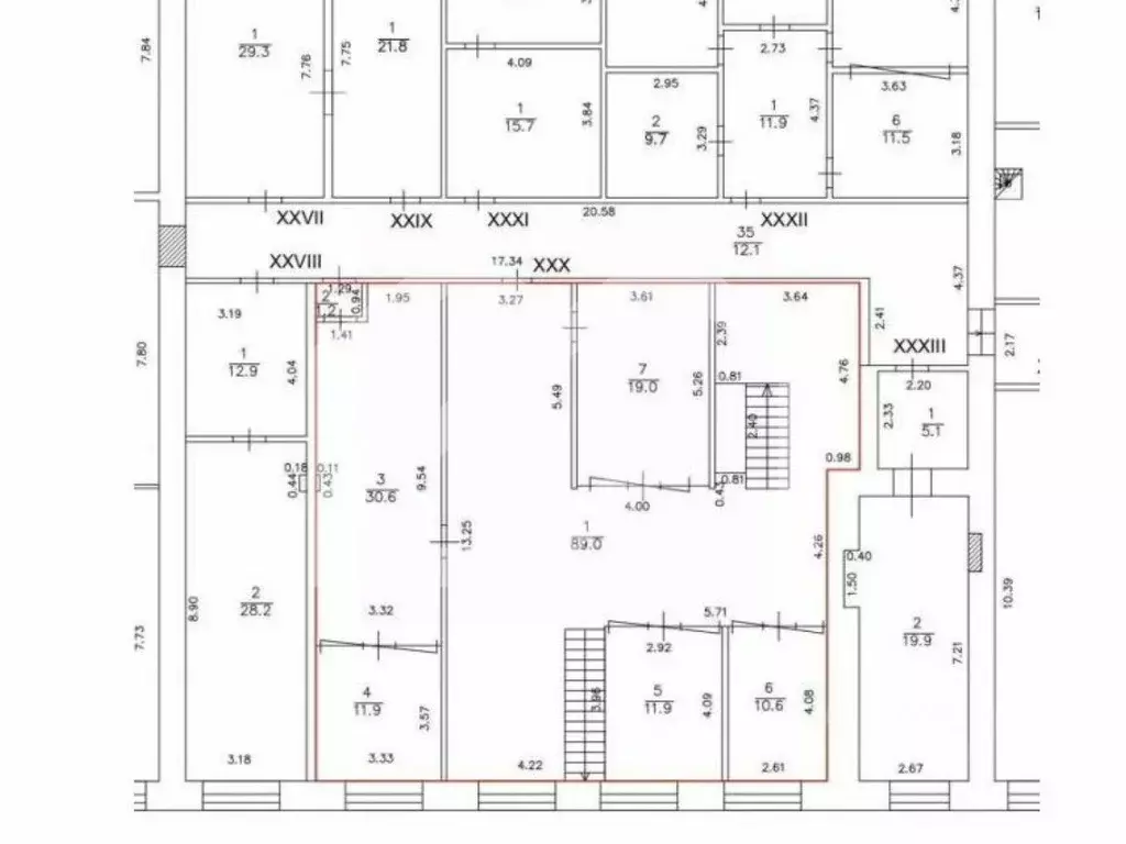
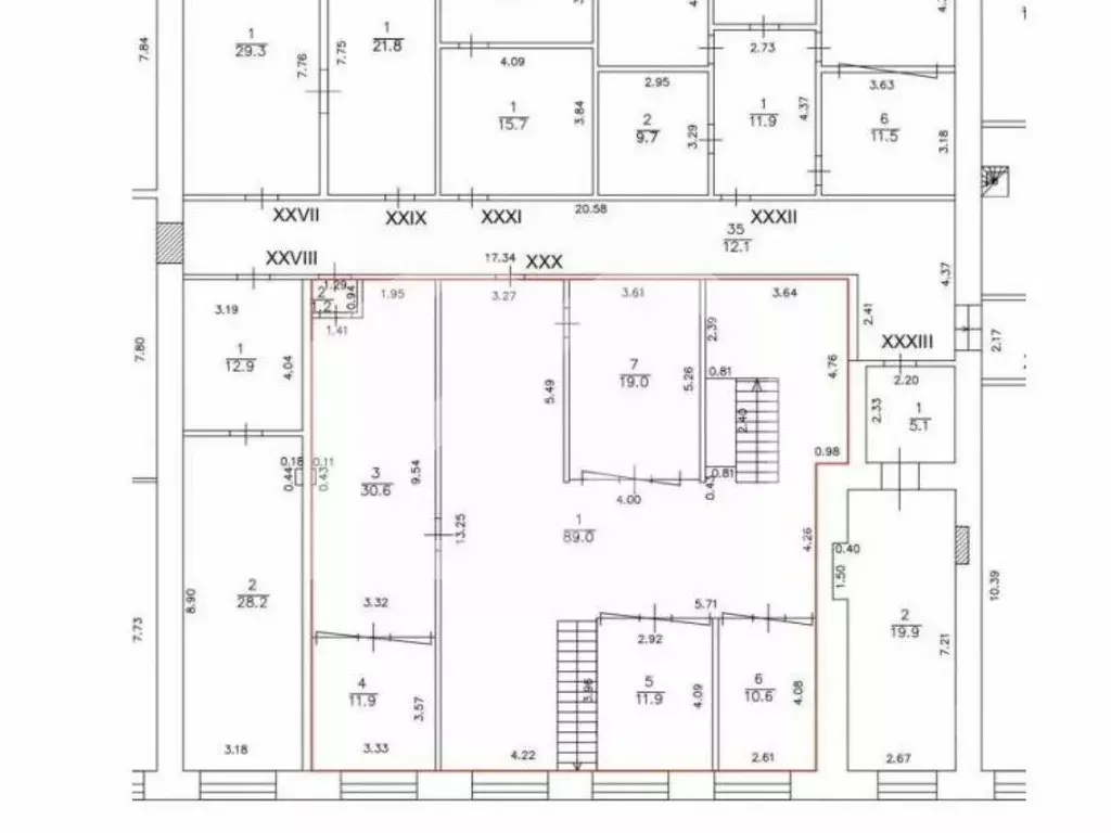
Помещение свободного назначения в Москва Большая Тульская ул., 10С26 ...

Коммерческое помещение в центре Даниловского района локации с насыщенной деловой жизнью и сложившимся высоким спросом на товары и услуги. Рядом Садовое кольцо и ключевые магистрали столицы, до станции метро Тульская 5 минут пешком.Помещение расположено на первом этаже в доме премиум-класса АУРА. Проект состоит из двух жилых башен высотой 41 и 42 этажа и рассчитан на 916 квартир. Также в составе проекта 28-этажный деловой центр класса Прайм с потенциальной численностью сотрудников около 4000 человек.Ядро платежеспособной аудитории составят жители премиального дома и сотрудники бизнес-центра. Пересечение ключевых пешеходных и транспортных потоков обеспечит стабильно высокий трафик и большое количество клиентов для бизнеса.Характеристики коммерческого помещения:- Площадь 107.9 м;- Помещение свободного назначения;- Высота потолков до 4.3 м;- Мокрая точка;- Панорамное остекление;- Отдельный вход с улицы.Готовность 4 квартал 2027 года.Условия покупки:- 100 оплата;- Рассрочка. Мангазея девелопер бескомпромиссной жизни, где эстетика встречается с функциональностью, а безупречность живет в каждой детали. В проектах компании нет места случайностям, поскольку глубина замысла определяет ценность пространства. Мангазея входит в одноименный диверсифицированный холдинг, также ведущий свою деятельность в направлениях золотодобычи и газодобычи. Общая площадь проектов девелоперского портфеля компании превышает 2,2 миллиона м.

Читать полностью
    Позвонить Написать
    121 560 140 Р1 615 700 $ или 1 370 000
    Агент
    +7 (986) 248-24-92
    Начать чат с агентом
    Похожие предложения
    Помещение свободного назначения в Москва Большая Тульская ул., 10С26 ... - Фото 1
    Помещение свободного назначения в Москва Большая Тульская ул., 10С26 ... - Фото 2
    Коммерческое помещение в центре Даниловского района локации с насыщенной деловой жизнью и сложившимся высоким спросом на товары и услуги. Рядом Садовое кольцо и ключевые магистрали столицы, до станции метро Тульская 5 минут пешком.Помещение расположено...
    • 1/41 эт.
    119 138 750 Р
    Агент
    +7 (986) Показать номер
    Посмотреть контакты
    Помещение свободного назначения в Москва Большая Тульская ул., 10С26 ... - Фото 1
    Помещение свободного назначения в Москва Большая Тульская ул., 10С26 ... - Фото 2
    Коммерческое помещение в центре Даниловского района локации с насыщенной деловой жизнью и сложившимся высоким спросом на товары и услуги. Рядом Садовое кольцо и ключевые магистрали столицы, до станции метро Тульская 5 минут пешком.Помещение расположено...
    • 1/42 эт.
    113 317 440 Р
    Агент
    +7 (986) Показать номер
    Посмотреть контакты
    Помещение свободного назначения в Москва Холодильный пер., 3к1с3 (236 ... - Фото 1
    Помещение свободного назначения в Москва Холодильный пер., 3к1с3 (236 ... - Фото 2
    636986. Предлагаем офисное помещение в лофт-квартале Товарищество Рябовской Мануфактуры , площадью 236,4 кв.м, расположенное на втором этаже 5-этажного здания. Преимущества объекта:-шаговая доступность от станции метро Тульская (2-3 минуты пешком);-кабинетная...
    • 2/5 эт.
    111 108 000 Р
    Агент
    +7 (938) Показать номер
    Посмотреть контакты
    Помещение свободного назначения в Москва Новоданиловская наб., 6к1 ... - Фото 1
    Помещение свободного назначения в Москва Новоданиловская наб., 6к1 ... - Фото 2
    Лот 976307 Предложение от Собственника Предлагается на продажу помещение под кафе, ресторан, общепит площадью 237.30 м2. Помещение расположено 15 мин от м Верхние Котлы (МЦК). 1 этаж. Отдельный вход. Система кондиционирования. Есть круглосуточный доступ....
    • 1/13 эт.
    127 500 000 Р
    Агент
    +7 (986) Показать номер
    Посмотреть контакты
    Помещение свободного назначения в Москва Холодильный пер., 3к1с3 (236 ... - Фото 1
    Помещение свободного назначения в Москва Холодильный пер., 3к1с3 (236 ... - Фото 2
    636986. Предлагаем офисное помещение в лофт-квартале Товарищество Рябовской Мануфактуры , площадью 236,4 кв.м, расположенное на втором этаже 5-этажного здания. Преимущества объекта:-шаговая доступность от станции метро Тульская (2-3 минуты пешком);-кабинетная...
    • 2/5 эт.
    111 108 000 Р
    Агент
    +7 (938) Показать номер
    Посмотреть контакты

    Не нашли подходящего объявления?

    Оставьте заявку, и наши риэлторы подберут псн в районе Москвы

    (0)