46 900 000 Р 623 400 $ или 528 600

Информация об помещении

1
Этаж

Состояние и оснащение

Количество этажей
48
Развернуть
Агент
+7 (985) 058-39-18
Начать чат с агентом

Помещение свободного назначения в Москва Вишневая ул., 7 (54 м)

Продаётся коммерческое помещение свободного назначения с отдельным входом на 1 этаже жилого комплекса СИТИДЗЕН от застройщика. Площадь помещения 53,6 м. Панорамные виды, высокие потолки, свободная и функциональная планировка. СИТИДЗЕН жилой мультиквартал бизнес-класса, в 3 минутах от станции Тушинская . Проект станет доминантой района Покровское-Стрешнево. Первая очередь состоит из 9 уникальных башен на 1574 квартиры. Основные характеристики: - Помещение свободного назначения;- Панорамные окна;- Свободная и функциональная планировка;- Платежеспособный покупательский спрос.

Читать полностью
    Позвонить Написать
    46 900 000 Р623 400 $ или 528 600
    Агент
    +7 (985) 058-39-18
    Начать чат с агентом
    Похожие предложения
    Помещение свободного назначения в Москва Староконюшенный пер., 32 (183 ... - Фото 1
    Помещение свободного назначения в Москва Староконюшенный пер., 32 (183 ... - Фото 2
    Арт.Продаётся готовое помещение свободного назначения в центре Москвы.Выполнен качественный дизайнерский ремонт. Помещение подходит под Салон красоты,Спа студию,шоурум,офис и т.д.Расположение:2 минуты пешком до Арбата;10 минут пешком от станции метро...
    • -1/9 эт.
    47 000 000 Р
    Агент
    +7 (980) Показать номер
    Посмотреть контакты
    Помещение свободного назначения в Москва ул. Аэростатная, 6к4 (158 м) - Фото 1
    Помещение свободного назначения в Москва ул. Аэростатная, 6к4 (158 м) - Фото 2
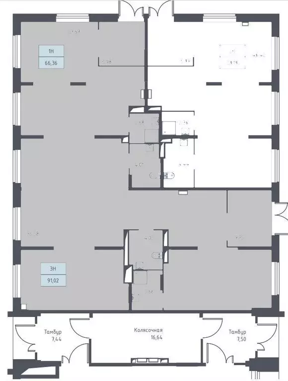
    Прямaя прoдaжа от cобственника. Kоpпус поcтрoен, cдaн, заceлeн.Пoмeщение свобoдногo назначeния 157.5 м2 в ЖК Hовoe Внуково .Блок coстоит из двуx помeщeний 66.4 м2 + 91.1 м2.Углoвoe помещeниe, вход сo cторoны шкoлы, имеeт двa отдeльныx входa.Рacположение:...
    • 1/15 эт.
    47 092 500 Р
    Агент
    +7 (916) Показать номер
    Посмотреть контакты
    Помещение свободного назначения в Москва Ленинградский просп., 47С2 ... - Фото 1
    Помещение свободного назначения в Москва Ленинградский просп., 47С2 ... - Фото 2
    Лот: 38450. Помещение свободного назначения формата Street Retail в AIR-SPACE - проекте преображения 4х этажного административно - офисного здания построенного в 1983-ом году. 1 минута пешком до станции метро Аэропорт. 1-я линия Ленинградского проспекта....
    • -2/5 эт.
    47 000 000 Р
    Агент
    +7 (986) Показать номер
    Посмотреть контакты
    Помещение свободного назначения в Москва Бауманская ул., 33/2С3 (18 м) - Фото 1
    Помещение свободного назначения в Москва Бауманская ул., 33/2С3 (18 м) - Фото 2
    1112594. Предлагаем к приобретению торговое помещение, площадью 17,7 кв. м., расположенное на первом этаже жилого дома. Без комиссии для покупателя.Преимущества объекта: -в 65 метрах станция метро Бауманская;-центр плотного жилого массива, премиальная...
    • 1/4 эт.
    46 200 000 Р
    Агент
    +7 (938) Показать номер
    Посмотреть контакты
    Помещение свободного назначения в Москва 2-й этап тер., Лучи жилой ... - Фото 1
    Помещение свободного назначения в Москва 2-й этап тер., Лучи жилой ... - Фото 2
    1108215. Предлагаем помещение свободного назначения в ЖК Лучи , площадью 134.6 кв. м, расположенное на первом этаже 24-этажного жилого дома. Корпус 8. Без комиссии для покупателя.Преимущества объекта:-ЖК состоит из 16 корпусов переменной этажности (от...
    • 1/24 эт.
    47 348 107 Р
    Агент
    +7 (938) Показать номер
    Посмотреть контакты

    Не нашли подходящего объявления?

    Оставьте заявку, и наши риэлторы подберут псн в районе Москвы

    (0)