142 466 724 Р 1 893 600 $ или 1 605 600

Информация об помещении

1
Этаж

Состояние и оснащение

Количество этажей
4
Развернуть
Агент
+7 (923) 072-03-94
Начать чат с агентом

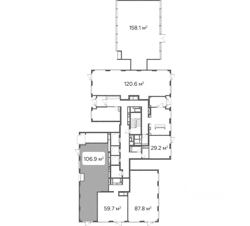
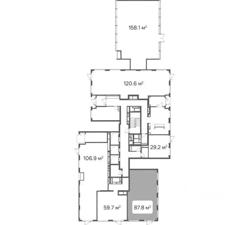
Помещение свободного назначения в Москва № 91 кв-л, (1791 м)

Предлагается в покупку производственное помещение на 1-4 этажах в современном кластере в Новой МосквеВвод в эксплуатацию - 3 кв 2027 г.ВАЖНОПрямая продажа от собственникаВозможна покупка помещений на других этажахОСНОВНЫЕ ХАРАКТЕРИСТИКИ- Площадь: 1791 кв.м- Этаж: 1-4- Температура: Сухой- Высота потолка: 5 м (1 этаж)- Высота потолка: 4 м (2-4 этаж)- Нагрузка на пол: 2,5 т/кв.м (1 этаж)- Нагрузка на пол: 1 т/кв.м (2- 4 этаж)- Тип пола: Бетонный пол с антипылевым покрытием- Шаг колонн: 6 x 12- Наличие грузовых подъемников между этажами- Гибкие планировки: можно организовать офис, R D-центр, сборочный участок, мини-цех, логистический модуль или смешанный формат офис + производство в рамках одного зданияРАСПОЛОЖЕНИЕ- Уникальная доступность: 19 км до МКАД- Близлежащие шоссе/трассы: СимферопольскоеПочему стоит обратиться к нам?- Самая большая и актуальная база складской недвижимости- Подбор оптимального предложения с учетом задач вашей компании- Консультация и сопровождение на всех этапах сделки- Организация просмотров в любое удобное время- Возможность виртуального тураЗвоните и мы оперативно организуем показ и ответим на все интересующие Вас вопросыНомер объекта: 1/538677/20317

Читать полностью
    Позвонить Написать
    142 466 724 Р1 893 600 $ или 1 605 600
    Агент
    +7 (923) 072-03-94
    Начать чат с агентом
    Похожие предложения
    Помещение свободного назначения в Москва № 91 кв-л,  (1327 м) - Фото 1
    Помещение свободного назначения в Москва № 91 кв-л,  (1327 м) - Фото 2
    Предлагается в покупку производственное помещение на 1-3 этажах в современном кластере в Новой МосквеВвод в эксплуатацию - 3 кв 2027 г.ВАЖНОПрямая продажа от собственникаВозможна покупка помещений на других этажахОСНОВНЫЕ ХАРАКТЕРИСТИКИ- Площадь: 1327...
    • 1/4 эт.
    142 466 720 Р
    Агент
    +7 (923) Показать номер
    Посмотреть контакты
    Помещение свободного назначения в Москва № 91 кв-л,  (1257 м) - Фото 1
    Помещение свободного назначения в Москва № 91 кв-л,  (1257 м) - Фото 2
    Предлагается в покупку производственное помещение на 1 этаже в современном кластере в Новой МосквеВвод в эксплуатацию - 3 кв 2027 г.ВАЖНОПрямая продажа от собственникаВозможна покупка помещений на других этажах, а также на нескольких этажах вместеОСНОВНЫЕ...
    • 1/4 эт.
    144 114 915 Р
    Агент
    +7 (923) Показать номер
    Посмотреть контакты
    Помещение свободного назначения в Москва Бутырская ул., 4 (265 м) - Фото 1
    Помещение свободного назначения в Москва Бутырская ул., 4 (265 м) - Фото 2
    ЛотПредложение от Собственника Продаётся помещение свободного назначения площадью 264.5 м2 всего в 2 мин. пешком от станции метро Савёловская и Савёловского вокзала.Первая линия, сверхинтенсивный пешеходный трафик, сложившееся торговое окружение. В...
    • 1/15 эт.
    132 300 000 Р
    Агент
    +7 (986) Показать номер
    Посмотреть контакты
    Помещение свободного назначения в Москва Открытое ш., вл9 (107 м) - Фото 1
    Помещение свободного назначения в Москва Открытое ш., вл9 (107 м) - Фото 2
    Коммерческое помещение в двух минутах пешком от метро и МЦК Бульвар Рокоссовского . Рядом - остановки наземного общественного транспорта и удобный выезд на Северо-Восточную хорду.Помещение расположено в квартале бизнес-класса НАЗАР у национального парка...
    • 1/25 эт.
    136 832 000 Р
    Агент
    +7 (919) Показать номер
    Посмотреть контакты
    Помещение свободного назначения в Москва Открытое ш., вл9 (88 м) - Фото 1
    Помещение свободного назначения в Москва Открытое ш., вл9 (88 м) - Фото 2
    Коммерческое помещение в двух минутах пешком от метро и МЦК Бульвар Рокоссовского . Рядом - остановки наземного общественного транспорта и удобный выезд на Северо-Восточную хорду.Помещение расположено в квартале бизнес-класса НАЗАР у национального парка...
    • 1/25 эт.
    136 090 000 Р
    Агент
    +7 (919) Показать номер
    Посмотреть контакты

    Не нашли подходящего объявления?

    Оставьте заявку, и наши риэлторы подберут псн в районе Москвы

    (0)