45 000 000 Р 601 500 $ или 512 000

Информация об помещении

1
Этаж

Состояние и оснащение

Количество этажей
42
Развернуть
Агент
+7 (938) 656-74-88
Начать чат с агентом

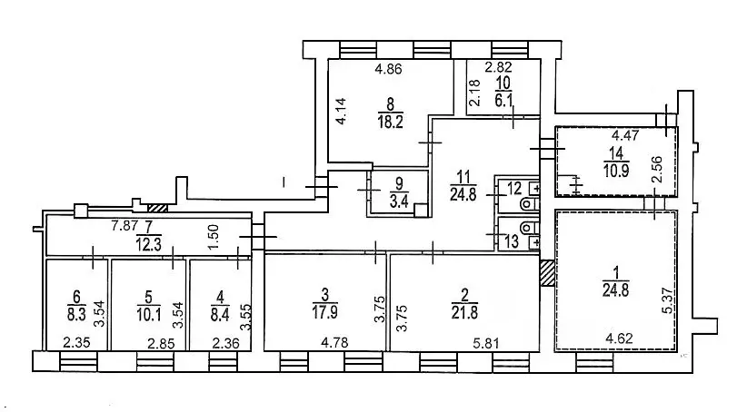
Помещение свободного назначения в Москва Дубининская ул., 59А (44 м)

1079485. Предлагаем помещение свободного назначения в ЖК Павелецкая Сити , площадью 44.3 кв. м, расположенное на первом этаже 42-этажного жилого дома. Корпус: Кэрри. Без комиссии для покупателя.Преимущества объекта:-ЖК состоит из 12 корпусов переменной этажности (от 9 до 46 этажей), рассчитанных на 3 253 квартир;-17 минут пешком от станции метро Серпуховская ;-удобная транспортная доступность: 900 м до Подольского шоссе, 2.4 км до Садового кольца, 2.8 км до Варшавского шоссе, 3 км до Загородного шоссе, 4.3 км до ТТК;-плотный жилой массив;-мало коммерческих помещений, что гарантирует высокий спрос;-стабильный автомобильный и пешеходный трафик;-находится в легком доступе для потенциальных клиентов;-гибкая планировка, позволяющая адаптировать пространство под различные нужды;-возможность увеличения площади на 40 за счет антресоли;-идеально подойдет под любой вид деятельности: магазин у дома, пекарня, кофейня, салон красоты, аптека, офис, шоурум, винотека и т.д;-витринное остекление;-возможность размещения вывески.Технические параметры объекта:-отдельный вход с улицы.-высота потолков: 6 м.Свяжитесь с нами для получения дополнительной информации

Читать полностью
    Позвонить Написать
    45 000 000 Р601 500 $ или 512 000
    Агент
    +7 (938) 656-74-88
    Начать чат с агентом
    Похожие предложения
    Помещение свободного назначения в Москва Севастопольский просп., 1К5 ... - Фото 1
    Помещение свободного назначения в Москва Севастопольский просп., 1К5 ... - Фото 2
    Продаю помещение свободного назначения общей площадью 525 кв.м, Помещение расположено на цокольном этаже жилого дома по адресу: г. Москва, Пятницкое шоссе, д. 1 корп.5. Семь минут пешком до метро Крымская (МЦК). Тихий, уютный двор. В соседнем доме находится...
    • -1/5 эт.
    45 000 000 Р
    Агент
    +7 (916) Показать номер
    Посмотреть контакты
    Помещение свободного назначения в Москва Новая Басманная ул., 35С1 ... - Фото 1
    Помещение свободного назначения в Москва Новая Басманная ул., 35С1 ... - Фото 2
    Коммерческое помещение, 261,3 кв.м
    • 4/5 эт.
    44 824 000 Р
    Агент
    +7 (985) Показать номер
    Посмотреть контакты
    Продается ПСН 89.6 м2 - Фото 1
    Продается ПСН 89.6 м2 - Фото 2
    Продается ПСН 89.6 м2 - Фото 3
    Продается ПСН 89.6 м2 - Фото 4
    Продается ПСН 89.6 м2 - Фото 5
    полезная площадь 89.6м²

    Стрит-ритейл в новом ЖК «Страна. Заречная» в Москве от федерального застройщика «Страна Девелопмент». Проект расположен в пешей доступности от станции МЦД «Перерва». Район Марьино активно развивается: строятся новые жилые кварталы, социальные объекты...
    • 89.6 м²
    • 1/38 эт.
    44 990 000 Р
    Агент
    +7 (495) Показать номер
    Посмотреть контакты
    Прямая продажа от застройщика - Фото 1
    Прямая продажа от застройщика - Фото 2
    Прямая продажа от застройщика - Фото 3
    Прямая продажа от застройщика - Фото 4
    Прямая продажа от застройщика - Фото 5
    Прямая продажа от застройщика - Фото 6
    Прямая продажа от застройщика - Фото 7
    Прямая продажа от застройщика - Фото 8
    Прямая продажа от застройщика - Фото 9
    Прямая продажа от застройщика - Фото 10
    Прямая продажа от застройщика - Фото 11
    Прямая продажа от застройщика - Фото 12
    Прямая продажа от застройщика - Фото 13
    Прямая продажа от застройщика - Фото 14
    Прямая продажа от застройщика - Фото 15
    Прямая продажа от застройщика - Фото 16
    Прямая продажа от застройщика - Фото 17
    Прямая продажа от застройщика - Фото 18
    Прямая продажа от застройщика - Фото 19
    Прямая продажа от застройщика - Фото 20
    полезная площадь 109.3м²

    Предлагается в продажу торговое помещение, расположенное в ЖК «Режиссер»
    • 109.3 м²
    • 1/38 эт.
    45 016 008 Р
    Агент
    +7 (495) Показать номер
    Посмотреть контакты
    Помещение свободного назначения в Москва Автозаводская ул., 11 (178 м) - Фото 1
    Помещение свободного назначения в Москва Автозаводская ул., 11 (178 м) - Фото 2
    В продаже помещение свободного назначения общей площадью 178,3 кв.метров, расположенное в шаговой доступности от метро Автозаводская (менее 1 минуты)Помещение в хорошем состоянии, кабинетная планировка, возможность быстрого въезда или сдачи в аренду по...
    • 3/8 эт.
    44 990 000 Р
    Агент
    +7 (916) Показать номер
    Посмотреть контакты

    Не нашли подходящего объявления?

    Оставьте заявку, и наши риэлторы подберут псн в районе Москвы

    (0)