Россия, Москва, Филатов Луг жилой комплекс, ул. Картмазовские Пруды, 2к4
32 414 000 Р 421 100 $ или 360 100

Информация об помещении

1
Этаж

Состояние и оснащение

Количество этажей
19
Развернуть
Агент
+7 (938) 656-74-88
Начать чат с агентом

Помещение свободного назначения в Москва Филатов Луг жилой комплекс, ...

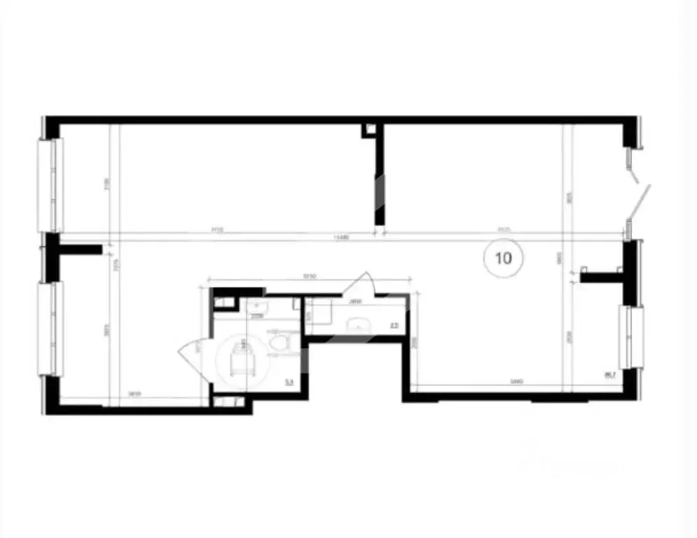
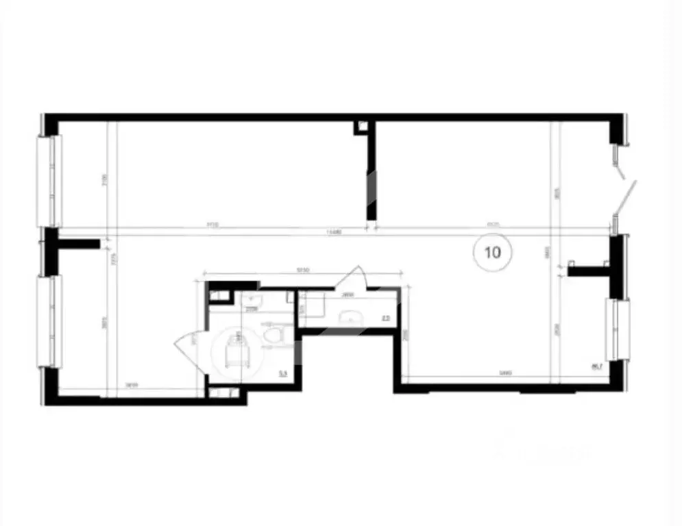
847699. Предлагаем помещение свободного назначения, площадью 94,5 кв. м., расположенное на первом этаже жилого дома в ЖК Филатов Луг . Корпус 6. Так как корректный адрес отсутствует на Яндекс.Картах, введен ближайший. Без комиссии для покупателя.Преимущества объекта:-ЖК состоит из 6 корпусов переменной этажности (от 12 до 22 этажей);-5 минут на автомобиле от станции метро Филатов Луг ;-развитая транспортная инфраструктура: выезд на Киевское шоссе в 500 м;-плотный жилой массив;-интенсивный автомобильный и пешеходный трафик;-отлично просматривается, находится в легком доступе для потенциальных клиентов;-гибкая планировка, позволяющая адаптировать пространство под различные нужды;-витринное остекление;-возможность размещения вывески;-наземная парковка;-рядом остановка общественного транспорта.Технические параметры объекта:-отдельный вход с улицы;-электрическая мощность: 15 кВт;-высота потолков: 4 м.Ввод в эксплуатацию - 4 квартал 2026 г.Свяжитесь с нами для получения дополнительной информации

Читать полностью
    Позвонить Написать
    32 414 000 Р421 100 $ или 360 100
    Агент
    +7 (938) 656-74-88
    Начать чат с агентом
    Похожие предложения
    Помещение свободного назначения в Москва Филатов Луг жилой комплекс, ... - Фото 1
    847699. Предлагаем помещение свободного назначения, площадью 94,5 кв. м., расположенное на первом этаже жилого дома в ЖК Филатов Луг . Корпус 6. Так как корректный адрес отсутствует на Яндекс.Картах, введен ближайший. Без комиссии для покупателя.Преимущества...
    • 1/19 эт.
    32 414 000 Р
    Агент
    +7 (938) Показать номер
    Посмотреть контакты
    Продажа коммерческого помещения ГАБ 87 м на 1м этаже - Фото 1
    Продажа коммерческого помещения ГАБ 87 м на 1м этаже - Фото 2
    Продажа коммерческого помещения ГАБ 87 м на 1м этаже - Фото 3
    Продажа коммерческого помещения ГАБ 87 м на 1м этаже - Фото 4
    Продажа коммерческого помещения ГАБ 87 м на 1м этаже - Фото 5
    Продажа коммерческого помещения ГАБ 87 м на 1м этаже - Фото 6
    Продажа коммерческого помещения ГАБ 87 м на 1м этаже - Фото 7
    Продажа коммерческого помещения ГАБ 87 м на 1м этаже - Фото 8
    Продажа коммерческого помещения ГАБ 87 м на 1м этаже - Фото 9
    Продажа коммерческого помещения ГАБ 87 м на 1м этаже - Фото 10
    Продажа коммерческого помещения ГАБ 87 м на 1м этаже - Фото 11
    Продажа коммерческого помещения ГАБ 87 м на 1м этаже - Фото 12
    Продажа коммерческого помещения ГАБ 87 м на 1м этаже - Фото 13
    полезная площадь 87м²

    Адрес: Москва, ЮАО, Велозаводская улица, дом 6 (м. Автозаводская / м. Дубровка) Этаж: 1 Описание локации: Помещение расположено в районе с отличной транспортной доступностью и высоким пешеходным трафиком. Дом находится в непосредственной близости от оживленной...
    • 87 м²
    • 1/6 эт.
    33 000 000 Р
    Агент
    +7 (989) Показать номер
    Посмотреть контакты
    Прямая продажа от застройщика - Фото 1
    Прямая продажа от застройщика - Фото 2
    Прямая продажа от застройщика - Фото 3
    Прямая продажа от застройщика - Фото 4
    Прямая продажа от застройщика - Фото 5
    Прямая продажа от застройщика - Фото 6
    Прямая продажа от застройщика - Фото 7
    Прямая продажа от застройщика - Фото 8
    Прямая продажа от застройщика - Фото 9
    Прямая продажа от застройщика - Фото 10
    Прямая продажа от застройщика - Фото 11
    Прямая продажа от застройщика - Фото 12
    Прямая продажа от застройщика - Фото 13
    Прямая продажа от застройщика - Фото 14
    Прямая продажа от застройщика - Фото 15
    Прямая продажа от застройщика - Фото 16
    Прямая продажа от застройщика - Фото 17
    Прямая продажа от застройщика - Фото 18
    Прямая продажа от застройщика - Фото 19
    Прямая продажа от застройщика - Фото 20
    полезная площадь 74.1м²

    Предлагается в продажу помещение свободного назначения, расположенное в ЖК 1-й Саларьевский площадью 74.1 кв.м. Располагается на 1 этаже 24-этажного корпуса. Помещение идеально подойдет для магазина, кафе, офиса или другого бизнеса благодаря функциональной...
    • 74.1 м²
    • 1/24 эт.
    32 172 128 Р
    Агент
    +7 (495) Показать номер
    Посмотреть контакты
    Продается ПСН 129 м2 - Фото 1
    Продается ПСН 129 м2 - Фото 2
    Продается ПСН 129 м2 - Фото 3
    Продается ПСН 129 м2 - Фото 4
    Продается ПСН 129 м2 - Фото 5
    Продается ПСН 129 м2 - Фото 6
    Продается ПСН 129 м2 - Фото 7
    Продается ПСН 129 м2 - Фото 8
    Продается ПСН 129 м2 - Фото 9
    Продается ПСН 129 м2 - Фото 10
    Продается ПСН 129 м2 - Фото 11
    Продается ПСН 129 м2 - Фото 12
    Продается ПСН 129 м2 - Фото 13
    полезная площадь 129м²

    Предлагается коммерческое помещение площадью 129 м на 1-м этаже 33-этажного жилого дома в ЖК «Тринити-2». Основные преимущества: отдельный вход; место под вывеску; витринное остекление; круглосуточный доступ; помещение без ремонта, что позволяет...
    • 129 м²
    • 1/34 эт.
    32 450 000 Р
    Агент
    +7 (495) Показать номер
    Посмотреть контакты
    Помещение свободного назначения в Москва Рублевское ш., 93К1 (134 м) - Фото 1
    Помещение свободного назначения в Москва Рублевское ш., 93К1 (134 м) - Фото 2
    Данные получены с сайта ГИС Торги.Продажа имущества, находящегося в собственности города Москвы, нежилое помещение по адресу: г. Москва ш. Рублёвское, д. 93, корп. 1, общей площадью 133,5 кв. м, (Этаж 1), кадастровый номер: 77:07:0004005:4829.
    • 14 этажей
    32 131 000 Р
    Агент
    +7 (933) Показать номер
    Посмотреть контакты

    Не нашли подходящего объявления?

    Оставьте заявку, и наши риэлторы подберут псн в районе Москвы

    (0)