62 847 660 Р 839 800 $ или 718 000

Информация об помещении

1
Этаж

Состояние и оснащение

Количество этажей
22
Развернуть
Агент
+7 (938) 656-74-88
Начать чат с агентом

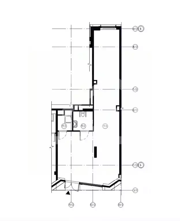
Помещение свободного назначения в Москва 3-я Гражданская ул., 1 (89 м)

1065307. Предлагаем помещение свободного назначения в ЖК Sokolinn Park , площадью 88.5 кв. м, расположенное на первом этаже 22-этажного жилого дома. Без комиссии для покупателя.Преимущества объекта:-первая линия ул. 3-я Гражданская;-ЖК состоит из 2 корпусов переменной этажности, рассчитанных на 211 квартир;-5 минут на автомобиле от станции метро Преображенская площадь ;-удобная транспортная доступность: 1.5 км до Белокаменного шоссе, 1.8 км до Богородского и Открытого шоссе, 4.3 км до Щёлковского шоссе и СВХ;-плотный жилой массив;-развитая инфраструктура района;-высокий автомобильный и пешеходный трафик;-отлично просматривается, находится в легком доступе для потенциальных клиентов;-гибкая планировка, позволяющая адаптировать пространство под различные нужды;-подходит под любой вид деятельности: ритейл, кофейня, салон, аптека, офис, услуги;-витринное остекление;-возможность размещения вывески;-наземная парковка.Технические параметры объекта:-отдельный вход с улицы.-электрическая мощность: 10 кВт.Ввод в эксплуатацию: II квартал 2028 года. Свяжитесь с нами для получения дополнительной информации

Читать полностью
    Позвонить Написать
    62 847 660 Р839 800 $ или 718 000
    Агент
    +7 (938) 656-74-88
    Начать чат с агентом
    Похожие предложения
    Помещение свободного назначения в Москва 3-я Гражданская ул., 1 (89 м) - Фото 1
    Помещение свободного назначения в Москва 3-я Гражданская ул., 1 (89 м) - Фото 2
    1065307. Предлагаем помещение свободного назначения в ЖК Sokolinn Park , площадью 88.5 кв. м, расположенное на первом этаже 22-этажного жилого дома. Без комиссии для покупателя.Преимущества объекта:-первая линия ул. 3-я Гражданская;-ЖК состоит из 2 корпусов...
    • 1/22 эт.
    62 847 660 Р
    Агент
    +7 (938) Показать номер
    Посмотреть контакты
    Помещение свободного назначения в Москва бул. Скандинавский, 6 (194 м) - Фото 1
    Помещение свободного назначения в Москва бул. Скандинавский, 6 (194 м) - Фото 2
    ПСН 194 м в здании ЖК Скандинавия (класс B) - подходит для собственного бизнеса или сдачи в аренду.Рассчитаем доходность и поможем найти арендатора под этот объект.Ключевые параметры:Площадь: 194 м.Планировка: смешанная.Состояние: под отделку.Этаж:...
    • 1/13 эт.
    62 583 834 Р
    Агент
    +7 (985) Показать номер
    Посмотреть контакты
    Помещение свободного назначения в Москва Старопетровский проезд, 11 ... - Фото 1
    Помещение свободного назначения в Москва Старопетровский проезд, 11 ... - Фото 2
    Цена указана с учётом скидки.Продаётся помещение свободного назначения площадью 104 кв. м. в новостройке Левел Войковская по адресу Москва, САО, Войковский, Старопетровский проезд, вл 11. Помещение со свободной планировкой. Окна с видом на улицу. Отдельный...
    • 1/1 эт.
    62 265 765 Р
    Агент
    +7 (917) Показать номер
    Посмотреть контакты
    Помещение свободного назначения в Москва Дубравная ул., 51с1 (74 м) - Фото 1
    Помещение свободного назначения в Москва Дубравная ул., 51с1 (74 м) - Фото 2
    1119697. Предлагаем помещение свободного назначения с арендатором Оптика в МФК Митино Парк , площадью 74 кв. м, расположенное на первом этаже 3-этажного здания. Без комиссии для покупателя.Преимущества объекта:-на пересечении ул. Дубравная и Барышиха;-первая...
    • 1/3 эт.
    64 000 000 Р
    Агент
    +7 (938) Показать номер
    Посмотреть контакты
    Помещение свободного назначения в Москва ул. Милашенкова, 10 (140 м) - Фото 1
    Помещение свободного назначения в Москва ул. Милашенкова, 10 (140 м) - Фото 2
    Продажа готового арендного бизнеса - помещение площадью 140,3 м, расположенного на первом этаже в Бутырском районе (СВАО) г. Москвы. Форма сделки: Помещение в собственности физ.лиц. Продажа по ДКП. Обременения отсутствуют. Без комиссии. Преимущества...
    • 1/12 эт.
    63 000 000 Р
    Агент
    +7 (918) Показать номер
    Посмотреть контакты

    Не нашли подходящего объявления?

    Оставьте заявку, и наши риэлторы подберут псн в районе Москвы

    (0)