67 000 000 Р 870 400 $ или 744 300

Информация об помещении

1
Этаж

Состояние и оснащение

Количество этажей
15
Развернуть
Агент
+7 (938) 656-74-88
Начать чат с агентом

Помещение свободного назначения в Москва Бережковская наб., 12 (93 м)

635072. Предлагаем торговое помещение с арендатором (mbulak, микрозаймы), площадью 93.1 кв. м., расположенное на первом этаже жилого дома. Без комиссии для покупателя.Преимущества объекта:-первая линия домов по Бережковской набережной;-9 минут пешком от станции метро Киевская, удобные подъездные пути;-объект отлично просматривается, находится в легком доступе для клиентов;-развитая инфраструктура района;-есть арендатор;-зальная планировка;-зона разгрузки/погрузки;-вытяжка для общепита;-подведено заземление;-все кабинеты оборудованы мокрой точкой (можно убрать или переместить, коммуникации проложены по потолку цокольного этажа);-установлен бойлер для горячей воды. Система вентиляции, кондиционеры, система контроля доступа, видеонаблюдение, охрана, в оконных проемах электрические жалюзи;-парковка бесплатная, напротив остановка общественного транспорта и пешеходный переход;-есть возможность разместить летнюю веранду.Технические параметры объекта:-отдельный вход с торца здания;-электрическая мощность: 18 кВт;-высота потолков: 3,2 м.Информация об арендаторе:-арендатор: mbulak, микрозаймы;-доход:уб/мес.Свяжитесь с нами для получения дополнительной информации

Читать полностью
    Позвонить Написать
    67 000 000 Р870 400 $ или 744 300
    Агент
    +7 (938) 656-74-88
    Начать чат с агентом
    Похожие предложения
    Помещение свободного назначения в Москва ул. Воейкова, 2 (130 м) - Фото 1
    Помещение свободного назначения в Москва ул. Воейкова, 2 (130 м) - Фото 2
    Продается помещение в ЖК без единого арендатора Предложение с НДС 20 Помещение угловое, много окон и высокие потолки, достаточная электроэнергия. Подходит под разные виды деятельности. В ЖК нет ни одного арендатора, выбор максимальный.Собственность...
    • 1/11 эт.
    66 000 000 Р
    Агент
    +7 (915) Показать номер
    Посмотреть контакты
    Продается ПСН 225.8 м2 - Фото 1
    Продается ПСН 225.8 м2 - Фото 2
    Продается ПСН 225.8 м2 - Фото 3
    Продается ПСН 225.8 м2 - Фото 4
    Продается ПСН 225.8 м2 - Фото 5
    Продается ПСН 225.8 м2 - Фото 6
    Продается ПСН 225.8 м2 - Фото 7
    Продается ПСН 225.8 м2 - Фото 8
    Продается ПСН 225.8 м2 - Фото 9
    Продается ПСН 225.8 м2 - Фото 10
    полезная площадь 225.8м²

    Предлагается коммерческое помещение свободного назначения в ЖК «Басманный от Гранель». Возможное назначение: АВТОМОЙКА Коммерческое помещение площадью 225,8 кв. м на -1-м этаже 19-этажного жилого дома бизнес-класса в сердце Басманного района Москвы (ЦАО)...
    • 225.8 м²
    • -1/19 эт.
    67 940 000 Р
    Агент
    +7 (495) Показать номер
    Посмотреть контакты
    Помещение свободного назначения в Москва Ленинградский просп., 71КГ ... - Фото 1
    Помещение свободного назначения в Москва Ленинградский просп., 71КГ ... - Фото 2
    1163399. Предлагаем помещение свободного назначения, площадью 43.7 кв. м., расположенное на антресоли первого этажа 8-этажного жилого дома.Преимущества объекта:-первая линия Ленинградского проспекта;-2 минуты пешком от станции метро Сокол ;-густонаселённый...
    • 1/8 эт.
    66 000 000 Р
    Агент
    +7 (938) Показать номер
    Посмотреть контакты
    Помещение свободного назначения в Москва Складочная ул., 6С36 (205 м) - Фото 1
    Помещение свободного назначения в Москва Складочная ул., 6С36 (205 м) - Фото 2
    1150261. Предлагаем к приобретению торговое помещение в бизнес-квартале Gustav , площадью 204.7 кв. м., расположенное на первом этаже 7-этажного здания. Помещение 1.Р.12. Без комиссии для покупателя.Преимущества объекта:-первая линия ул. Складочная;-10...
    • 1/7 эт.
    67 824 324 Р
    Агент
    +7 (938) Показать номер
    Посмотреть контакты
    Помещение свободного назначения в Москва БК Прокшино тер., 3 (147 м) - Фото 1
    Помещение свободного назначения в Москва БК Прокшино тер., 3 (147 м) - Фото 2
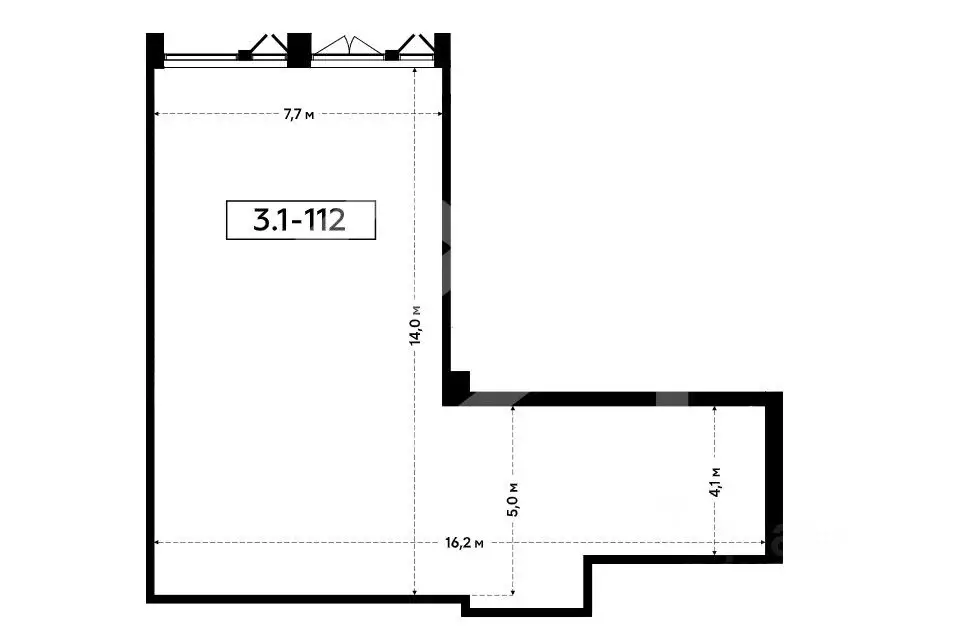
    1102296. Предлагаем помещение свободного назначения в бизнес-квартале Прокшино , площадью 147.1 кв. м, расположенное на первом этаже 12-этажного жилого дома. Корпус: 3.1. Без комиссии для покупателя.Преимущества объекта:-первая линия Филатовского шоссе;-офисный...
    • 1/12 эт.
    66 222 949 Р
    Агент
    +7 (938) Показать номер
    Посмотреть контакты

    Не нашли подходящего объявления?

    Оставьте заявку, и наши риэлторы подберут псн в районе Москвы

    (0)