18 060 000 Р 238 100 $ или 202 300

Информация об помещении

1
Этаж

Состояние и оснащение

Количество этажей
9
Развернуть
Агент
+7 (938) 656-74-88
Начать чат с агентом

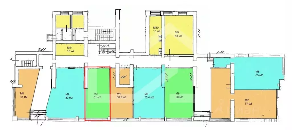
Помещение свободного назначения в Москва просп. Мира, 131К1 (75 м)

1166935. Предлагаем помещение свободного назначения во встроенно-пристроенной части, площадью 75.4 кв. м, расположенное на первом этаже 9-этажного жилого дома. Без комиссии для покупателя.Преимущества объекта:-первая линия проспекта Мира;-шаговая доступность от станции метро ВДНХ (15 минут пешком);-удобная транспортная доступность: 2.8 км до Ярославского шоссе, 3.4 км до СВХ, 5.3 км до ТТК, 6.5 км до Алтуфьевского шоссе;-плотный жилой массив;-развитая инфраструктура района;-высокий автомобильный и пешеходный трафик;-отлично просматривается, находится в легком доступе для потенциальных клиентов;-гибкая планировка, позволяющая адаптировать пространство под различные нужды;-витринное остекление;-возможность размещения вывески;-наземная парковка;-рядом остановка общественного транспорта.Технические параметры объекта:-отдельный вход с улицы.-электрическая мощность: 15 кВт.-высота потолков: 4 м.Свяжитесь с нами для получения дополнительной информации

Читать полностью
    Позвонить Написать
    18 060 000 Р238 100 $ или 202 300
    Агент
    +7 (938) 656-74-88
    Начать чат с агентом
    Похожие предложения в Москве
    Помещение свободного назначения в Москва просп. Мира, 131К1 (60 м) - Фото 1
    Помещение свободного назначения в Москва просп. Мира, 131К1 (60 м) - Фото 2
    1166933. Предлагаем помещение свободного назначения во встроенно-пристроенной части, площадью 60.2 кв. м, расположенное на первом этаже 9-этажного жилого дома. Без комиссии для покупателя.Преимущества объекта:-первая линия проспекта Мира;-шаговая доступность...
    • 1/9 эт.
    18 060 000 Р
    Агент
    +7 (938) Показать номер
    Посмотреть контакты
    Помещение свободного назначения в Москва просп. Мира, 131К1 (61 м) - Фото 1
    Помещение свободного назначения в Москва просп. Мира, 131К1 (61 м) - Фото 2
    1166932. Предлагаем помещение свободного назначения во встроенно-пристроенной части, площадью 61 кв. м, расположенное на первом этаже 9-этажного жилого дома. Без комиссии для покупателя.Преимущества объекта:-первая линия проспекта Мира;-шаговая доступность...
    • 1/9 эт.
    18 300 000 Р
    Агент
    +7 (938) Показать номер
    Посмотреть контакты
    Помещение свободного назначения в Москва просп. Мира, 131К1 (75 м) - Фото 1
    Помещение свободного назначения в Москва просп. Мира, 131К1 (75 м) - Фото 2
    1166935. Предлагаем помещение свободного назначения во встроенно-пристроенной части, площадью 75.4 кв. м, расположенное на первом этаже 9-этажного жилого дома. Без комиссии для покупателя.Преимущества объекта:-первая линия проспекта Мира;-шаговая доступность...
    • 1/9 эт.
    18 060 000 Р
    Агент
    +7 (938) Показать номер
    Посмотреть контакты
    Помещение свободного назначения в Москва просп. Мира, 131К1 (61 м) - Фото 1
    Помещение свободного назначения в Москва просп. Мира, 131К1 (61 м) - Фото 2
    1166932. Предлагаем помещение свободного назначения во встроенно-пристроенной части, площадью 61 кв. м, расположенное на первом этаже 9-этажного жилого дома. Без комиссии для покупателя.Преимущества объекта:-первая линия проспекта Мира;-шаговая доступность...
    • 1/9 эт.
    18 300 000 Р
    Агент
    +7 (938) Показать номер
    Посмотреть контакты
    Помещение свободного назначения в Москва просп. Мира, 131К1 (60 м) - Фото 1
    Помещение свободного назначения в Москва просп. Мира, 131К1 (60 м) - Фото 2
    1166933. Предлагаем помещение свободного назначения во встроенно-пристроенной части, площадью 60.2 кв. м, расположенное на первом этаже 9-этажного жилого дома. Без комиссии для покупателя.Преимущества объекта:-первая линия проспекта Мира;-шаговая доступность...
    • 1/9 эт.
    18 060 000 Р
    Агент
    +7 (938) Показать номер
    Посмотреть контакты

    Не нашли подходящего объявления?

    Оставьте заявку, и наши риэлторы подберут псн в районе Москвы

    (0)