91 954 456 Р 1 194 600 $ или 1 021 600

Информация об помещении

1
Этаж

Состояние и оснащение

Количество этажей
7
Развернуть
Агент
+7 (938) 656-74-88
Начать чат с агентом

Помещение свободного назначения в Москва Складочная ул., 6С36 (131 м)

904108. Предлагаем к приобретению торговое помещение в бизнес-квартале Gustav , площадью 131.12 кв. м., расположенное на первом этаже 7-этажного здания. Без комиссии для покупателя.Преимущества объекта:-первая линия ул. Складочная;-10 минут пешком от станции метро Савёловская ;-удобная транспортная доступность: 2.3 км до Старомарьинского шоссе, 3.6 км до Дмитровского шоссе, 4 км до ТТК, 4.3 км до проспекта Мира, 5.7 км до Садового кольца;-плотный жилой массив;-развитая инфраструктура в окружении;-сверхинтенсивный автомобильный и пешеходный трафик;-предусмотрены пространства и для офисов и для производств;-отлично просматривается, находится в легком доступе для потенциальных клиентов;-гибкая планировка, позволяющая адаптировать пространство под различные нужды;-мокрая точка;-в каждом помещении — радиаторы отопления;-во всех помещениях установлены датчики АПС, в коридорах — дымоудаление;-приточно-вытяжная вентиляция по нормам (возможно увеличение воздухообмена индивидуально);-подвод водоснабжения/водоотведения;-введены в эксплуатацию лифт и выполнена отделка лестничных маршей;-двери — стеклянные, с возможностью матирования;-витринное остекление;-место для вывески;-подземная парковка на 228 машиномест;-рядом остановки общественного транспорта и пешеходный переход.Технические параметры объекта:-отдельный вход с улицы;-электрическая мощность: 26 кВт;-высота потолков: 5 м.Свяжитесь с нами для получения дополнительной информации

Читать полностью
    Позвонить Написать
    91 954 456 Р1 194 600 $ или 1 021 600
    Агент
    +7 (938) 656-74-88
    Начать чат с агентом
    Похожие предложения
    Помещение свободного назначения в Москва Складочная ул., 6С36 (134 м) - Фото 1
    Помещение свободного назначения в Москва Складочная ул., 6С36 (134 м) - Фото 2
    1003955. Предлагаем к приобретению торговое помещение в бизнес-квартале Gustav , площадью 134 кв. м., расположенное на первом этаже 7-этажного здания. Помещение 1.Р.8. Без комиссии для покупателя.Преимущества объекта:-первая линия ул. Складочная;-10...
    • 1/7 эт.
    91 857 000 Р
    Агент
    +7 (938) Показать номер
    Посмотреть контакты
    904108. Предлагаем к приобретению торговое помещение в бизнес-квартале Gustav , площадью 131.12 кв. м., расположенное на первом этаже 7-этажного здания. Без комиссии для покупателя.Преимущества объекта:-первая линия ул. Складочная;-10 минут пешком от...
    • 1/7 эт.
    91 049 728 Р
    Агент
    +7 (938) Показать номер
    Посмотреть контакты
    1003955. Предлагаем к приобретению торговое помещение в бизнес-квартале Gustav , площадью 134 кв. м., расположенное на первом этаже 7-этажного здания. Помещение 1.Р.8. Без комиссии для покупателя.Преимущества объекта:-первая линия ул. Складочная;-10...
    • 1/7 эт.
    91 857 000 Р
    Агент
    +7 (938) Показать номер
    Посмотреть контакты
    Помещение свободного назначения в Москва просп. Мира, 54 (155 м) - Фото 1
    Помещение свободного назначения в Москва просп. Мира, 54 (155 м) - Фото 2
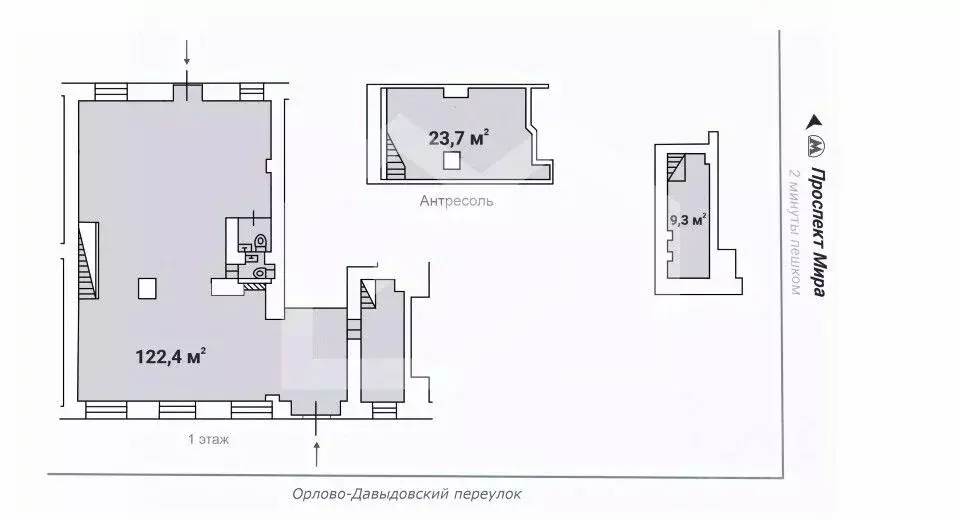
    1018536. Предлагаем помещение свободного назначения, площадью 155.4 кв. м, расположенное на первом этаже и антресоли 8-этажного жилого дома. Без комиссии для покупателя.Преимущества объекта:-первая линия проспекта Мира;-шаговая доступность от станции...
    • 1/8 эт.
    92 400 000 Р
    Агент
    +7 (938) Показать номер
    Посмотреть контакты
    Помещение свободного назначения в Москва Малая Ботаническая ул., 3 ... - Фото 1
    Помещение свободного назначения в Москва Малая Ботаническая ул., 3 ... - Фото 2
    642120. Предлагаем торговое помещение с сетевым арендатором - магазин Магнолия , площадью 349,6 кв. м., расположенное на первом этаже жилого дома. Без комиссии для покупателя.Преимущества объекта:-первая линия Малой Ботанической улицы;-15 минут пешком...
    • 1/5 эт.
    93 000 000 Р
    Агент
    +7 (938) Показать номер
    Посмотреть контакты

    Не нашли подходящего объявления?

    Оставьте заявку, и наши риэлторы подберут псн в районе Москвы

    (0)