52 000 000 Р 675 600 $ или 577 700

Информация об помещении

1
Этаж

Состояние и оснащение

Количество этажей
12
Развернуть
Агент
+7 (938) 656-74-88
Начать чат с агентом

Помещение свободного назначения в Москва проезд Чечерский, 56к1 (220 ...

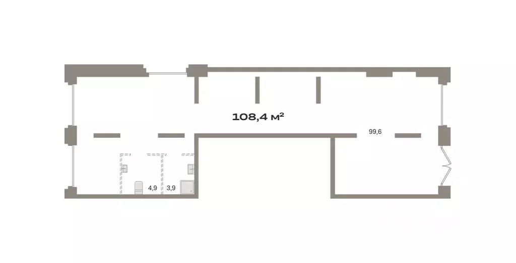
864772. Предлагаем помещение свободного назначения с арендатором Магник Косметик, площадью 220 кв. м., расположенное на первом этаже жилого дома. Без комиссии для покупателя.Преимущества объекта:-первая линия Чечёрского проезда;-13 минут пешком от станции метро Бунинская аллея ;-удобный выезд на Симферопольское и Варшавское шоссе;-объект отлично просматривается, находится в легком доступе для клиентов;-развитая инфраструктура района;-надежный сетевой арендатор;-смешанная планировка;-место для вывески;-зона разгрузки/погрузки;-наземная парковка.Технические параметры объекта:-3 отдельные входные группы;-электрическая мощность: 30 кВт;-высота потолков: 3.2 м.Информация об арендаторе:-арендатор: Магнит Косметик, ДДА;-доход: по запросуСвяжитесь с нами для получения дополнительной информации

Читать полностью
    Позвонить Написать
    52 000 000 Р675 600 $ или 577 700
    Агент
    +7 (938) 656-74-88
    Начать чат с агентом
    Похожие предложения
    Продается ПСН 116 м2 - Фото 1
    Продается ПСН 116 м2 - Фото 2
    Продается ПСН 116 м2 - Фото 3
    Продается ПСН 116 м2 - Фото 4
    Продается ПСН 116 м2 - Фото 5
    полезная площадь 116м²

    Стрит-ритейл в новом ЖК «Страна. Заречная» в Москве от федерального застройщика «Страна Девелопмент». Проект расположен в пешей доступности от станции МЦД «Перерва». Район Марьино активно развивается: строятся новые жилые кварталы, социальные объекты...
    • 116 м²
    • 1/38 эт.
    52 990 000 Р
    Агент
    +7 (495) Показать номер
    Посмотреть контакты
    Помещение свободного назначения в Москва 3-я оч., Шагал жилой ... - Фото 1
    Помещение свободного назначения в Москва 3-я оч., Шагал жилой ... - Фото 2
    1070893. Предлагаем помещение свободного назначения в ЖК Shagal , площадью 81.9 кв. м, расположенное на первом этаже 5-этажного жилого дома. 3 очередь, 3 этап, корпус 11. Секция 11.2. Без комиссии для покупателя.Преимущества объекта:-в престижном Даниловском...
    • 1/5 эт.
    51 750 944 Р
    Агент
    +7 (938) Показать номер
    Посмотреть контакты
    Помещение свободного назначения в Москва Ты и я жилой комплекс, к3 ... - Фото 1
    Помещение свободного назначения в Москва Ты и я жилой комплекс, к3 ... - Фото 2
    643384. Предлагаем помещение свободного назначения с арендаторами Ароматный Мир и вакантный блок, площадью 120 кв. м., расположенное на первом этаже жилого дома в ЖК Ты и Я .Преимущества объекта:-ЖК состоит из 22 корпусов переменной этажности (от 6...
    • 1/17 эт.
    52 000 000 Р
    Агент
    +7 (938) Показать номер
    Посмотреть контакты
    Помещение свободного назначения в Москва Холодильный пер., 3к1 (101 м) - Фото 1
    Помещение свободного назначения в Москва Холодильный пер., 3к1 (101 м) - Фото 2
    1147226. Предлагаем офисное помещение площадью 101,2 кв. м, расположенное на 7 этаже строящегося БЦ Башня Рябов Преимущества объекта:- Бизнес-центр класса А- Шаговая доступность от станции метро Тульская (1-2 минуты пешком)- Этаж: 7- Помещение предлагается...
    • 7/13 эт.
    52 624 000 Р
    Агент
    +7 (938) Показать номер
    Посмотреть контакты
    Помещение свободного назначения в Москва Квартал Метроном жилой ... - Фото 1
    Помещение свободного назначения в Москва Квартал Метроном жилой ... - Фото 2
    Комплекс из восьми жилых домов, состоящих из разноуровневых секций высотой от 6 до 55 этажей. Проект расположен в Восточном Бирюлево, в нём будут проживать более восьми тысяч человек. Здесь разместится торговый центр и павильон проката, а первые этажи...
    • 1/31 эт.
    51 370 000 Р
    Агент
    +7 (985) Показать номер
    Посмотреть контакты

    Не нашли подходящего объявления?

    Оставьте заявку, и наши риэлторы подберут псн в районе Москвы

    (0)