Россия, Москва, Верхняя Первомайская ул., 29
162 800 000 Р 2 115 000 $ или 1 808 600

Информация об помещении

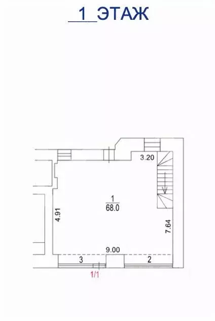
1
Этаж

Состояние и оснащение

Количество этажей
5
Развернуть
Агент
+7 (938) 656-74-88
Начать чат с агентом

Помещение свободного назначения в Москва Верхняя Первомайская ул., 29 ...

916200. Предлагаем торговое помещение с сетевым арендатором Дикси , площадью 515 кв. м, расположенное на первом этаже 5-этажного жилого дома. Без комиссии для покупателя.Преимущества объекта:-первая линия ул. Верхняя Первомайская;-шаговая доступность от станции метро Первомайская (12 минут пешком);-удобная транспортная доступность: 2.3 км до Щёлковского шоссе, 4.3 км до МКАД, 5.8 км до шоссе Энтузиастов;-плотный жилой массив;-мало коммерческих помещений;-высокий автомобильный и пешеходный трафик;-отлично просматривается, находится в легком доступе для потенциальных клиентов;-гибкая планировка, позволяющая адаптировать пространство под различные нужды;-центральные коммуникации;-возможность размещения вывески;-зона разгрузки/погрузки;-наземная парковка;-рядом остановки общественного транспорта.Технические параметры объекта:-3 отдельные входные группы.-электрическая мощность: 35 кВт.-высота потолков: 3.5 м.Информация об арендаторе:-арендатор: Дикси, ДДА.-прибыль: по запросу.Свяжитесь с нами для получения дополнительной информации

Читать полностью
    Позвонить Написать
    162 800 000 Р2 115 000 $ или 1 808 600
    Агент
    +7 (938) 656-74-88
    Начать чат с агентом
    Похожие предложения
    Помещение свободного назначения в Москва пер. Сивцев Вражек, 6/2 (192 ... - Фото 1
    Помещение свободного назначения в Москва пер. Сивцев Вражек, 6/2 (192 ... - Фото 2
    947938. Предлагаем помещение свободного назначения, площадью 192 кв. м, расположенное в подвале и на первом этаже 5-этажного жилого дома. Без комиссии для покупателя.Преимущества объекта:-первая линия пер. Сивцев Вражек;-шаговая доступность от станции...
    • 1/5 эт.
    160 000 000 Р
    Агент
    +7 (938) Показать номер
    Посмотреть контакты
    Помещение свободного назначения в Москва Каширский проезд, 25к2 (291 ... - Фото 1
    Помещение свободного назначения в Москва Каширский проезд, 25к2 (291 ... - Фото 2
    957050. Предлагаем к приобретению помещение в ЖК LIFE-Варшавская , площадью 290.9 кв. м, расположенное на первом этаже жилого дома. Преимущества объекта:- первая линия домов;- напротив вестибюля станция метро Варшавская ;- отлично просматривается, находится...
    • 1/25 эт.
    159 000 000 Р
    Агент
    +7 (938) Показать номер
    Посмотреть контакты
    Помещение свободного назначения в Москва ул. Архитектора Власова, 71к2 ... - Фото 1
    Помещение свободного назначения в Москва ул. Архитектора Власова, 71к2 ... - Фото 2
    862864. Предлагаем помещение свободного назначения в ЖК Ever , площадью 170.8 кв. м, расположенное на первом этаже 34-этажного жилого дома. Корпус: 2. Без комиссии для покупателя.Преимущества объекта:-первая линия ул. Архитектора Власова;-ЖК состоит...
    • 1/34 эт.
    153 900 000 Р
    Агент
    +7 (938) Показать номер
    Посмотреть контакты
    Помещение свободного назначения в Москва Сидней Сити жилой комплекс, ... - Фото 1
    Помещение свободного назначения в Москва Сидней Сити жилой комплекс, ... - Фото 2
    859375. Предлагаем помещение свободного назначения в ЖК Sydney City , площадью 96.2 кв. м, расположенное на первом этаже 23-этажного жилого дома. Корпус: 6. Без комиссии для покупателя.Преимущества объекта:-ЖК состоит из 13 корпусов переменной этажности...
    • 1/23 эт.
    153 900 000 Р
    Агент
    +7 (938) Показать номер
    Посмотреть контакты
    Помещение свободного назначения в Москва Большая Дорогомиловская ул., ... - Фото 1
    Помещение свободного назначения в Москва Большая Дорогомиловская ул., ... - Фото 2
    641881. Предлагаем помещение свободного назначения с арендаторами Lamoda, Ювелирный магазин, Ремонт и сервис техники, площадью 345 кв. м, расположенное на первом и втором этажах 7-этажного жилого дома. Без комиссии для покупателя.Преимущества объекта:-первая...
    • 1/7 эт.
    170 000 000 Р
    Агент
    +7 (938) Показать номер
    Посмотреть контакты

    Не нашли подходящего объявления?

    Оставьте заявку, и наши риэлторы подберут псн в районе Москвы

    (0)