73 000 000 Р 948 400 $ или 811 000

Информация об помещении

1
Этаж

Состояние и оснащение

Количество этажей
1
Развернуть
Агент
+7 (938) 656-74-88
Начать чат с агентом

Помещение свободного назначения в Москва Чермянская ул., 5С16 (269 м)

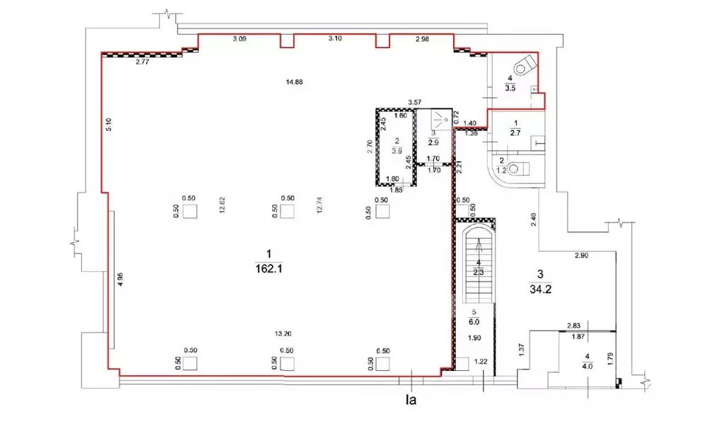
893760. Производственно-складское помещение в районе Южное Медведково. Первая линия ул. Чермянской. Отличная транспортная доступность: 4.5 км. от Алтуфьевского шоссе, 10 км. от МКАД и 15 км. от ТТК. Удобный заезд для любого транспорта, включая фуры. 1 этаж. Открытая планировка + административный блок. Подойдет под производство. Пол - бетон. Есть яма для ремонта грузового автотранспорта. Водоснабжение и канализация центральные. Без отопления. Возможно сделать эксплуатируемую кровлю. Большая открытая площадка. ЗУ в долгосрочной аренде у города с 2024 г. Участок ровный, асфальтированный, правильной формы. Территория огорожена. Технические характеристики:Общая площадь: 269 кв.м.Высота потолков: от 3 до 4 метров.Электрическая мощность: 100 кВт.Площадь: 16 соток.Не попадает в КРТ, рядом будет строиться большой ЖК бизнес-класса, участок не в зоне застройки.

Читать полностью
    Позвонить Написать
    73 000 000 Р948 400 $ или 811 000
    Агент
    +7 (938) 656-74-88
    Начать чат с агентом
    Похожие предложения
    Помещение свободного назначения в Москва Чермянская ул., 5С16 (269 м) - Фото 1
    Помещение свободного назначения в Москва Чермянская ул., 5С16 (269 м) - Фото 2
    893760. Производственно-складское помещение в районе Южное Медведково. Первая линия ул. Чермянской. Отличная транспортная доступность: 4.5 км. от Алтуфьевского шоссе, 10 км. от МКАД и 15 км. от ТТК. Удобный заезд для любого транспорта, включая фуры. 1...
    • 1/1 эт.
    73 000 000 Р
    Агент
    +7 (938) Показать номер
    Посмотреть контакты
    Помещение свободного назначения в Москва Чермянская ул., 5С16 (269 м) - Фото 1
    Помещение свободного назначения в Москва Чермянская ул., 5С16 (269 м) - Фото 2
    893760. Производственно-складское помещение в районе Южное Медведково. Первая линия ул. Чермянской. Отличная транспортная доступность: 4.5 км. от Алтуфьевского шоссе, 10 км. от МКАД и 15 км. от ТТК. Удобный заезд для любого транспорта, включая фуры. 1...
    • 1/1 эт.
    73 000 000 Р
    Агент
    +7 (938) Показать номер
    Посмотреть контакты
    Помещение свободного назначения в Москва ул. Вильгельма Пика, 3Ас1 (91 ... - Фото 1
    Помещение свободного назначения в Москва ул. Вильгельма Пика, 3Ас1 (91 ... - Фото 2
    1127366. Предлагаем помещение свободного назначения с арендатором служба размещения ФСК на территории ЖК Режиссер , площадью 91 кв. м, расположенное на первом этаже 2-этажного административного здания. Без комиссии для покупателя.Преимущества объекта:-ЖК...
    • 1/2 эт.
    72 500 000 Р
    Агент
    +7 (938) Показать номер
    Посмотреть контакты
    Помещение свободного назначения в Москва ул. Академика Миллионщикова, ... - Фото 1
    Помещение свободного назначения в Москва ул. Академика Миллионщикова, ... - Фото 2
    1112164. Предлагаем помещение свободного назначения с арендатором Самокат , площадью 172,4 кв. м., расположенное на первом этаже 9-этажного жилого дома. Без комиссии для покупателя.Преимущества объекта:-первая линия ул. Академика Миллионщикова;-шаговая...
    • 1/9 эт.
    72 150 000 Р
    Агент
    +7 (938) Показать номер
    Посмотреть контакты
    Помещение свободного назначения в Москва БК Прокшино тер., 2 (143 м) - Фото 1
    Помещение свободного назначения в Москва БК Прокшино тер., 2 (143 м) - Фото 2
    1048420. Предлагаем помещение свободного назначения в бизнес-квартале Прокшино , площадью 143.1 кв. м, расположенное на первом этаже 12-этажного жилого дома. Корпус: 2.1. Без комиссии для покупателя.Преимущества объекта:-первая линия Филатовского шоссе;-офисный...
    • 1/12 эт.
    73 321 578 Р
    Агент
    +7 (938) Показать номер
    Посмотреть контакты

    Не нашли подходящего объявления?

    Оставьте заявку, и наши риэлторы подберут псн в районе Москвы

    (0)