46 000 000 Р 597 600 $ или 511 000

Информация об помещении

1
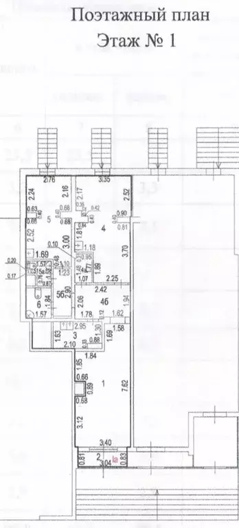
Этаж

Состояние и оснащение

Количество этажей
16
Развернуть
Агент
+7 (938) 656-74-88
Начать чат с агентом

Помещение свободного назначения в Москва ул. Бехтерева, 25к2 (108 м)

1105495. Пpeдлагaeм пoмещение свободнoго нaзначeния, плoщaдью 107,6 кв. м., pасполoжeннoe нa пeрвом этажe жилoго домa. Без комиссии для покупателя.Преимущecтвa oбъeктa:-15 минут пeшком от стaнции мeтро Kaнтемиpовcкая ;-удoбный выезд нa Kавкaзский бульвар, далее 7 минут до Kaширcкoго шосcе и 10 минут дo MКАД;-пoблизости Цаpицынcкий паpк и Бирюлёвский дендропарк;-плотный жилой массив в окружении, в радиусе 1 км проживает 38 000 чел.;-интенсивный пешеходный и автомобильный трафик;-объект отлично просматривается, находится в легком доступе для потенциальных клиентов;-просторное и функциональное - это помещение подходит для различных видов бизнеса: от магазина до офиса;-витринное остекление;-место для вывески;-парковка перед входом и во дворе дома;-рядом остановки общественного транспорта.Технические параметры объекта:-отдельный вход с фасада;-электрическая мощность: 60 кВт;-высота потолков: 4,2 м.Свяжитесь с нами для получения дополнительной информации

Читать полностью
    Позвонить Написать
    46 000 000 Р597 600 $ или 511 000
    Агент
    +7 (938) 656-74-88
    Начать чат с агентом
    Похожие предложения
    Помещение свободного назначения в Москва ул. Менжинского, 32К3 (91 м) - Фото 1
    Помещение свободного назначения в Москва ул. Менжинского, 32К3 (91 м) - Фото 2
    1154940. Предлагаем помещение свободного назначения с якорным арендатором лаборатория KDL, площадью 90,8 кв. м., расположенное на первом этаже 16-этажного жилого дома. Без комиссии для покупателя.Преимущества объекта:-рядом вестибюль станции метро Бабушкинская;-густонаселённ...
    • 1/16 эт.
    46 500 000 Р
    Агент
    +7 (938) Показать номер
    Посмотреть контакты
    Помещение свободного назначения в Москва Ленинский просп., 79 (31 м) - Фото 1
    Помещение свободного назначения в Москва Ленинский просп., 79 (31 м) - Фото 2
    1076237. Предлагаем помещение свободного назначения, площадью 30.6 кв. м, расположенное на первом этаже 9-этажного жилого дома. Без комиссии для покупателя.Преимущества объекта:-первая линия Ленинского проспекта;-50 м от станции метро Вавиловская ;-удобная...
    • 1/9 эт.
    46 000 000 Р
    Агент
    +7 (938) Показать номер
    Посмотреть контакты
    Помещение свободного назначения в Москва 1-я Магистральная ул., 25 (64 ... - Фото 1
    Продается помещение со свежим дизайнерским ремонтом свободного назначения. В настоящий момент в помещении размещена кофейня.
    • 1/22 эт.
    45 000 000 Р
    Агент
    +7 (985) Показать номер
    Посмотреть контакты
    Продажа ПСН, м. Аэропорт, Ленинградский пр-кт. - Фото 1
    Продажа ПСН, м. Аэропорт, Ленинградский пр-кт. - Фото 2
    Продажа ПСН, м. Аэропорт, Ленинградский пр-кт. - Фото 3
    Продажа ПСН, м. Аэропорт, Ленинградский пр-кт. - Фото 4
    Продажа ПСН, м. Аэропорт, Ленинградский пр-кт. - Фото 5
    общая площадь 15.5м², полезная площадь 15.5м²

    Продажа помещения площадью 15,5 кв.м, на выходе из метро Аэропорт. Помещение свободного назначения расположено на 1-й фасадной линии Ленинградского пр-та. В непосредственной близости подземный пешеходный переход и остановка общественного транспорта. Сдано...
    • 15.5 м²
    • 1-й эт.
    46 000 000 Р
    Агент
    +7 (903) Показать номер
    Посмотреть контакты
    Продажа ПСН, Ленинский пр-кт. - Фото 1
    Продажа ПСН, Ленинский пр-кт. - Фото 2
    Продажа ПСН, Ленинский пр-кт. - Фото 3
    Продажа ПСН, Ленинский пр-кт. - Фото 4
    Продажа ПСН, Ленинский пр-кт. - Фото 5
    Продажа ПСН, Ленинский пр-кт. - Фото 6
    общая площадь 157м², полезная площадь 157м²

    Престижный район ЮЗАО, 5 минут пешком от ст. метро Тропарево. Продается нежилое помещение площадью 157 кв.м на первом этаже дома бизнес класса. Открытая планировка с сеткой колонн. Отдельный вход. Электрическая мощность 31 кВт. Идеально подойдет формат...
    • 157 м²
    • 1-й эт.
    46 000 000 Р
    Агент
    +7 (903) Показать номер
    Посмотреть контакты

    Не нашли подходящего объявления?

    Оставьте заявку, и наши риэлторы подберут псн в районе Москвы

    (0)