949 292 161 Р 12 057 900 $ или 10 431 400

Информация об помещении

3
Этаж

Состояние и оснащение

Количество этажей
3
Развернуть
Агент
+7 (938) 656-74-88
Начать чат с агентом

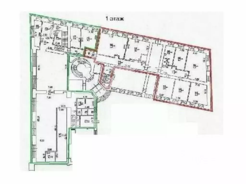
Помещение свободного назначения в Москва просп. Мира, 16С2 (3925 м)

854038. Предлагается здание 3924,8 кв. м в пешей доступности от станций метро Проспект Мира, Сухаревская. Первая линия домов. Здание реконструировано в 2006 году, высота потолков 2,9 м и 3,10 м, подземный паркинг площадью 600 кв. м, сохранен исторический фасад особняка. В здании три отдельных входа: один с улицы и два со двора, огороженная территория. Земельный участок 1318 кв. м в аренде у города до 2072 года. Парковка: предусмотрена наземная парковка на 12 машиномест, а также 10 машиномест в подземном паркинге. Цена 3 000 долларов/кв. м по курсу ЦБ РФ.

Читать полностью
    Позвонить Написать
    949 292 161 Р12 057 900 $ или 10 431 400
    Агент
    +7 (938) 656-74-88
    Начать чат с агентом
    Похожие предложения
    Помещение свободного назначения в Москва Неглинная ул., 14С1а (401 м) - Фото 1
    Помещение свободного назначения в Москва Неглинная ул., 14С1а (401 м) - Фото 2
    699586. Предлагаем торговое помещение с арендатором - Банк ВТБ, площадью 401,3 кв. м., расположенное на первом этаже, антресоли и в подвале административного здания. Без комиссии для покупателя. Преимущества объекта:-первая линия;-4 минуты пешком от станции...
    • 1/3 эт.
    950 000 000 Р
    Агент
    +7 (938) Показать номер
    Посмотреть контакты
    645195. Продажа здания, торгового назначения с арендаторами. Первая линия домов. Очень высокий пешеходный и автомобильный трафик. В непосредственной близости от метро Таганская. Количество входов: 6, электрическая мощность: 700кВт, высота потолков: от...
    • 1/4 эт.
    956 751 600 Р
    Агент
    +7 (938) Показать номер
    Посмотреть контакты
    Помещение свободного назначения в Москва ул. Горбунова, 2С3 (6304 м) - Фото 1
    Помещение свободного назначения в Москва ул. Горбунова, 2С3 (6304 м) - Фото 2
    722847. Предлагаем офисное помещение площадью 6 304 кв. м, расположенное на 7 этаже бизнес-центра Гранд Сетунь Плаза Преимущества объекта:- Бизнес-центр класса В+- Шаговая доступность от станции Сетунь (6 минут пешком)- Этаж: 7- Помещение предлагается...
    • 7/10 эт.
    945 615 000 Р
    Агент
    +7 (938) Показать номер
    Посмотреть контакты
    Помещение свободного назначения в Москва Неглинная ул., 14С1а (401 м) - Фото 1
    Помещение свободного назначения в Москва Неглинная ул., 14С1а (401 м) - Фото 2
    699586. Предлагаем торговое помещение с арендатором - Банк ВТБ, площадью 401,3 кв. м., расположенное на первом этаже, антресоли и в подвале административного здания. Без комиссии для покупателя. Преимущества объекта:-первая линия;-4 минуты пешком от станции...
    • 1/3 эт.
    950 000 000 Р
    Агент
    +7 (938) Показать номер
    Посмотреть контакты
    Помещение свободного назначения в Москва ул. Горбунова, 2С3 (6304 м) - Фото 1
    Помещение свободного назначения в Москва ул. Горбунова, 2С3 (6304 м) - Фото 2
    722847. Предлагаем офисное помещение площадью 6 304 кв. м, расположенное на 7 этаже бизнес-центра Гранд Сетунь Плаза Преимущества объекта:- Бизнес-центр класса В+- Шаговая доступность от станции Сетунь (6 минут пешком)- Этаж: 7- Помещение предлагается...
    • 7/10 эт.
    945 615 000 Р
    Агент
    +7 (938) Показать номер
    Посмотреть контакты

    Не нашли подходящего объявления?

    Оставьте заявку, и наши риэлторы подберут псн в районе Москвы

    (0)