85 146 000 Р 1 067 900 $ или 923 600

Информация об помещении

1
Этаж

Состояние и оснащение

Количество этажей
5
Развернуть
Агент
+7 (986) 274-27-15
Начать чат с агентом

Помещение свободного назначения в Москва Холодильный пер., 3к1с4 (185 ...

Лот 874753 Предложение от Собственника Предлагается на продажу помещение под офис площадью 185.10 м2. Помещение расположено 2 мин от м Тульская. 1 этаж. Отдельный вход. Система кондиционирования. Есть круглосуточный доступ. Планировка - смешанная. 5 парковочных мест. Есть парковка. Срок окупаемости - 12 лет.Чтобы получить ПОДРОБНУЮ ПРЕЗЕНТАЦИЮ С ПЛАНИРОВКОЙ И ФОТОГРАФИЯМИ, звоните или отправьте свой email и номер телефона в сообщении на портале. Высылаем в течение 15 минут по запросу Конт. лицо: Ринат , доб. 232, ЛОТ 874753

Читать полностью
    Позвонить Написать
    85 146 000 Р1 067 900 $ или 923 600
    Агент
    +7 (986) 274-27-15
    Начать чат с агентом
    Похожие предложения
    Помещение свободного назначения в Москва Старокалужское ш., 64АС2 (209 ... - Фото 1
    Помещение свободного назначения в Москва Старокалужское ш., 64АС2 (209 ... - Фото 2
    932860. Предлагаем офисное помещение площадью 208,6 кв. м, расположенное на 4 этаже строящегося бизнес-центра Stone Калужская Преимущества объекта:- Бизнес-центр класса А- Шаговая доступность от станции метро Калужская (1 минута пешком)- Этаж: 4- Помещение...
    • 4/23 эт.
    84 900 200 Р
    Агент
    +7 (938) Показать номер
    Посмотреть контакты
    Помещение свободного назначения в Москва ул. Академика Челомея, 7 (226 ... - Фото 1
    Помещение свободного назначения в Москва ул. Академика Челомея, 7 (226 ... - Фото 2
    742348. Предлагаем офисное помещение площадью 225.5 кв. м, расположенное на 14 этаже в строящемся бизнес-центре AFI Park Воронцовский Преимущества объекта:- Бизнес-центр класса А- Шаговая доступность от станции метро Воронцовская (10 минут пешком)- Этаж:...
    • 14/21 эт.
    85 123 652 Р
    Агент
    +7 (938) Показать номер
    Посмотреть контакты
    Помещение свободного назначения в Москва ул. Академика Челомея, 7 (233 ... - Фото 1
    Помещение свободного назначения в Москва ул. Академика Челомея, 7 (233 ... - Фото 2
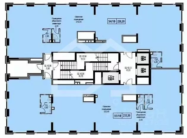
    742393. Предлагаем офисное помещение площадью 233.2 кв. м, расположенное на 10 этаже в строящемся бизнес-центре AFI Park Воронцовский Преимущества объекта:- Бизнес-центр класса А- Шаговая доступность от станции метро Воронцовская (10 минут пешком)- Этаж:...
    • 10/21 эт.
    85 576 004 Р
    Агент
    +7 (938) Показать номер
    Посмотреть контакты
    Продается ПСН 493.8 м2 - Фото 1
    Продается ПСН 493.8 м2 - Фото 2
    Продается ПСН 493.8 м2 - Фото 3
    Продается ПСН 493.8 м2 - Фото 4
    Продается ПСН 493.8 м2 - Фото 5
    Продается ПСН 493.8 м2 - Фото 6
    Продается ПСН 493.8 м2 - Фото 7
    Продается ПСН 493.8 м2 - Фото 8
    Продается ПСН 493.8 м2 - Фото 9
    Продается ПСН 493.8 м2 - Фото 10
    полезная площадь 493.8м²

    Предлагается коммерческое помещение ПОД АВТОМОЙКУ (мойку автомобилей) площадью 493,8 м2 на минус первом этаже 33-этажного жилого дома в ЖК «Тринити-2». Основные преимущества: 1. Закрытый паркинг с внешним входом делает автомойку доступной не только...
    • 493.8 м²
    • -1/34 эт.
    84 146 000 Р
    Агент
    +7 (495) Показать номер
    Посмотреть контакты
    Помещение свободного назначения в Москва Братеевская ул., 16К1 (948 м) - Фото 1
    Помещение свободного назначения в Москва Братеевская ул., 16К1 (948 м) - Фото 2
    1150742. Предлагаем к приобретению помещения свободного назначения, площадью 948 кв. м. (поделены на два кадастра), расположенные в подвальном этаже 17-этажного жилого дома. Без комиссии для покупателя.Преимущества объекта:-90 метров от станции метро...
    • -1/17 эт.
    85 000 000 Р
    Агент
    +7 (938) Показать номер
    Посмотреть контакты

    Не нашли подходящего объявления?

    Оставьте заявку, и наши риэлторы подберут псн в районе Москвы

    (0)