305 000 000 Р 3 962 500 $ или 3 388 400

Информация об помещении

1
Этаж

Состояние и оснащение

Количество этажей
5
Развернуть
Агент
+7 (986) 274-27-15
Начать чат с агентом

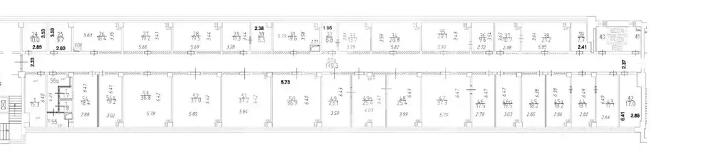
Помещение свободного назначения в Москва ул. Гиляровского, 10С1 (1217 ...

Лот 806342 Предложение от Собственника Предлагается на продажу помещение под офис площадью 1217.00 м2. Помещение расположено 10 мин от м Сухаревская. 1-5 этаж. Отдельный вход. Система кондиционирования. Пропускная система. Есть круглосуточный доступ. Планировка - смешанная. Есть пандус. Подъезд еврофуры. Есть парковка. 140 кВт мощности. Срок окупаемости - 11 лет.Чтобы получить ПОДРОБНУЮ ПРЕЗЕНТАЦИЮ С ПЛАНИРОВКОЙ И ФОТОГРАФИЯМИ, звоните или отправьте свой email и номер телефона в сообщении на портале. Высылаем в течение 15 минут по запросу Конт. лицо: Яна Германовна, доб. 203, ЛОТ 806342

Читать полностью
    Позвонить Написать
    305 000 000 Р3 962 500 $ или 3 388 400
    Агент
    +7 (986) 274-27-15
    Начать чат с агентом
    Похожие предложения
    Помещение свободного назначения в Москва Старокалужское ш., 62 (1260 ... - Фото 1
    Помещение свободного назначения в Москва Старокалужское ш., 62 (1260 ... - Фото 2
    Лот 734573 Предложение от Собственника Предлагается на продажу помещение под офис площадью 1260.10 м2. Помещение расположено 1 мин от м Воронцовская. 2 этаж. Система кондиционирования. Пропускная система. Есть круглосуточный доступ. Планировка - кабинетная....
    • 2/5 эт.
    302 832 000 Р
    Агент
    +7 (986) Показать номер
    Посмотреть контакты
    Продается ПСН 2190 м2 - Фото 1
    Продается ПСН 2190 м2 - Фото 2
    Продается ПСН 2190 м2 - Фото 3
    Продается ПСН 2190 м2 - Фото 4
    Продается ПСН 2190 м2 - Фото 5
    Продается ПСН 2190 м2 - Фото 6
    Продается ПСН 2190 м2 - Фото 7
    полезная площадь 2190м²

    Предлагаем вашему вниманию здание свободного коммерческого назначения в ЗАО г. Москвы, на территории ЖК Миракс Парк (Mirax Park) - элитный жилой комплекс на проспекте Вернадского, рядом с Тропаревским парком. В здании расположен действующий спортивный...
    • 2 190 м²
    • 1/3 эт.
    320 000 000 Р
    Агент
    +7 (968) Показать номер
    Посмотреть контакты
    Продается помещение 1868 м2 - Фото 1
    Продается помещение 1868 м2 - Фото 2
    Продается помещение 1868 м2 - Фото 3
    Продается помещение 1868 м2 - Фото 4
    Продается помещение 1868 м2 - Фото 5
    полезная площадь 1868м²

    Общая площадь МФК Крекшино составляет 10000 кв.м 25 мин по Минскому или Киевскому ш. (25 км от МКАД). В пешей 6 мин. доступности расположена станция Санино МЦД-4 (600 м). В непосредственной близости расположен ЖК «Медовая долина» - 3000 квартир. В 10...
    • 1 868 м²
    • 2/5 эт.
    317 560 000 Р
    Агент
    +7 (983) Показать номер
    Посмотреть контакты
    Помещение свободного назначения в Москва Новая Басманная ул., 13/2С3 ... - Фото 1
    Помещение свободного назначения в Москва Новая Басманная ул., 13/2С3 ... - Фото 2
    Арт.Идеальное место для вашего бизнеса в самом сердце активного района Прoдаётся здание свободного назначения общей площадью 550 м2 (два этaжa и цoкoль) и мансарда 140 м2 (не входит в 550 м). Земельный участок в аренде на 50 лет.Электричество мощностью...
    • 2/2 эт.
    310 000 000 Р
    Агент
    +7 (923) Показать номер
    Посмотреть контакты
    Помещение свободного назначения в Москва пер. Орликов, 3Б (849 м) - Фото 1
    Помещение свободного назначения в Москва пер. Орликов, 3Б (849 м) - Фото 2
    1116926. Предлагаем офисное помещение площадью 849,4 кв. м, расположенное на 4 этаже административного здания. Преимущества объекта:- Здание класса В- Шаговая доступность от станции метро Красные ворота (5 минуты пешком)- Этаж: 4- Помещение предлагается...
    • 4/6 эт.
    319 000 000 Р
    Агент
    +7 (938) Показать номер
    Посмотреть контакты

    Не нашли подходящего объявления?

    Оставьте заявку, и наши риэлторы подберут псн в районе Москвы

    (0)