21 000 000 Р 263 400 $ или 227 800

Информация об помещении

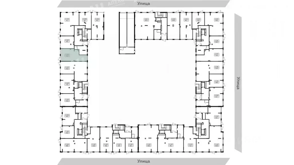
1
Этаж

Состояние и оснащение

Количество этажей
24
Развернуть
Агент
+7 (923) 072-26-80
Начать чат с агентом

Помещение свободного назначения в Москва Базовская ул., 26 (55 м)

Арт.Ваш бизнес ждет новое место Продается помещение свободного назначения на первом этаже нового жилого дома Ищете идеальное место для вашего бизнеса? Представляем вашему вниманию уникальное предложение помещение свободного назначения площадью 55.4 м с высокими потолками 4,5 м, расположенное на первом этаже нового 24-этажного жилого дома. Дом сдан в 2025 году.Идеальное расположение для вашего успеха:Помещение находится на первой линии домов по улице Базовская, на пересечении с Коровинским шоссе. Это оживленный район с высоким пешеходным и автомобильным трафиком. Вокруг густонаселенный многоэтажный жилой район, который активно застраивается и развивается, что гарантирует постоянный поток потенциальных клиентов.Все для комфортной работы:Два отдельных выхода: обеспечат удобство для ваших клиентов и сотрудников, а также позволят разделить потоки посетителей при необходимости. Имеется мокрая точка. что удобно для любого другого бизнеса, где требуется водоснабжение.Электрическая мощность 30 кВт: достаточно для любого вида деятельности, включая производство или использование энергоемкого оборудования.Приточно-вытяжная вентиляция: обеспечит комфортный микроклимат в помещении в любое время года.Не упустите свой шанс Это идеальное место для магазина, кафе, офиса, аптеки, пекарни, пункта выдачи заказов или любого другого бизнеса, который ищет перспективное и развивающееся место.Звоните прямо сейчас, чтобы узнать подробности и договориться о просмотре

Читать полностью
    Позвонить Написать
    21 000 000 Р263 400 $ или 227 800
    Агент
    +7 (923) 072-26-80
    Начать чат с агентом
    Похожие предложения
    Помещение свободного назначения в Москва Родные кварталы жилой ... - Фото 1
    Помещение свободного назначения в Москва Родные кварталы жилой ... - Фото 2
    Лот 641176 Предложение от Собственника Делимся комиссией с коллегами Продается коммерческое помещение площадью 70,9 кв. м, расположенное на первом этаже жилого дома в ЖК Родные кварталы . Объект обладает свободной планировкой, выделенной мощностью...
    • 1/9 эт.
    21 347 281 Р
    Агент
    +7 (986) Показать номер
    Посмотреть контакты
    Помещение свободного назначения в Москва Дмитровское ш., 73С3 (23 м) - Фото 1
    Помещение свободного назначения в Москва Дмитровское ш., 73С3 (23 м) - Фото 2
    Продается помещение 23м2 в ТЦ МЕТРОМОЛЛ. Первый 1 этаж. Есть мокрая точка. ТЦ МЕТРОМОЛЛ располагается на первой линии Дмитровского шоссе, на выходе из ст. метро Верхние Лихоборы . Площадь ТЦ 15 000 кв. м., он открыт и работает. Помещение сдается в...
    • 1/3 эт.
    20 000 000 Р
    Агент
    +7 (985) Показать номер
    Посмотреть контакты
    Прямая продажа от застройщика - Фото 1
    Прямая продажа от застройщика - Фото 2
    Прямая продажа от застройщика - Фото 3
    Прямая продажа от застройщика - Фото 4
    Прямая продажа от застройщика - Фото 5
    Прямая продажа от застройщика - Фото 6
    Прямая продажа от застройщика - Фото 7
    Прямая продажа от застройщика - Фото 8
    Прямая продажа от застройщика - Фото 9
    Прямая продажа от застройщика - Фото 10
    Прямая продажа от застройщика - Фото 11
    Прямая продажа от застройщика - Фото 12
    Прямая продажа от застройщика - Фото 13
    Прямая продажа от застройщика - Фото 14
    Прямая продажа от застройщика - Фото 15
    Прямая продажа от застройщика - Фото 16
    Прямая продажа от застройщика - Фото 17
    Прямая продажа от застройщика - Фото 18
    Прямая продажа от застройщика - Фото 19
    Прямая продажа от застройщика - Фото 20
    полезная площадь 89.8м²

    Предлагается в продажу помещение свободного назначения, расположенное в ЖК 1-й Ленинградский площадью 89.8 кв.м. Располагается на 1 этаже 13-этажного корпуса. Помещение идеально подойдет для магазина, кафе, офиса или другого бизнеса благодаря функциональной...
    • 89.8 м²
    • 1/13 эт.
    21 253 000 Р
    Агент
    +7 (495) Показать номер
    Посмотреть контакты
    Прямая продажа от застройщика - Фото 1
    Прямая продажа от застройщика - Фото 2
    Прямая продажа от застройщика - Фото 3
    Прямая продажа от застройщика - Фото 4
    Прямая продажа от застройщика - Фото 5
    Прямая продажа от застройщика - Фото 6
    Прямая продажа от застройщика - Фото 7
    Прямая продажа от застройщика - Фото 8
    Прямая продажа от застройщика - Фото 9
    Прямая продажа от застройщика - Фото 10
    Прямая продажа от застройщика - Фото 11
    Прямая продажа от застройщика - Фото 12
    Прямая продажа от застройщика - Фото 13
    Прямая продажа от застройщика - Фото 14
    Прямая продажа от застройщика - Фото 15
    Прямая продажа от застройщика - Фото 16
    Прямая продажа от застройщика - Фото 17
    Прямая продажа от застройщика - Фото 18
    Прямая продажа от застройщика - Фото 19
    Прямая продажа от застройщика - Фото 20
    полезная площадь 107.6м²

    Предлагается в продажу помещение свободного назначения, расположенное в ЖК 1-й Ленинградский площадью 107.6 кв.м. Располагается на 1 этаже 14-этажного корпуса. Помещение идеально подойдет для магазина, кафе, офиса или другого бизнеса благодаря функциональной...
    • 107.6 м²
    • 1/14 эт.
    21 629 568 Р
    Агент
    +7 (495) Показать номер
    Посмотреть контакты
    Помещение свободного назначения в Москва, Москва, Зеленоград к533 (319 ... - Фото 1
    Помещение свободного назначения в Москва, Москва, Зеленоград к533 (319 ... - Фото 2
    Данные получены с сайта ГИС Торги.Продажа имущества, находящегося в собственности города Москвы, нежилое помещение по адресу: г. Москва, г. Зеленоград, корп. 533,площадью 318,8 кв. м. (Подвал 0), кадастровый номер: 77:10:0005001:3383
    • 8 этажей
    20 761 000 Р
    Агент
    +7 (933) Показать номер
    Посмотреть контакты

    Не нашли подходящего объявления?

    Оставьте заявку, и наши риэлторы подберут псн в районе Москвы

    (0)