741 106 000 Р 9 116 200 $ или 7 931 600

Информация об помещении

21
Этаж

Состояние и оснащение

Количество этажей
23
Развернуть
Агент
+7 (938) 656-74-88
Начать чат с агентом

Помещение свободного назначения в Москва Дмитровский проезд, вл1Г ...

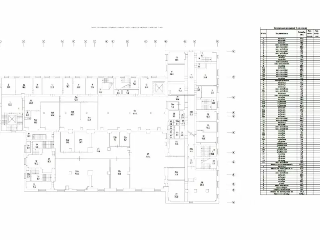
645088. Предлагаем офисное помещение площадью 1 611,1 кв. м, расположенное на 21 этаже строящегося бизнес-центра Stone Дмитровская Преимущества объекта:- Бизнес-центр класса А- Шаговая доступность от станции метро Дмитровская (3 минуты пешком)- Этаж: 21- Помещение предлагается в состоянии под отделку- Планировка открытая- Подземный двухуровневый паркинг- Панорамное остеклениеОперативно организуем для Вас показ и ответим на все вопросы.Свяжитесь с нами для получения дополнительной информации

Читать полностью
    Позвонить Написать
    741 106 000 Р9 116 200 $ или 7 931 600
    Агент
    +7 (938) 656-74-88
    Начать чат с агентом
    Похожие предложения
    Помещение свободного назначения в Москва пер. Сивцев Вражек, 36/18 ... - Фото 1
    Помещение свободного назначения в Москва пер. Сивцев Вражек, 36/18 ... - Фото 2
    958018. Предлагаем к приобретению отдельно стоящее здание, площадью 538.3 кв. м. 1, 2 этаж + подвал. Без комиссии для покупателя. Преимущества объекта:-респектабельный район арбатских переулков между Садовым и Бульварным кольцом;-в 5 минутах пешком станция...
    • 2/2 эт.
    750 000 000 Р
    Агент
    +7 (938) Показать номер
    Посмотреть контакты
    Помещение свободного назначения в Москва наб. Пресненская, 12 (1036 м) - Фото 1
    Помещение свободного назначения в Москва наб. Пресненская, 12 (1036 м) - Фото 2
    646360. Предлагаем офисное помещение площадью 1 036 кв. м, расположенное на 46 этаже небоскреба Башня Федерация Преимущества объекта:- Бизнес-центр класса А- Шаговая доступность от станции метро Деловой Центр (2 минуты пешком)- Этаж: 46- Помещение предлагается...
    • 46/97 эт.
    750 000 000 Р
    Агент
    +7 (938) Показать номер
    Посмотреть контакты
    Помещение свободного назначения в Москва ул. Новый Арбат, 19 (1699 м) - Фото 1
    Помещение свободного назначения в Москва ул. Новый Арбат, 19 (1699 м) - Фото 2
    643885. Предлагаем к приобретению торговое помещение, площадью 1 698,5 кв. м., расположенное на первом этаже, в цоколе и подвале административного здания. Без комиссии для покупателя.Преимущества объекта:-первая линия домов одного из главных торговых...
    • 1/26 эт.
    749 000 000 Р
    Агент
    +7 (938) Показать номер
    Посмотреть контакты
    Помещение свободного назначения в Москва Складочная ул., 1С15 (7400 м) - Фото 1
    Помещение свободного назначения в Москва Складочная ул., 1С15 (7400 м) - Фото 2
    657387. Предлагаем офисное здание с гарантированным арендным потоком, площадью 7 400 кв. м., бизнес-центр Савеловград Преимущества объекта:- Бизнес-центр класса В- Шаговая доступность от станции метро Савёловская (10 минут пешком)- Текущий арендный поток...
    • 1/6 эт.
    750 000 000 Р
    Агент
    +7 (938) Показать номер
    Посмотреть контакты
    Помещение свободного назначения в Москва ул. Новый Арбат, 19 (1698 м) - Фото 1
    Помещение свободного назначения в Москва ул. Новый Арбат, 19 (1698 м) - Фото 2
    Готовый арендный бизнес (ГАБ). Доходность 10 , окупаемость до 9.75 лет. Одним из самых нарядных и торговых домов Нового Арбата, расположенный напротив легендарного кинотеатра Октябрь. Полная реконструкция здания была произведена в 2003 году. Интенсивный...
    • 1/26 эт.
    749 000 000 Р
    Агент
    +7 (933) Показать номер
    Посмотреть контакты

    Не нашли подходящего объявления?

    Оставьте заявку, и наши риэлторы подберут псн в районе Москвы

    (0)