140 000 000 Р 1 725 300 $ или 1 498 500

Информация об помещении

1
Этаж

Состояние и оснащение

Количество этажей
9
Развернуть
Агент
+7 (933) 786-94-18
Начать чат с агентом

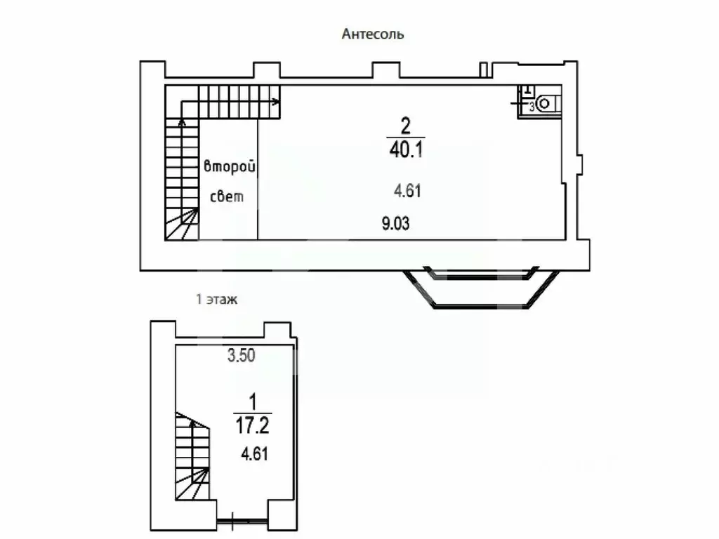
Помещение свободного назначения в Москва Троилинский пер., 5 (39 м)

РАБОТАЕМ С АГЕНТАМИ. РЕНТАВИК— участник ассоциации КОКОН. БЦ Арбат - это стильное здание, расположенное в самом центре Москвы. Близость БЦ к основным транспортным развязкам столицы делает его доступным для владельцев собственных автомобилей и пользователей общественного наземного и подземного транспорта.Налоговая: 04. Лифты: Есть. Вентиляция: Приточно-вытяжная. Кондиционирование: Центральное. Безопасность: Контроль доступа, Система пожаротушений, Видеонаблюдение. Парковка: Наземная. Описание помещения: Большие витринные окна. Отдельный вход с фасада.Есть возможность размещения вывески. Центральные коммуникации. Планировка: открытая. Типовой ремонт. Высокие потолки. Высота потолка: 3.7м. Тип налогообложения: УСН. Лот

Читать полностью
    Позвонить Написать
    140 000 000 Р1 725 300 $ или 1 498 500
    Агент
    +7 (933) 786-94-18
    Начать чат с агентом
    Похожие предложения
    Помещение свободного назначения в Москва Карманицкий пер., 9 (39 м) - Фото 1
    Помещение свободного назначения в Москва Карманицкий пер., 9 (39 м) - Фото 2
    Арт.Продам коммерческое помещение площадью 39.3 кв м в здании на 2 этаже первой фасадной линии Садового кольца. В 20 метрах от выхода из станции метро Смоленская . Сверхинтенсивный пешеходный и автомобильный трафик. Развитая торговая, деловая и административная...
    • 1/6 эт.
    140 000 000 Р
    Агент
    +7 (933) Показать номер
    Посмотреть контакты
    Помещение свободного назначения в Москва Просторная ул., 4 (643 м) - Фото 1
    Помещение свободного назначения в Москва Просторная ул., 4 (643 м) - Фото 2
    ПРЯМАЯ ПРОДАЖА ОТ СОБСТВЕННИКА Продаётся готовый арендный бизнес, помещение свободного назначения в пристройке к жилому дому. Площадь 642,3 м2 (1-й этаж - 365.4 м2 и подвал - 276.9 м2). Высота потолков: 1-й этаж - 3.40 м, подвал 2,75 м. Якорный арендатор...
    • 1/1 эт.
    140 000 000 Р
    Агент
    +7 (919) Показать номер
    Посмотреть контакты
    Помещение свободного назначения в Москва Кутузовский просп., 24 (379 ... - Фото 1
    Помещение свободного назначения в Москва Кутузовский просп., 24 (379 ... - Фото 2
    Код объекта: 2091923.Инвестиция с прогнозируемым доходом: арендный бизнес на Кутузовском проспектеПредлагаем к продаже ГАБ в ЗАО Москвы с действующим арендатором и долгосрочным договором в одной из самых ликвидных локаций столицы.Приоритет локации: почему...
    • 1/10 эт.
    148 000 000 Р
    Агент
    +7 (985) Показать номер
    Посмотреть контакты
    Помещение свободного назначения в Москва ул. Земляной Вал, 52/16С1 ... - Фото 1
    Помещение свободного назначения в Москва ул. Земляной Вал, 52/16С1 ... - Фото 2
    642385. Предлагаем к приобретению торговое помещение, площадью 489,9 кв. м., расположенное на первом этаже и в подвале жилого дома. Без комиссии для покупателя.Преимущества объекта: -первая линия Земляного вала;-пешая доступность от станции метро Таганская...
    • 1/7 эт.
    130 000 000 Р
    Агент
    +7 (938) Показать номер
    Посмотреть контакты
    Помещение свободного назначения в Москва Тверская ул., 19 (58 м) - Фото 1
    Помещение свободного назначения в Москва Тверская ул., 19 (58 м) - Фото 2
    680968. Предлагаем торговое помещение, площадью 58.4 кв. м., расположенное на первом этаже и антресоли жилого дома. Преимущества объекта:-менее 50 метров от станций метро Тверская и Пушкинская;-деловой район с плотным жилым массивом, в окружении культурных...
    • 1/8 эт.
    132 500 000 Р
    Агент
    +7 (938) Показать номер
    Посмотреть контакты

    Не нашли подходящего объявления?

    Оставьте заявку, и наши риэлторы подберут псн в районе Москвы

    (0)