53 326 200 Р 657 200 $ или 570 800

Информация об помещении

1
Этаж

Состояние и оснащение

Количество этажей
9
Развернуть
Агент
+7 (938) 656-74-88
Начать чат с агентом

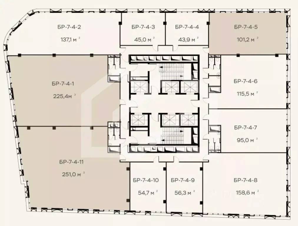
Помещение свободного назначения в Москва Барвихинская ул., 6 (146 м)

642137. Предлагаем помещение свободного назначения в ЖК Дом на Барвихинской , площадью 145.7 кв. м, расположенное на первом этаже торговой галереи, которая станет точкой притяжения всего микрорайона. Без комиссии для покупателя.Преимущества объекта:-первая линия ул. Барвихинская;-шаговая доступность от станции МЦД-1 Сетунь (14 минут пешком);-удобная транспортная доступность: 650 м до Можайского шоссе, 1.4 км до Сколковского шоссе, 2 км до СЗХ, 2.4 км до МКАД, 3.7 км до Минского шоссе, 4 км до Рублёвского шоссе;-плотный жилой массив;-развитая инфраструктура района;-высокий автомобильный и пешеходный трафик;-отлично просматривается, находится в легком доступе для потенциальных клиентов;-гибкая планировка, позволяющая адаптировать пространство под различные нужды;-витринное остекление;-возможность размещения вывески;-большая автомобильная парковка;-рядом остановка общественного транспорта.Технические параметры объекта:-отдельный вход с улицы.-электрическая мощность: 30 кВт.-высота потолков: 3.4 м.Свяжитесь с нами для получения дополнительной информации

Читать полностью
    Позвонить Написать
    53 326 200 Р657 200 $ или 570 800
    Агент
    +7 (938) 656-74-88
    Начать чат с агентом
    Похожие предложения
    Помещение свободного назначения в Москва 2-я Брестская ул., 6 (79 м) - Фото 1
    Помещение свободного назначения в Москва 2-я Брестская ул., 6 (79 м) - Фото 2
    1085942. Предлагаем офисное помещение площадью 78,8 кв. м, расположенное на 9 этаже в современном комплексе апартаментов Резиденция Тверская Преимущества объекта:- Здание класса А- Шаговая доступность от станции метро Маяковская (6 минут пешком)- Этаж:...
    • 6/15 эт.
    52 000 000 Р
    Агент
    +7 (938) Показать номер
    Посмотреть контакты
    Помещение свободного назначения в Москва Холодильный пер., 3к1 (101 м) - Фото 1
    Помещение свободного назначения в Москва Холодильный пер., 3к1 (101 м) - Фото 2
    1147226. Предлагаем офисное помещение площадью 101,2 кв. м, расположенное на 7 этаже строящегося БЦ Башня Рябов Преимущества объекта:- Бизнес-центр класса А- Шаговая доступность от станции метро Тульская (1-2 минуты пешком)- Этаж: 7- Помещение предлагается...
    • 7/13 эт.
    52 624 000 Р
    Агент
    +7 (938) Показать номер
    Посмотреть контакты
    Продается ПСН 116 м2 - Фото 1
    Продается ПСН 116 м2 - Фото 2
    Продается ПСН 116 м2 - Фото 3
    Продается ПСН 116 м2 - Фото 4
    Продается ПСН 116 м2 - Фото 5
    полезная площадь 116м²

    Стрит-ритейл в новом ЖК «Страна. Заречная» в Москве от федерального застройщика «Страна Девелопмент». Проект расположен в пешей доступности от станции МЦД «Перерва». Район Марьино активно развивается: строятся новые жилые кварталы, социальные объекты...
    • 116 м²
    • 1/38 эт.
    52 990 000 Р
    Агент
    +7 (495) Показать номер
    Посмотреть контакты
    Помещение свободного назначения в Москва Погонный проезд, 3ак2 (273 м) - Фото 1
    Помещение свободного назначения в Москва Погонный проезд, 3ак2 (273 м) - Фото 2
    Помещение 273,1кв.м. в закрытом ЖК Лосиный остров. 11 окон. 3 входа. Потолок 3.5м. Актуальная стоимость 54млн.руб. Продает физ.лицо. Куплено у застройщика, в одних руках с момента получения свидетельства о собственности.Агентство работает с продавцом...
    • 1/29 эт.
    54 000 000 Р
    Агент
    +7 (986) Показать номер
    Посмотреть контакты
    Помещение свободного назначения в Москва Большая Почтовая ул., 18Ак1В ... - Фото 1
    Помещение свободного назначения в Москва Большая Почтовая ул., 18Ак1В ... - Фото 2
    ВАЖНО: БЕЗ КОММИССИ ДЛЯ АРЕНДАТОРОВ, ПРЯМАЯ ПРОДАЖА ОТ СОБСТВЕННИКАЖилой комплекс A класса Level Бауманская расположен по адресу Москва, ЦАО, район Басманный, Б. Почтовая ул., 18, в пешей доступности от метро Электрозаводская (10 мин), метро Бауманская...
    • 1/21 эт.
    52 576 392 Р
    Агент
    +7 (916) Показать номер
    Посмотреть контакты

    Не нашли подходящего объявления?

    Оставьте заявку, и наши риэлторы подберут псн в районе Москвы

    (0)