132 764 100 Р 1 634 000 $ или 1 423 400

Информация об помещении

1
Этаж

Состояние и оснащение

Количество этажей
23
Развернуть
Агент
+7 (938) 656-74-88
Начать чат с агентом

Помещение свободного назначения в Москва Дмитровский проезд, вл1Г (99 ...

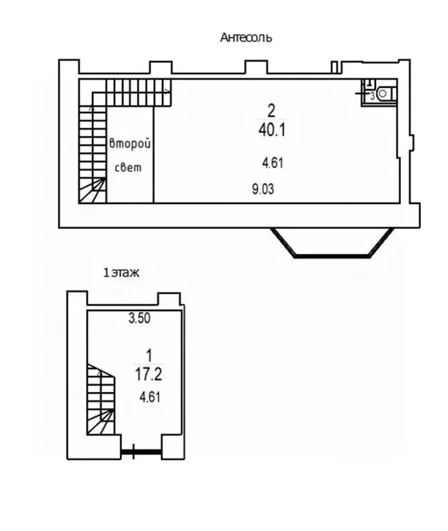
709431. Предлагаем к приобретению помещение под торговую площадь/общепит, площадью 99,3 кв. м., расположенное на первом этаже 23-этажной офисной башни в бизнес-центре класса А Stone Дмитровская . Угловой блок. Без комиссии для покупателя.Преимущества объекта:-первая линия Дмитровского проезда;-5 минут пешком от станции метро Дмитровская;-выход на Дмитровский проезд;-сложившееся торговое и деловое окружение;-сверхинтенсивный автомобильный и пешеходный трафик;-гибкая планировка, позволяющая адаптировать пространство под различные нужды;-витринное остекление;-место для вывески;-парковка на улице;-рядом остановки общественного транспорта.Технические параметры объекта:-две входные группы.Свяжитесь с нами для получения дополнительной информации

Читать полностью
    Позвонить Написать
    132 764 100 Р1 634 000 $ или 1 423 400
    Агент
    +7 (938) 656-74-88
    Начать чат с агентом
    Похожие предложения
    Помещение свободного назначения в Москва Севастопольский просп., 22А ... - Фото 1
    Помещение свободного назначения в Москва Севастопольский просп., 22А ... - Фото 2
    Id 60617. Продается помещение 450 м в ЖК бизнес-клaсcа EniteoУникальное предложение и решeниe для бизнeca:• ЖK бизнес класса, 662 квартиры — помещение находится на первом этаже жилого комплекса, целевая аудитория рядом.• Отсутствие конкуренции в соседнем...
    • 1/42 эт.
    137 500 000 Р
    Агент
    +7 (989) Показать номер
    Посмотреть контакты
    Помещение свободного назначения в Москва Тверская ул., 19 (58 м) - Фото 1
    Помещение свободного назначения в Москва Тверская ул., 19 (58 м) - Фото 2
    Лот: 38754. Торговые помещения формата street retail в историческом центре, на главной улице города. Тверская - одна из самых желаемых локаций для брендов среднего ценового сегмента благодаря сверхинтенсивному пешеходному и автомобильному потоку. Предлагаемые...
    • 1/8 эт.
    132 500 000 Р
    Агент
    +7 (986) Показать номер
    Посмотреть контакты
    Помещение свободного назначения в Москва Тверская ул., 19 (58 м) - Фото 1
    Помещение свободного назначения в Москва Тверская ул., 19 (58 м) - Фото 2
    Лот: 38736. Торговые помещения формата street retail в историческом центре, на главной улице города. Тверская - одна из самых желаемых локаций для брендов среднего ценового сегмента благодаря сверхинтенсивному пешеходному и автомобильному потоку. Предлагаемые...
    • 1/8 эт.
    132 500 000 Р
    Агент
    +7 (986) Показать номер
    Посмотреть контакты
    Помещение свободного назначения в Москва Тагильская ул., 3к2 (490 м) - Фото 1
    Помещение свободного назначения в Москва Тагильская ул., 3к2 (490 м) - Фото 2
    947348. Предлагаем офисное помещение площадью 490,41 кв. м, расположенное на 15 этаже строящегося бизнес-центра АФИ2В Тагильская Преимущества объекта:- Бизнес-центр класса А- Шаговая доступность от станции метро Бульвар Рокоссовского (14 минут пешком)-...
    • 15/26 эт.
    129 842 914 Р
    Агент
    +7 (938) Показать номер
    Посмотреть контакты
    Помещение свободного назначения в Москва ул. Нижние Мневники, 1 (245 ... - Фото 1
    Помещение свободного назначения в Москва ул. Нижние Мневники, 1 (245 ... - Фото 2
    1105454. Предлагаем офисное помещение площадью 245 кв. м, расположенное на 4 этаже строящегося бизнес-центра Stone Мневники 3 Преимущества объекта:- Бизнес-центр класса А- Шаговая доступность от станции метро Терехово (12-14 минут пешком)- Этаж: 4- Помещение...
    • 4/18 эт.
    131 565 000 Р
    Агент
    +7 (938) Показать номер
    Посмотреть контакты

    Не нашли подходящего объявления?

    Оставьте заявку, и наши риэлторы подберут псн в районе Москвы

    (0)