71 841 000 Р 883 700 $ или 768 900

Информация об помещении

1
Этаж

Состояние и оснащение

Количество этажей
11
Развернуть
Агент
+7 (938) 656-74-88
Начать чат с агентом

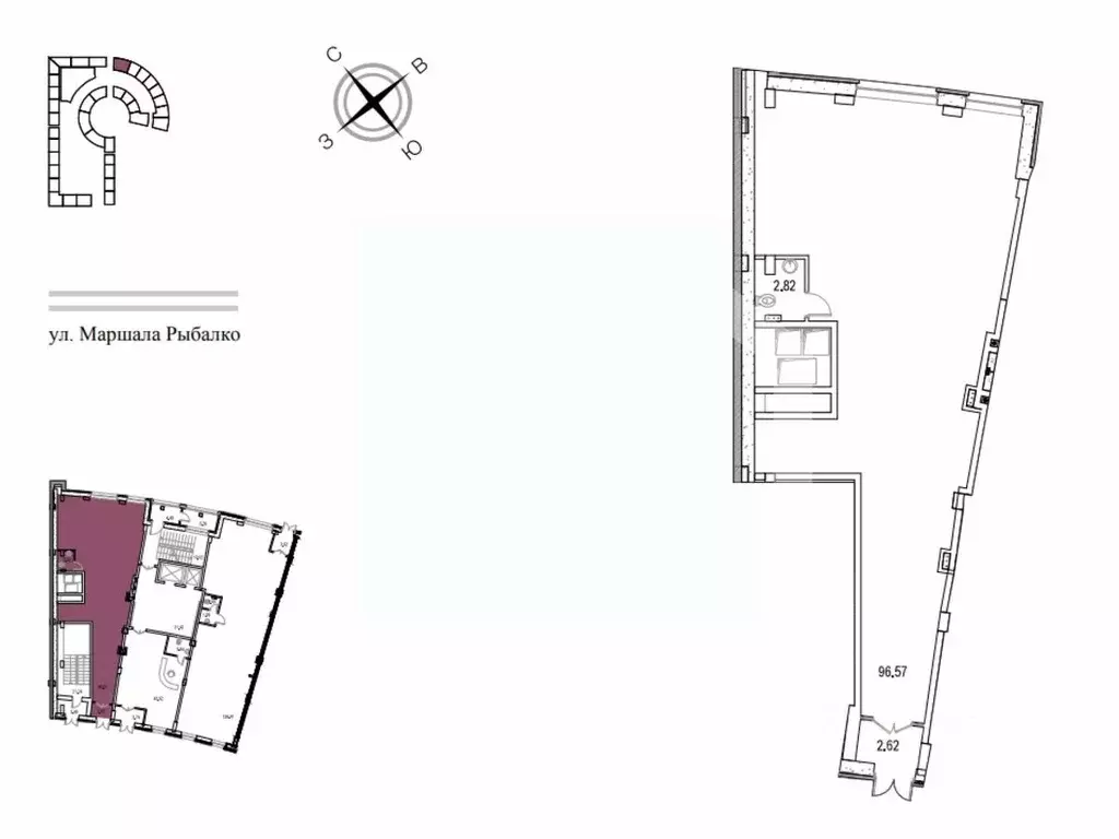
Помещение свободного назначения в Москва ул. Маршала Рыбалко, 2к9 (124 ...

664184. Предлагаем помещение свободного назначения с арендатором Кафе Oui, mon general , площадью 124,4 кв. м., расположенное на первом этаже жилого дома в ЖК Маршал . Корпус 9. Без комиссии для покупателя.Преимущества объекта:-ЖК состоит из корпусов переменной этажности (от 8 до 18 этажей);-200 метров от станции МЦК Панфиловская;-объект отлично просматривается, находится в легком доступе для клиентов;-развитая инфраструктура района;-надежный арендатор;-смешанная планировка;-витринное остекление;-место для вывески;-парковка на улице;-рядом остановка общественного транспорта.Технические параметры объекта:-2 входные группы;-высота потолков: 3 м.Информация об арендаторе:-арендатор: Кафе Oui, mon general ;-прибыль:/мес.Свяжитесь с нами для получения дополнительной информации

Читать полностью
    Позвонить Написать
    71 841 000 Р883 700 $ или 768 900
    Агент
    +7 (938) 656-74-88
    Начать чат с агентом
    Похожие предложения
    Помещение свободного назначения в Москва ул. Маршала Рыбалко, 2к9 (131 ... - Фото 1
    Помещение свободного назначения в Москва ул. Маршала Рыбалко, 2к9 (131 ... - Фото 2
    664185. Предлагаем помещение свободного назначения с арендатором Гастропаб Крылья , площадью 131,3 кв. м., расположенное на первом этаже жилого дома в ЖК Маршал . Корпус 9. Без комиссии для покупателя.Преимущества объекта:-первая линия улицы Народного...
    • 1/11 эт.
    72 215 000 Р
    Агент
    +7 (938) Показать номер
    Посмотреть контакты
    Помещение свободного назначения в Москва 3-я оч., Шагал жилой ... - Фото 1
    Помещение свободного назначения в Москва 3-я оч., Шагал жилой ... - Фото 2
    1064603. Предлагаем помещение свободного назначения в ЖК Shagal , площадью 100.1 кв. м, расположенное на первом этаже 16-этажного жилого дома. Без комиссии для покупателя.Преимущества объекта:-в престижном Даниловском районе столицы;-ЖК состоит из 33...
    • 1/10 эт.
    71 786 390 Р
    Агент
    +7 (938) Показать номер
    Посмотреть контакты
    Помещение свободного назначения в Москва Тагильская ул., вл4 (243 м) - Фото 1
    Помещение свободного назначения в Москва Тагильская ул., вл4 (243 м) - Фото 2
    947342. Предлагаем офисное помещение площадью 243.15 кв. м, расположенное на 12 этаже БЦ АФИ2B Тагильская Преимущества объекта:- Бизнес-центр класса А- Шаговая доступность от станции метро Бульвар Рокоссовского (12 минут пешком)- Помещение предлагается...
    • 12/26 эт.
    71 650 167 Р
    Агент
    +7 (938) Показать номер
    Посмотреть контакты
    Помещение свободного назначения в Москва ул. Золоторожский Вал, 11С1 ... - Фото 1
    Помещение свободного назначения в Москва ул. Золоторожский Вал, 11С1 ... - Фото 2
    874983. Предлагаем офисное помещение площадью 143,7 кв. м, расположенное на 10 этаже строящегося БЦ Stone Римская Преимущества объекта:- Бизнес-центр класса А- Шаговая доступность от станций метро Римская , Площадь Ильича (3 минуты пешком)- Этаж:...
    • 10/18 эт.
    72 568 500 Р
    Агент
    +7 (938) Показать номер
    Посмотреть контакты
    Продажа ПСН, м. Белорусская, ул. Грузинский Вал - Фото 1
    Продажа ПСН, м. Белорусская, ул. Грузинский Вал - Фото 2
    Продажа ПСН, м. Белорусская, ул. Грузинский Вал - Фото 3
    Продажа ПСН, м. Белорусская, ул. Грузинский Вал - Фото 4
    общая площадь 19.7м², полезная площадь 19.7м²

    Продажа помещения свободного назначения напротив выхода из метро и Белорусского вокзала, 10 метров до станции метро Белорусская. 1-я линия домов. Сверхинтенсивный пешеходный и автомобильный трафик, отличная транспортная доступность, сложившееся торговое...
    • 19.7 м²
    • 1-й эт.
    71 000 000 Р
    Агент
    +7 (903) Показать номер
    Посмотреть контакты

    Не нашли подходящего объявления?

    Оставьте заявку, и наши риэлторы подберут псн в районе Москвы

    (0)