56 280 000 Р 731 200 $ или 625 200

Информация об помещении

цоколь
Этаж

Состояние и оснащение

Количество этажей
6
Развернуть
Агент
+7 (916) 603-87-52
Начать чат с агентом

Помещение свободного назначения в Москва Вадковский пер., 24/35С1 (211 ...

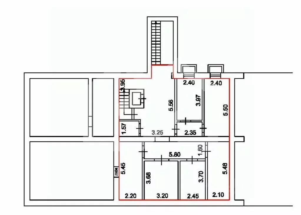
Эксклюзивный Готовый Арендный Бизнес (ГАБ) с долгосрочным договором в Тверском районе Данное объявление размещено собственником объекта Один арендатор, долгосрочный договор аренды на 10 лет с ежегодной индексацией Все обязанности обслуживания лежат на арендаторе, вы просто получаете деньги каждый месяц Экономика проекта (Инвестиционные показатели): Стоимость актива:Площадь: 210,5 м Доход (МАП): 574 000 /мес Годовой доход (ГАП):/год Доходность: 12,24 годовых + ежегодная индексация Окупаемость: ~8,1 лет без учета индексации, около 6 лет с учетом индексации Ваш доход абсолютно чистый: все коммунальные платежи по счетчикам, а также эксплуатационный сбор (98 /м), полностью оплачивает арендатор Премиальная локация и трафик: Идеальная транспортная доступность: всего 712 минут пешком до сразу 4 станций метро (Савеловская, Новослободская, Марьина Роща, Менделеевская). Гарантированный спрос: объект расположен в самом сердце столицы. Прямо по соседству находится МГТУ СТАНКИН , престижные бизнес-центры и элитные жилые комплексы. Это идеальная платежеспособная аудитория (студенты, фрилансеры, топ-менеджеры), которая обеспечивает коворкинг непрерывным потоком клиентов. Всё просто: покупаете объект, получаете стабильный доход, который растет каждый год без вашего участия. Позвоните нам, покажем объект и документы вживую

Читать полностью
    Позвонить Написать
    56 280 000 Р731 200 $ или 625 200
    Агент
    +7 (916) 603-87-52
    Начать чат с агентом
    Похожие предложения
    Помещение свободного назначения в Москва Ленинградский просп., 33К3 ... - Фото 1
    Помещение свободного назначения в Москва Ленинградский просп., 33К3 ... - Фото 2
    884829. Предлагаем торговое помещение с арендатором МосТАБАК, площадью 17.5 кв. м, расположенное на первом этаже 7-этажного жилого дома. Без комиссии для покупателя.Преимущества объекта:-первая линия Ленинградского проспекта;-шаговая доступность от станции...
    • 1/7 эт.
    56 500 000 Р
    Агент
    +7 (938) Показать номер
    Посмотреть контакты
    Помещение свободного назначения в Москва Минская ул., 22 (299 м) - Фото 1
    Помещение свободного назначения в Москва Минская ул., 22 (299 м) - Фото 2
    868068. Предлагаем помещение свободного назначения с арендаторами Стоматология, OZON/Яндекс, Квесты, площадью 298,9 кв. м., расположенное на первом этаже и в подвале жилого дома. Без комиссии для покупателя.Преимущества объекта:-первая линия ул. Минская;-5...
    • 1/5 эт.
    57 000 000 Р
    Агент
    +7 (938) Показать номер
    Посмотреть контакты
    Помещение свободного назначения в Москва Звенигородское ш., 7 (192 м) - Фото 1
    Помещение свободного назначения в Москва Звенигородское ш., 7 (192 м) - Фото 2
    803221. Предлагаем помещение свободного назначения с арендаторами Продукты и Медицинский центр, площадью 192,3 кв. м., расположенное на первом этаже жилого дома. Без комиссии для покупателя.Преимущества объекта:-первая линия Звенигородского шоссе;-пешая...
    • -1/5 эт.
    56 000 000 Р
    Агент
    +7 (938) Показать номер
    Посмотреть контакты
    Помещение свободного назначения в Москва Богословский пер., 16/6С1 (17 ... - Фото 1
    Помещение свободного назначения в Москва Богословский пер., 16/6С1 (17 ... - Фото 2
    906215. Предлагаем помещение свободного назначения с арендатором магазин ювелирных изделий WELEMENTS , площадью 16.9 кв. м, расположенное на первом этаже 4-этажного жилого дома. Без комиссии для покупателя.Преимущества объекта:-на пересечении пер. Большой...
    • 1/4 эт.
    56 700 000 Р
    Агент
    +7 (938) Показать номер
    Посмотреть контакты
    Помещение свободного назначения в Москва Большая Сухаревская пл., ... - Фото 1
    Помещение свободного назначения в Москва Большая Сухаревская пл., ... - Фото 2
    818812. Предлагаем помещение свободного назначения с арендатором Стоматология Оригами , площадью 75 кв. м., расположенное на 1 этаже и антресоли жилого дома. Без комиссии для покупателя.Преимущества объекта:-первая линия Садового кольца;-пешая доступность...
    • 1/8 эт.
    55 000 000 Р
    Агент
    +7 (938) Показать номер
    Посмотреть контакты

    Не нашли подходящего объявления?

    Оставьте заявку, и наши риэлторы подберут псн в районе Москвы

    (0)