32 858 000 Р 400 100 $ или 345 900

Состояние и оснащение

Количество этажей
6
Развернуть
Агент
+7 (960) 947-75-96
Начать чат с агентом

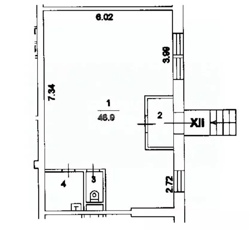
Помещение свободного назначения (164.3 м)

Продается готовое помещение свободного назначения премиум-класса с отдельным входом от собственника, без комиссий в престижном районе Москвы Всего 7 минут пешком до станции метро Таганская. Локация с постоянным потоком платежеспособных клиентов: рядом находятся университеты, ведущие научно-образовательные кластеры и элитные жилые комплексы — идеальная аудитория из топ-менеджеров, научной интеллигенции, состоятельных жителей и молодежи. Данное объявление размещено собственником объекта Без комиссий. Все документы готовы к сделке. Полная юридическая чистота Не упустите уникальное предложение Продается идеальное помещение с дизайнерским ремонтом «под ключ и всей необходимой разрешительной документацией. Вам останется лишь завести свое оборудование и сразу приступить к работе — либо получать стабильный доход от арендаторов Возможен пассивный арендный бизнес.Экономика и параметры лотов: Статус объекта: ПСН (Помещение свободного назначения). Объект свободен от арендаторов и полностью готов под ваш собственный бизнес или самостоятельную сдачу в аренду. Стоимость за квадратный метр: всего 200 000 /м. Это сверхвыгодная ставка для престижного района Выгодное расположение: 7 минут пешком до м. Таганская. Престижный и деловой район с высокой проходимостью и развитой инфраструктурой.Готовность 100 — заезжайте и работайте: Выполнен качественный дизайнерский ремонт. Не нужно тратить средства и время на отделку Полностью готовое помещение с отдельным презентабельным входом на цокольном этаже и круглосуточным доступом 24/7. В каждом кабинете предусмотрена мокрая точка и отдельный санузел. Просторная кухня, стильные зоны ожидания и отдыха для сотрудников и клиентов.Мощность и коммуникации: Электрическая мощность — 50 кВт (с возможностью увеличения), подходит под все виды оборудования — от кофейни до медицинских аппаратов. Приточно-вытяжная вентиляция. Мокрая точка предусмотрена в каждом кабинете Все счетчики индивидуальные — удобно для сдачи в аренду по кабинетам. Идеальный объект под арендный бизнес — пользуйтесь современными решениями и удобствами, привлекайте премиальных арендаторов Гарантия надежности: Все документы на руках Юридическая чистота объекта. Быстрый выход на сделку без посредников и комиссий.Не теряйте время на ремонты и согласования — это полностью готовое решение для вашего бизнеса Звоните, чтобы узнать все детали и записаться на просмотр Добавьте объявление в избранное, чтобы не потерять ______________________________________________Идеально для: салонкрасоты барбершоп ногтеваястудия маникюр бровиесницы кабинетмассажа студиязагара эпиляция шугаринг кабинетстоматолога косметолог психолог логопед детскоеразвитие иностранныеязыки пение танцы гимнастика детскоепрограммированиеобототехника магазинхобби кофейня пиццерия бургерная сушийная пекарня кондитерская пунктвыдачи магазинздоровогопитания спортивноепитание цветы подарки детскиетовары игрушки обувь одежда мебель канцтовары книжный магазинспортивныхтоваров школьнаяодежда магазинпива алкогольныймагазин магазинтабака электронныесигареты студиярастяжки спасалон и т. п.

Читать полностью
    Позвонить Написать
    32 858 000 Р400 100 $ или 345 900
    Агент
    +7 (960) 947-75-96
    Начать чат с агентом
    Похожие предложения
    Помещение свободного назначения в Москва Ленинградское ш., 228к5 (91 ... - Фото 1
    Помещение свободного назначения в Москва Ленинградское ш., 228к5 (91 ... - Фото 2
    Арт.. Продаётся помещение свободного назначения в ЖК 1-й Ленинградский Коммерческие условия:Цена:;Помещение:Общая площадь 90,5 м2;1 этаж жилого дома;Угловое помещение;Отдельный вход с улицы;Свободная планировка;Витринные окна;Локация:ЖК 1-й Ленинградский:...
    • 1/17 эт.
    34 000 000 Р
    Агент
    +7 (985) Показать номер
    Посмотреть контакты
    Помещение свободного назначения в Москва просп. Мира, 146 (54 м) - Фото 1
    Помещение свободного назначения в Москва просп. Мира, 146 (54 м) - Фото 2
    Арт.Вашему вниманию предлагается помещение в районе с развитой инфраструктурой.Помещение на первой линии домов ,Прямая видимость от метро.Вход с улицы с хорошим пешеходным и автомобильным траффиком.В помещении качественный ремонт.На данный момент помещение...
    • 1/7 эт.
    32 000 000 Р
    Агент
    +7 (923) Показать номер
    Посмотреть контакты
    Помещение свободного назначения в Москва Лобненская ул., 2 (470 м) - Фото 1
    Помещение свободного назначения в Москва Лобненская ул., 2 (470 м) - Фото 2
    ==ЛОТ 221514 == ОТ СОБСТВЕННИКА, БЕЗ КОМИССИИ. Объект расположен по адресу: Москва, Лобненская улица, 2. Это коммерческое помещение в подвале жилого дома с отдельным входом с улицы. Общая площадь составляет 469,7 м?, высота потолков — 2,4 м. Помещение...
    • -1/9 эт.
    34 000 000 Р
    Агент
    +7 (923) Показать номер
    Посмотреть контакты
    Помещение свободного назначения в Москва Велозаводская ул., 6 (87 м) - Фото 1
    Помещение свободного назначения в Москва Велозаводская ул., 6 (87 м) - Фото 2
    Адрес: Москва, ЮАО, Велозаводская улица, дом 6 (м. Автозаводская / м. Дубровка)Этаж: 1Описание локации:Помещение расположено в районе с отличной транспортной доступностью и высоким пешеходным трафиком. Дом находится в непосредственной близости от оживленной...
    • 1/6 эт.
    33 000 000 Р
    Агент
    +7 (915) Показать номер
    Посмотреть контакты
    Помещение свободного назначения в Москва Большая Семеновская ул., 23А ... - Фото 1
    Помещение свободного назначения в Москва Большая Семеновская ул., 23А ... - Фото 2
    Арт.. Помещение свободного назначения в Москве, Большая Семеновская ул., 23А.Стоимость:.О помещении:общая площадь 100 м2первый этаж 50 м2подвал 50 м2отдельный вход с фасадавысота потолков 3 м2 мокрые точкикачественный ремонт4 витринных окна на 3 стороны...
    • 1/3 эт.
    32 000 000 Р
    Агент
    +7 (985) Показать номер
    Посмотреть контакты

    Не нашли подходящего объявления?

    Оставьте заявку, и наши риэлторы подберут псн в районе Москвы

    (0)